Villa Mowgli i 125 år
Fra udlejningssommerhus til familievilla
- fra fortid til
nutid -

Festskrift i anledning af Villa Mowgli’s 125-års fødselsdag den 19. oktober 2023.
Gudrunsvej 22B - 2920 Charlottenlund, Matr.nr. 3eh af Ordrup By og Sogn.
Sokkelund Herred.
Med løbende tilføjelser og opdateringer.
(TRYK PÅ KAPITEL FOR AT SPRINGE I
TEKSTEN)
Kongehusets tilknytning til området på tiden da Mowgli blev bygget
Området på tiden da Villa Mowgli blev bygget
Ejerne af grunden og Villa Mowgli gennem tiderne
Husets opførelse og oprindelige indretning
Vejens oprindelige beboere og de første lejere
Toiletter i 1913, 1975 og 1995.
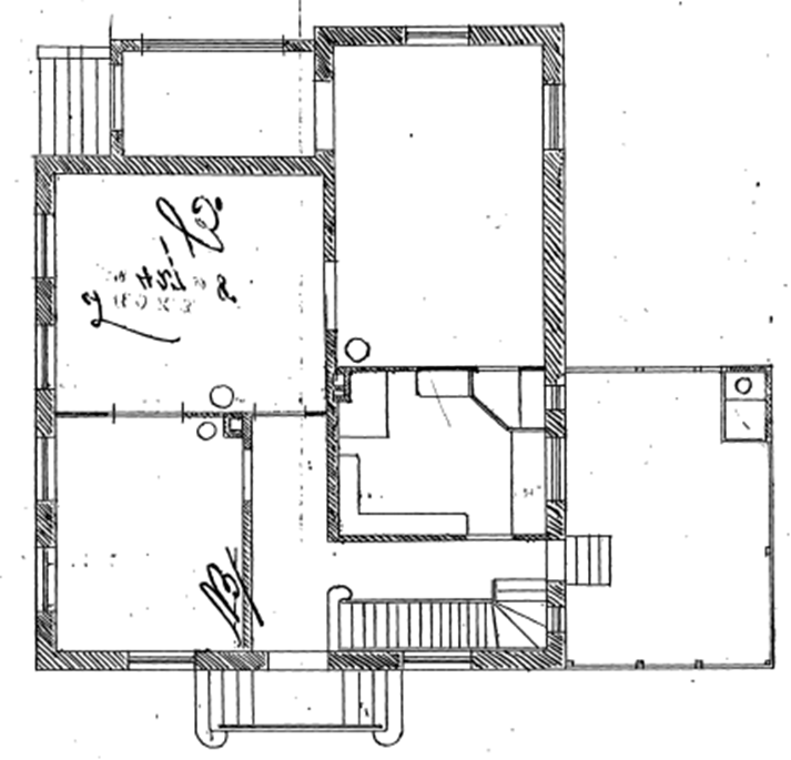
Ombygningen af 2. sal i 1918, 1963, 1991 og 1993
Renovering i perioden 1993 -1998
Oversigt over ejerne gennem tiden
Udviklingen i ejendommens offentlige vurderinger

Siden 1600-tallet har bondebyen Ordrup og egnen omkring gyldenlund - det
nuværende Charlottenlund og tidligere af Kong Christian IV kaldet Freudendahl
(Glædesdalen) - været et eftertragtet mål for københavnernes udflugter.
Længslen efter frisk luft, trangen til at færdes i skoven og ved stranden, samt
synet af bølgende kornmarker bevirkede, at området tillige blev meget søgt af
landliggere fra hovedstaden. Kongefamiliens tilstedeværelse på skiftevis
Charlottenlund Slot og Bernstorff Slot har utvivlsomt også været en medvirkende
årsag til områdets popularitet.
Hoveriet og stavnsbåndet blev gradvist
ophævet fra slutningen af 1700-tallet frem til 1850. Selvom københavnerne satte
deres præg på egnen om sommeren, ændrede friheden dog ikke straks den
fastboende bondebefolknings daglige livsførelse og vaner på de veldrevne
bøndergårde.
Enkelte af gårdene i området blev helt op i
1900-tallet drevet som landbrugsejendomme, medens andre allerede i 1800-tallet
blev omdannet til lyststeder. I kølvandet på lyststederne, opførtes i årenes
løb talrige mindre lyst- og landsteder.
Ejerne af disse lyst- og landsteder banede
vejen for egnens forvandling fra bondeidyl til en københavnsk forstad, og de
forbedrede trafikmidler fik flere og flere til at bosætte sig i området i frie
og sunde omgivelser.
Villa Mowgli var oprindelig et
udlejningssommerhus og er som sådan en naturlig del af områdets historie. I
anledning af 125‑året for villaens opførelse har jeg derfor forsøgt at
skildre områdets udvikling med Villa Mowgli – og Eigaard,
hvorfra grunden blev udstykket – samt villaens beboere som omdrejningspunkt.
Dette for at forsøge at give et indblik i hvordan verden så ud på den enkelte
beboers tid, og for at beskrive menneskene bag. Indimellem bliver det måske
lidt nørdet, men sådan går det, når man gerne vil have det hele med. Der er
mange datoer og årstal, men dem må man forsøge at lade øjnene springe over,
hvis det ikke har ens interesse.
Selv om enkelte huse og steder i området
uvilkårligt leder tankerne tilbage til den tid, da det var "in" at
ligge på landet i Ordrup, kan det i dag være vanskeligt at genkende fortidens
landlige idyl. Med nærværende beretning om Villa
Mowgli fra udlejningssommerhus til
familievilla er det dog mit håb at bidrage til en vis forståelse for
områdets og villaens historie og udvikling.
God fornøjelse.
Jens Kristian Kjær Krogsgaard

Ordrup har været beboet siden
oldtiden, men allerede i stenalderen (omkring 7500 f. Kr.)
har der både langs kysten og længere inde i landet færdedes folk. Ved Ordrup
Mose, der oprindelig var en havarm til Øresund, er der bl.a. fundet bopladser
fra den ældre stenalder. Fundene giver et godt billede af områdets og periodens
fauna, idet der er fundet knogler fra bl.a. sumpskildpadder, vildsvin, bævere,
urokser, hunde og elsdyr. Sjælland var på dette tidspunkt landfast med Skåne,
og Østersøen var en ferskvandssø.
I
forbindelse med opgravning af nogle smårødder ved stendiget ud mod stien ved
Villa Mowgli blev der i 2010 fundet et cirka 12 centimeter lang fladehugget
segl af flint. Det lå cirka 10 centimeter under jordoverfladen. Seglet stammer
fra bondestenalderen og blev brugt til at høste korn. Det sker ikke helt
sjældent, at der findes hele funktionsdygtige segl nedlagt i jorden -
velsagtens som en art takofre efter en vel overstået høst. Bonde-stenalderen
omfatter tiden 3900 – 1700 f.Kr, men seglet er formentlig fra den senneolitisk
tid (2400 til 1700 f.Kr.). Jægerfolkene i Danmark havde dengang kontakt med
bondesamfund i Mellemeuropa, men først omkring 3900 f.Kr. begyndte jægerne her
i landet at dyrke jorden og holde husdyr. Skovområder blev fældet, afbrændt og
erstattet af kornmarker. Kvæg, gris og får dukkede op som husdyr. Den største
forandring var, at man nu kunne fremstille fødevarer selv. Kystfiskeriet blev
stadig brugt og bondebefolkningen jagede og fiskede fra de lokale
fangstbopladser.

Fladehugget segl af
flint fundet ved Villa Mowgli i 2010.
De mange gravhøje i området stammer fra
bronzealderen (cirka 1500 til cirka 400 f.Kr.). Ordrup Kirke, der ligger et par
hundrede meter fra Villa Mowgli, er f.eks. opført på den tidligere gravhøj
kaldet Vasehøj (til tider også kaldet Egehøj). Ordene
”Vase” og ”Ege” henviser til at man i bronzealderen benyttede bunker af
træstammer (vaser) og udhulede egetræsstammer i opbygningen af gravhøje. Ovenpå
kisten lagde man sten og derefter store mængder jord og græstørv, formet som en
rund, markant høj, der ragede op og kunne ses flere kilometer væk. Vasehøj er i
ældre litteratur beskrevet som en storhøj fordi den
var større og mere markant end den gennemsnitlige gravhøj i området. Vasehøj
stammer fra perioden mellem cirka 1700-1100 f.Kr., og de ældste dele er
sandsynligvis opført omkring 1400-1200 f.Kr. - altså for godt 3.000 år siden.
I
en stor bronzealdergravhøj som Vasehøj blev der typisk først begravet en
høvding eller en anden fremtrædende person. Højen blev derefter gradvist
udvidet, efterhånden som nye høvdinge og nære slægtninge blev lagt til - ofte
over en periode på 100-200 år. På den måde voksede gravhøjen, indtil den ikke
længere blev brugt som gravsted. Egetræskisten
i midten har formentlig – som i andre gravhøje - indeholdt rige gravgaver som
bronzespænder, tøjrester, smykker og dagligdags genstande, men da man fjernede
gravhøjen i sommeren 1874 i forbindelse med opførelsen af kirken, var alt dette
allerede væk.
Kun
elite og ledere blev begravet i disse gravhøje, medens almindelige folk typisk
fik mindre eller adskilte grave i området. I afsnittet Det gamle Ordrup
nedenfor, er gengivet et billede af gravhøjen inden kirken blev opført.
Af oldtidens mere spredte bebyggelse voksede
landsbyerne frem. Det vides ikke præcist, hvornår landsbyerne opstod, men i
perioden mellem år 1000 og 1300 blev der i Danmark grundlagt en række nye
torper (nybyggerlandsby), hvor gårdene flyttede lidt rundt inden for de
eksisterende herreder. På overdrev (fælles græsningsareal) og alminding
(fællesjord) brød enkeltpersoner eller små fællesskaber jorden op til marker og
skabte nye landsbyer. Nordøst for Gentofte opstod tre torper (indhegnet jord),
hvoraf Ordrup (torpen på oret) var den ene. Ordrup omfattede senere otte gårde
med tilhørende jorder omkring byen. De to andre torper var Jestorp (senere Ibstrup) og Mellerup, som senere blev lagt under Ibstrup. Ibstrup udviklede sig
siden til Jægersborg, og Mellerup lå mellem det nuværende Jægersborg og Ordrup.
Gentofte og Ordrup nævnes første gang i et
brev fra omkring 1170. Brevet, udstedt af biskop Absalon (cirka 1128 – 21.
marts 1201), er et mageskiftebrev mellem ham og Esrum Kloster. Absalon
beskriver, hvordan han bytter et skovområde ved Tømmerup tilhørende ham selv
med klostrets ejendomme, herunder to bol (mindre gårde eller beboelsessteder) i
Gentofte og en tredjedel af landsbyen Ordrup. Formålet var ”at bringe jorden
til kirkelig nytte, især til ære for Jomfru Maria”. Absalon sikrede, at
ingen senere konge eller biskop kunne anfægte byttet, som han stadfæstede til
evige tider. Handlen blev bevidnet af både gejstlige og lægfolk, herunder
Walter, Absalons kapellan.
Brevet kendes som Absalons gavebrev til
Esrum Kloster og regnes som den ældste skriftlige kilde, hvor både Gentofte og
Ordrup nævnes. Det kan dog virke lidt misvisende at kalde det et gavebrev, idet
Absalon bl.a. fik Gentofte og dele af Ordrup til gengæld. Så Absalons
mageskifte med Esrum Kloster ville måske være mere passende.
Dokumentet findes i Diplomatarium Danicum, hvor det i uddrag hedder:
”Siluam.
planiciem. culta que infra hos concluduntur
terminos. susceperunt de manibus meis fratres
sancte Marie de Esrom uulgari
scotacione et plena collacione. conferentes mihi meisque suceessoribus.
duos mansos in Giafnetofth.
et terciam partem in uillula que Worethorp
haut illic longe uocatur”.
Eller oversat til nydansk:
”Den skov, slette og dyrkede jord, som
indesluttes inden for disse skel, har brødrene i Vor Frue i Esrum modtaget af
mine hænder, idet de overdrager mig og mine efterfølgere to bol i Gentofte og
en tredjedel i torpen, som kaldes Ordrup, ikke langt derfra”.
Gentofte er den ældste by i området og
nævnes igen den 21. oktober 1186 i et pavebrev, hvor pave Urban III (cirka 1120
– 20. oktober 1187) stadfæster Absalons gave af “Gefnetofte”
til Roskilde bispestol. Gentofte Kirke er opført omkring 1176.
Der findes også et brev fra den 13. november
1198, hvor Pave Innocens III (22. februar 1161 – 16. juni 1216) i lighed med
sin forgænger pave Urban III stadfæster, at ærkebiskop Absalon efter sin død
vil skænke borgen Havn (senere København) tillige med tilliggende gods i de
omkringliggende landsbyer, inkl. hovgården i ”Gefnetofte”
med alle dens tilliggender til kirken i Roskilde.
Gentofte har formentlig oprindeligt været en
privat stormandsgård med tilhørende bøndergårde og trælle. Navneendelsen “-tofte”
kan spores til tiden mellem 700 og 900 og betyder indhegnet jord eller jord i
særeje - dvs. et område udskilt som privat eje i vikingetiden.
Ordrup er omtalt i jordebøgerne i 1370, hvor
der nævnes én gård i landsbyen, ejet af lensmand Henneke
Moltke (cirka 1350 – 1402) på Nyborg. Senere var flere gårde i Ordrup op gennem
1400- og 1500-tallet underlagt forskellige store godsejere, især Roskilde
bispestol.
Endnu i 1507 havde bispen af Roskilde gods i
Ordrup. Det år foretog biskop Johan Jepsen Ravensberg
(1452 – 14. april 1512) nemlig et mageskifte, hvor han overdrog tre gårde i
Ordrup til Kong Hans (2. februar 1455 – 20. februar 1513). Samtidig fik kongen
yderligere ti gårde i Ordrup fra en Jens Jonsen, præst og vicarius
(stedfortræder) ved Birgitte-alteret i Vor Frue Kirke i København. Kong Hans
kom således til at eje næsten alle gårdene i Ordrup by, sandsynligvis for at
sikre hovbønder til den nærliggende kongsgård Hvidøre.
På det tidspunkt var Hvidøre en af kongens
store hovedgårde på Sjælland, direkte ejet og administreret af de danske
konger, først Kong Hans og senere hans efterfølgere. Hvidøre fungerede som
centrum for krongodsets forvaltning i området, og gården havde et betydeligt
landbrugsareal, egne marker, huse og tilknyttede bøndergårde i nærliggende
landsbyer som Ordrup. Disse bøndergårde leverede afgifter, hoveriarbejde og
produktion til hovedgården.
Kongsgården var også en vigtig residens og
jagtslot for kongen og hans følge. Hvidøre lå strategisk ved Øresundskysten og
blev benyttet som udskibningssted for store kongelige begivenheder, herunder
modtagelse af udenlandske gæster og kongelige brude. Således modtog Christian
II (1. juli 1481 – 25. januar 1559) sin vordende brud Elisabeth af Habsburg
(18. juli 1501 – 19. januar 1526) her i 1515 da de skulle giftes. Gården blev
flere gange forlenet eller udlagt til kongelige embedsmænd som led i forvaltningen
af krongodset.
Selve bygningsanlægget bestod på denne tid
af et større bindingsværkshus omgivet af avlsbygninger og gårdsplads samt store
marker, engarealer og skovområder, der strakte sig ind over det nuværende
Charlottenlund og Gentofte. Hovedgården var centrum for administration og
indsamling af afgifter fra bøndergårdene i Ordrup, der som nævnt i 1507 blev
mageskiftet til kongen for at styrke arbejdskraften og det økonomiske grundlag
på Hvidøre.
Sandsynligvis blev flere af gårdene i Ordrup
nedlagt gennem 1500-tallet, og jorderne blev underlagt kongens gård. I 1600- og
1700-tallet - helt frem til Udskiftningen - var der som det fremgår nedenfor
nemlig kun otte gårde tilbage i Ordrup, og de regnedes kun som halvgårde -
altså mindre brug ofte under en tønde hartkorn. Hartkorn var på det tidspunkt
et skattemæssigt mål, svarende til omtrent seks hektar eller 60.000
kvadratmeter.
I 1659 blev Ordrup landsby pantsat til
Balthasar Seckman (1624 - 20. september 1675), der
var skriver på det kongelige klædekammer. Byen blev dog indløst af Frederik III
(18. marts 1609 – 9. februar 1670) igen allerede i 1664.
I 1635 bestod Ordrup af otte gårde, og i
1682 var der i Ordrup landsby foruden de otte gårde, et hus med jord og seks
huse uden jord. Det samlede dyrkede areal udgjorde 263 tønder land.
Dyrkningsformen var trevangsbrug, hvor man i landsbyfællesskabet dyrkede tre
afgrænsede stykker agerjord med en 3-årig rotation.
Indtil midten af 1700-tallet var Ordrup en
ren bondeby. Indbyggerne var fattige og forarmede
fæstebønder, der udførte hoveri på det lokale herresæde, og bønderne var fra år
1733 til år 1788 desuden underlagt stavnsbåndet, der påbød dem at forblive på
deres fødegods.
En fæstebonde var en landmand, der dyrkede
en gård, han ikke ejede selv, men havde fået tildelt af f.eks. en godsejer,
kongen, kirken eller universiteterne. Brugsretten blev formaliseret gennem et
fæstebrev, hvor bonden betalte et engangsbeløb - kaldet indfæstning
- samt årlige afgifter, ofte i form af arbejde, afgrøder eller penge, kaldet
landgilde. Fæsteforholdet var normalt livslangt, og bondens enke havde også ret
til at blive boende, så længe kontraktens vilkår blev opfyldt. Ejeren kunne kun
opsige kontrakten, hvis bonden eller enken brød aftalen, og var forpligtet til
at finde en ny fæster, hvis gården blev ledig, for at undgå at landbrugsjord lå
øde hen. Fæstebonden kaldtes også gårdfæster, og i folkemunde hovbonde.
Systemet spillede en vigtig rolle i Danmark indtil slutningen af 1700-tallet,
hvor de fleste fæstegårde gradvist overgik til selveje. De sidste fæstebønder
forsvandt med jordlovene i 1919, og fæstegårde fandtes både i små og store
udgaver. Fæstebreve kunne indeholde mange krav, f.eks. at bonden skulle hjælpe
på godsets marker, og systemet var reguleret af omfattende kongelig lovgivning
for at sikre stabilitet i landbruget.
I 1654 hærgede pesten Danmark og nåede
Ordrup den 26. maj, hvor en meget stor del af befolkningen døde - formentlig
omkring 40 % af sognets indbyggere. I husstanden hos bonden Peder Larsen
i Ordrup døde for eksempel to sønner, to døtre og til sidst hustruen, og også i
Gentofte og Vangede blev mange familier udslettet. Ud fra Gentofte sogns
dødsliste, der dengang dækkede Gentofte, Ordrup, Vangede og den kongelige gård Ibstrup (det senere Jægersborg), kan man skønne, at omkring
170 personer døde ud af cirka 400 indbyggere i alt.
Også
under Svenskekrigene, der omfattede en række konflikter mellem Danmark og Sverige
i det 17. århundrede, blev Ordrup ramt af betydelige ødelæggelser. Den mest
dramatiske periode fandt sted omkring 1658, under Karl Gustav-krigen.
Svenskernes invasion af Danmark medførte omfattende ødelæggelser i
Nordsjælland, og Ordrup blev ikke skånet.
Niels
Jensen var fæster på den senere Lindegaard og blev direkte ramt af krigens
ødelæggelser, da hans gård blev nedbrændt af svenske soldater. Lars Petersen
var på det tidspunkt fæster på den senere Eigaard, og
denne gård blev også ødelagt under krigen.
På
det tidspunkt blev gårdene formentlig kun omtalt efter navnene på
fæstebønderne, der beboede gårdene, men det er muligt, at de navne, som senere
kom, blev formaliseret eller ændret i løbet af tiden som en del af
genopbygningen. Det mest sandsynlige er nok at gårdene fik deres navne i
forbindelse med den senere beskrevne lodtrækning.
Gårdenes
ødelæggelser, plyndringer og den efterfølgende genopbygning, understreger de
omfattende konsekvenser af krigen på lokalbefolkningen og deres gårde.
Udenrigsminister Johann Hartwig Ernst
lensgreve von Bernstorff (13. maj 1712 – 18. februar 1772) var i starten af
1760'erne - ved Donations- og Concessions-Brev fra
Kong Christian V - blevet ejer af Gentofte Mark, der senere blev kaldt
Bernstorff Gods, de tilliggende jordarealer og det dertil hørende hoveri af
bønderne i Gentofte, Vangede og Ordrup. Bernstorff var godsejer fra Hannover og
skulle senere blive kendt for sit store reformarbejde med at forbedre bøndernes
vilkår. Gennem sine interesser for korndyrkningen opdagede han nemlig, at han
kunne høste næsten tre gange så meget på sine marker som bønderne i Gentofte,
Vangede og Ordrup kunne høste på deres.

Johann Hartwig Ernst lensgreve
von Bernstorff.
Bønderne i Ordrup udmærkede sig dog ved at
de kunne høste omtrent dobbelt så meget rug som bønderne i Gentofte og Vangede,
og det gav ifølge Bernstorffs tiendelister fra år 1758 til 1765 en årlig
gevinst på 40 tønder pr. Ordrup-bonde - eller en fortjeneste pr. bonde på 10
rigsdaler og 11 3/4 skilling. Herfra skulle så trækkes tiende og sædekorn,
hvorfor den enkelte bonde som udgangspunkt ikke bidrog væsentligt til godsets
drift.
Den enkelte bondes indtjening var da heller
ikke noget at råbe hurra for.
Den årlige høst af hø på bøndergårdene i
Ordrup kunne ikke dække hestenes, køernes, studenes og fårenes forbrug af
foder, hvorfor 32 af byens 62 heste i ovennævnte periode er opført som
udgangsøg, hvilket vil sige at øgene om vinteren måtte klare sig med det foder,
de kunne finde ude på markerne.
Ved at have cirka halvdelen af hestene ude
hele året kunne der blive mad til de øvrige dyr, samtidig med at den enkelte
bonde hvert år kunne sælge hø i København for 8-9 rigsdaler.
Desværre var flere bønder allerede om
efteråret nødsaget til at sælge så meget hø og halm, at de ikke kunne fodre
deres dyr til den efterfølgende påske, og ofte måtte bønderne derfor sætte
kvæget på græs så snart sneen var væk, og endnu inden der var meget grønt på
markerne.
Det var sjældent, at der var mad nok til
opdræt og salg af plage og stude, og udbyttet fra får, svin og fjerkræ nåede i
bedste fald at dække den daglige husholdnings behov. Dyrkningen af køkkenurter
har formentlig indskrænket sig til en række grønkålsstokke ved hver gård.
Et kærkomment tillæg til indtjeningen var
at skære tørv og køre det til København. Når bonden havde dækket sit eget
behov, kunne han hver måned mellem juli og marts bringe fire til fem læs tørv
til København, hvilket skulle have indbragt ham cirka en rigsdaler pr. læs.
Bønderne udenfor Københavns omegn eller
bønderne, der boede meget længere væk end dem i Ordrup, havde ikke mulighed for
at køre tørv og afgrøder til København, hvorfor lønninger til dygtige karle og
håndværkere i Ordrup på det tidspunkt var cirka dobbelt så høje som f.eks.
lønningerne i Vordingborg. En dygtig karl kunne i 1765 i Ordrup tjene 50-60 sletdaler om året, medens man længere ude på landet kun
skulle betale 18-24 sletdaler. En pige fik 12-15
daler mod 6-7 daler andre steder.
For
at sætte de nævnte møntfødder lidt i perspektiv, begynder historien før 1625,
hvor en sletdaler var lig med fire mark. Fra 1625
skete der en væsentlig ændring med indførelsen af rigsdaleren eller
speciedaleren, som var opdelt i 6 mark, og hver mark var yderligere opdelt i 16
skilling. Sletdaleren fortsatte dog med at være i
brug parallelt med rigsdaleren gennem hele 1700-tallet. I 1813 introduceredes
rigsbankdaleren som ny møntenhed, og i 1854 blev denne omdøbt til rigsdaler med
værdien af en halv speciedaler. Et afgørende vendepunkt kom i 1875 med
indførelsen af kronen, som havde værdien af en halv rigsdaler. Det er fra denne
periode, at udtrykket "en daler" stammer som betegnelse for en
gammel to-krone.
Ligesom det fortælles i Jeppe på Bjerget af
Holberg, blev områdets bønder fristet af brændevinen fra de omliggende kroer,
hvilket betød, at dagens indtægter fra salget i København desværre ofte blev
liggende på kroerne.
Bernstorff Gods opgjorde i 1760'erne en
Ordrupbondes årsindkomst til cirka 58 rigsdaler, hvilket isoleret set var
udmærket. Den tilsvarende indkomst i Gentofte og Vangede lå på henholdsvis 46
og 44 rigsdaler. Problemet var, at udgifter til afgifter og skatter til det
kongelige herskab beløb sig til 34-35 rigsdaler, medens udgifter til en karl,
en pige og en dreng var i alt mindst 44 rigsdaler. Hertil kom udgifter til
sadel- og hjulmager, tøj, skomager samt smed til vedligeholdelse af de
nødvendige dyrkningsredskaber.
Bøndernes gældsbyrde voksede derfor år for
år, og mange bønder måtte forlade deres gårde, hvorefter godsejeren fik
problemer med at finde nye fæster.
Det var således ikke noget strålende aktiv
Bernstorff overtog da han fik sit nye gods. Bønderne var ludfattige og
forarmede, men Bernstorff skulle alligevel svare landgilde og huspenge til den
kongelige kasse. Kun indfæstningen (hoveri) og sagefald
(pengebøder) tilfaldt Bernstorff Gods.
Johann Hartwig Ernst lensgreve von
Bernstorff fandt hurtigt ud af, at en forbedring af bøndernes vilkår var
nødvendig for, at både han og bønderne skulle kunne klare sig.
Der var allerede i 1760 i
hertugdømmerne i Tyskland gjort forsøg med at gennemføre hoverifrihed og
afskaffe arvefæste for bønderne. Dette var bl.a. sket på Godset Stedingshof, der var ejet af greve Christian Günther
Stolberg (9. juli 1714 – 22. juni 1765) med hvis datter Johann Hartwig Ernst
lensgreve von Bernstorffs brodersøn, Andreas Peter Bernstorff (28. august 1735
– 21. juni 1797), i 1762 giftede sig. Forsøgene var forløbet godt, men Johann
Hartwig Ernst lensgreve von Bernstorff var ikke helt tilfreds med udbyttet.
Bernstorff forestillede sig, at bønderne
ville kunne yde og tjene mere til både godset og dem selv, hvis de fik friere
tøjler og samtidigt blev opmuntret ved at være ejere af deres egne gårde og
marker.
Johann Hartwig Ernst lensgreve von
Bernstorff og hans godsforvalter, Torkel Baden (26. maj 1734 – 14. november
1805), skal således have sagt "at Fællesskab og Hoveri skulle ophæves
og Bonden ved Eiendoms rettighed deels
opmuntres, deels sættes fuldkommen i stand til at
benytte sig af de frie Hænder, som han herved fik med en i alle måder
uindskrænket Industrie".
Med bistand fra sin brodersøn, Andreas
Peter Bernstorff, og godsforvalteren gennemførte Johann Hartwig Ernst lensgreve
von Bernstorff i 1764-1765 - som den første i Danmark – den trepunktsplan for
godset Bernstorffs jorder, der senere skulle vise sig at reformere hele det
danske landbrug.

Torkel Baden malet i 1793.
Hoveriet skulle afskaffes og afløses af en
pengeafgift så bonden kunne anvende sin tid på at dyrke sin egen jord.
Livsfæste skulle erstattes med selveje, hvorved bonden ville få større
interesse i at forbedre sin gård. Og dyrkningsfællesskabet, hvor al jord på et
gods var genstand for fælles arbejde, skulle ophæves og jorden udskiftes ved at
gårdene skulle flyttes ud på deres egne marker (Udskiftningen). Stavnsbåndet
måtte fortsat bestå, idet dette var en særlig lov, der gjaldt for hele landet.
Gårdene i Ordrup lå på dette tidspunkt tæt
sammen og byen bestod kun af de otte bindingsværksbyggede og stråtækte gårde,
en smedje, nogle småhuse samt et par år senere af en kro. Gårdene, der senere
blev kaldt Lindegaard, Teglgaard, Eigaard,
Holmegaard, Skjoldgaard, Hyldegaard,
Damgaard og Skovgaard, var alle beliggende ved den tidligere Ordrup Kro omkring
krydset mellem Lindegårdsvej og Ordrupvej. Rundt om byen lå områdets marker.

Plan over Ordrup by
i 1766.
Kroen blev etableret den 2. februar 1768,
hvor tømrermester Jens Larsen Bruun fik byens første kgl. bevilling af Kong
Christian VII (29. januar 1749 – 13. marts 1808) til “udi Ordrup Bye at indrette og herefter holde et Kroe
eller Vertshus, og de Rejsende saavelsom
andre Behøvende Logementer samt Spiese
og Drickevahre til Nødtørftighed og for en Billig
Betaling sammested betiene
med Vilkaar: at hand icke ved Stadet maae Brøgge Øll til Kroeholdets Fornødenhedsaa at
Kroet icke til noget Fylderie
og Tidsspildefor Bonden eller andre vorder misbrugt”.
Eller på nudansk ”at etablere og herefter
drive en kro eller værtshus i Ordrup by, og betjene de rejsende såvel som andre
trængende med logi samt mad og drikke til rimelige priser og efter behov, og på
betingelse af, at han ikke måtte brygge øl på stedet til kroens brug, så kroen
ikke blev misbrugt til druk og tidsspilde for bønder eller andre”.
Jens Larsen Bruun (1735 – 7. maj 1800) blev
stamfar til et helt dynasti, hvis slægt i cirka 100 år var indehaver af
bevillingen på Ordrup Kro. Slægten tæller også
smørgrosserer og møntsamler Lars Emil Bruun (29. marts 1852 - 21. november
1923), hvis familie lagde navn til flere veje i området, herunder Annettevej, Ingersvej, Emilievej, Hans Bruuns Vej, L.E. Bruuns
Vej og Ole Bruuns vej, hvoraf sidstnævnte er opkaldt efter hans far.
Lars Emil Bruun var
en betydningsfuld forretningsmand, der grundlagde sin smøreksportvirksomhed i
1883. Han blev kendt for sin omfattende møntsamling, som ifølge hans testamente
skulle opbevares i 100 år før den måtte sælges. Lars Emil Bruun foretog omfattende
opkøb af landbrugsarealer i Ordrup, som han udstykkede til villabyggeri,
hvilket forklarer de mange vejnavne opkaldt efter familien
Allerede inden den rigtige kro blev
etableret, var der også en form for kro på stedet. Hvornår denne kro blev
etableret, vides ikke med sikkerhed, men allerede i 1673 havde en krokone i
Ordrup sin faste stol i Gentofte Kirke, og i 1705 fandtes ”én liden Kroe udi Kgl. May’s Fæstehus”.
May var her en forkortelse for Majestæt, og betød at huset var opført på
foranledning af kongen altså et hus under kronens ejerskab. Stedet blev drevet
af en løjtnant Rasmus Grønholdt, der påstod at have
fået bevillingen efter 42 års tjeneste som soldat. Det har formentligt kun
været et lille uanseligt sted. Kroen skulle i 1807 være blevet benyttet af
englænderne som lazaret for cirka 150 sårede og syge.
Før Bernstorffs reformer kunne sættes i
værk, blev markerne i Ordrup indtegnet på et ”Special Carte Over Den Under
Gaarden Bernstorff Henhørende Bondebyes Ordrups
Marker Som Viser Markernes Inddeelning For Fælleds
Skabets Ophævelse”. Området blev af landmåler Peter Jacob v. Wilster (født
cirka 1731) opmålt og vurderet stykke for stykke efter jordens art. Derefter
blev det hele inddelt i stykker som skulle have samme ydeevne. Og til sidst
blev der trukket lod mellem fæstebønderne om de forskellige jordstykker.
Opmålingen blev påbegyndte den 7. september 1764.
Nedenfor er ét af de i alt tre farvelagte
kort fra 1765 over de tre landsbyer gengivet. På kortet vises beliggenheden af
Ordrups tre vangeder, byens grænser og inddeling i agre og åse, loddernes
plovretning, alle enge og moser, søer og vandløb, oredrev
og krat, alle veje og stier, gårdenes og husenes placeringer i landsbyen, samt
alle på det tidspunkt eksisterende oldtidshøje. Originalkortene ligger i dag i
Matrikelkontorets arkiv.

Special Carte Over Den
Under Gaarden Bernstorff
Henhørende Bondebyes Ordrups Marker.
Lodtrækningen mellem bønderne om Ordrups
jorder fandt sted klokken 13 den 1. september 1765 ved et højtideligt
arrangement ved Bernstorff Slot, og med et festligt traktement. Avisen Kiøbenhavns Kongelig alene priviligerede
Adresse-Contoirs Efterretninger beskrev den 9.
september 1765 udførligt hvordan forarbejdet og lodtrækningen fandt sted og
hvordan ”samtlige Ordrups Gaardmænd, og i egen Overværgelse ved tvende smaa
Drenge havde udtaget to forskellige lodder, hvoraf det ene var betegnet med Gaardmandens Navn, det andet med Navnet på en af de nye
Gaarde (thi enhver Gaard har faaet sit besynderlige
Navn)”. Herefter beskrives, det hvordan godsforvalter Baden overdrog en
nøjagtig fortegnelse over det nye ejerskab til bønderne.
Bønderne havde været nervøse for, hvad de
store omvæltninger skulle bringe dem, men allerede sidst på eftermiddagen, da
spændingen var udløst, beskriver avisen hvordan bondefamilierne begav sig ud i
området for at bese deres nye marker.
Den 10. september 1765 foregik lodtrækningen
af Gentoftes marker, og den 22. juli 1766 var det Vangedes tur.
Eigaard, hvorfra Villa Mowgli blev
udstykket, fik ved lodtrækningen en temmelig uregelmæssig form, der bestod af
to smalle jordstykker, der dannede en figur som bogstavet "L". Den
vestlige firkant strakte sig langs Lindegårdsvejens østside fra Jægersborg Allé
til Ordrup by og omfattede foruden et stykke af Korøglerne de østlige dele af
Langagre og Tværagre, desuden Flederne og Trunneagrene og den vestlige del af Ellemosen indtil Skjoldgaards skel. Den anden firkant lå mellem byen og
Ordrup Jagtvej og indeholdt Vaseagrenes sydlige halvdel og det vestlige stykke
af Skovagrene. Arealet var på 65½ tdr. land, men forøgedes i 1776 med
kratskoven Eiet, som Bernstorff ved lodtrækningen
oprindeligt havde forbeholdt sig selv.
Den oprindelige vej mellem Ordrupvej og Jægersborg Allé
blev flyttet så den kom til at ligge langs skellet mellem Eigaard
og Lindegaard. Vejen på kortet langs den nuværende Lindegårdsvej findes således
ikke mere.

Special Carte Over
Den Under Gaarden Bernstorff
Henhørende Bondebyes Ordrups Marker.
På kortet er med grønt indtegnet Eigaards tildelte markarealer med Eiet
og mosen. Desuden er markeret det sted, hvor Ordrup by var placeret (gul pil),
samt de steder, hvor Lindegårdsvej (violet pil), Eigaard
(grøn pil), Ordrup Kirke / Vasehøj (blå pil) og Mowgli (lyseblå pil) senere
blev henholdsvis anlagt og opført. Det kantede areal til venstre på kortet
(rødt område) er Charlottenlund Slotspark, hvor Jægersborg Allé går ud fra
toppen og hvor Ordrup Jagtvej går ud fra højre mod Christians Holm (stiplede blå
streger). Øverst i kortet ses benævnelsen Hovmarkerne, der vidner om fortidens
hoveri, ligesom Øster Søen eller det nuværende Øresund er anført nederst.
Lindegårdsvej blev for øvrigt indtil 1811 kaldt Langelinie.

Kort fra 1765. Gårdens placering er blevet tilføjet i 1810.
Ved fordelingen af agerjorden blev Ordrup
Krat holdt udenfor. Dette skovareal på 86 tdr. land bestod primært af ung
bøgeskov med ringe underskov af hassel og el. Ordrup Krat blev opdelt i otte
lodder. I første omgang lod bønderne arealet henligge til fælles græsareal for
deres husdyr uden mellemhegn. Først senere blev der opsat hegn mellem
jordlodderne, og hver bonde fik sin egen indkørsel til deres jordstykke fra den
øst-vestgående vej, der var udhugget gennem krattet. På kortet nedenfor ses de
områder som gårdene fik tildelt inkl. græsningsarealerne ude til højre (som er
mod nord). Eigaard – eller ”Eye Gaarden” som
der står – fik tildelt areal B. Dette jordstykke lå omtrent der hvor
Skovgårdsvej i dag ender i Klampenborgvej med jord på begge sider af denne vej
og således området nord for Kratvænget.

Kort over Ordrup med
angivelse af gårde og fællesstykker.
Eksperimentet med at give fæstebønderne fri viste
sig at være en god forretning for J.H.E. Bernstorff. Bønderne betalte en vis
procentdel af deres indtægt til Bernstorff Gods, og bøndernes indtægter steg så
meget, at de var i stand til at svare store afgifter. Nevøen A.P. Bernstorff
kunne i 1768 meddele sin fader, "at det var utroligt i hvilken grad
bøndernes arbejde og flid blev forøget siden de blev selvejere og proprietairer på deres godser".
Bøndernes fattige kålgårde blev på få år
afløst af store smukke haveanlæg, og skiftede således helt karakter.
Utilfredshed og fattigdom blev afløst af taknemlighed og velstand.
Taknemligheden var så stor, at de nye
selvejere den 1. december 1773 mødtes på Eigaard og
stiftede ”Gaardmændenes Forening paa Bernstorffs Gods” med det formål at rejse et
synligt minde om Johan Hartvig Ernst Bernstorff. Ti år senere kunne planen
realiseres og den 28. august 1783 kunne man ved en stor højtidelighed afsløre
Bernstorffstøtten på en høj ved Kongevejen syd for Gentofte. Støtten står nu
ved Lyngbyvejen lige syd for Kildegårds Plads og tæt på Barsehøj.
Støtten regnes som en forløber for Frihedsstøtten.
Mindestøtten bærer følgende indskrift:
Æreminde
efter Døden - for - Johan Hartvig Ernst - Greve af Bernstorff - som gav -
udskiftede hovning frie arvelige - Gaarde - med dem
Stræbsomhed Velstand alt - til Mønster for Efterslægten - MDCCLXVII - oprettet
- af Godsets takfulde Beboere - MDCCLXXXIII.

Den syv meter høje
støtte udført af Johannes Wiedewelt.
Lykken blev lang for områdets bønder, men
J.H.E. Bernstorff kom ved Johann Friedrich Struensees
magtovertagelse i 1770 i unåde og måtte forlade landet for ikke siden at gense
hverken sit gods eller resultatet af sit reformarbejde. Johann Friedrich
Struensee (5. august 1737 – 28. april 1772) var livlæge og rådgiver for den
skizofrene Kong Christian VII og hemmelig elsker med hans dronning Caroline
Mathilde (22. juli 1751 – 10. maj 1775).
Da
J.H.E. Bernstorff måtte forlade Danmark i 1770, blev Bernstorff Slot og gods
overtaget af hans nevø, Andreas Peter Bernstorff. Andreas Peter Bernstorff
brugte slottet som sommerbolig og videreførte slægtens engagement i
landboreformerne frem til sin død i 1797. Herefter forblev slottet i
Bernstorff-slægtens eje, indtil A.P. Bernstorffs søn, Magnus Bernstorff
(1732-1819), i 1812 solgte det til justitsråd Christian Borch (1740-1825). I
løbet af de næste årtier skiftede slottet ejer flere gange, inden det den 9.
december 1842 blev købt af Christian VIII (18. september 1786 – 20. januar
1848) og dermed indgik i kongehusets besiddelser.
Udflytningen, hvor bønderne, hvis blot en af
deltagerne i fællesskabet ønskede det, kunne flytte deres gårde ud på de
tildelte marker, gik i starten langsomt, idet mange frygtede ensomheden. Kun
Damgaard var i 1770 blevet flyttet ud på dens mark ved den nuværende
Emiliekildevej.
Den 6. september 1798 nedbrændte
størstedelen af de resterende af Ordrups stråtækte huse og gårde på bare tre
timer. Branden opstod i Teglgaards snedkerværksted, da en limpotte kogte over
og antændte nogle høvlspåner. Ifølge aviserne blev ”omtrent 40 familier
ødelagt, og de manglede nu hus, føde og klæder”. Det er ikke muligt at
verificere om det er rigtigt at 40 familier skulle være berørt af branden, men
det var mange personer, der nu stod uden tag over hoved. Den 17. september 1798
måtte gårdmand Rasmus Jensen ovenikøbet i avisen under rubrikken ”Bortkomne
Sager” efterlyse sine køer, der var stukket af under branden. De var ifølge
avisen hvide med rødagtige pletter.

Udsnit af Fyens Stifts Kongelig allene
privilegerede Adresse Avis den 12. september 1798.
Som det ses ovenfor, kom nyheden om branden
i Ordrup vidt omkring. Teksten i avisomtalen fra Fyn er lidt svær at læse, men
lyder som følger:
I torsdags formiddag opstod også en
ulykkelig ild i den skønne landsby Ordrup (1 1/4 mil fra hovedstaden, på vejen
til Dyrehaven) som lagde hele byen, på 5 steder nær i aske. Skaden er meget
stor. Af de afbrændte steder vil den for de assurerede (forsikrede) omtrent
blive 10.000 rigsdaler. Ilden tog så heftig overhånd, at lidet eller intet blev
reddet. Således mistede en mand alene møbler for 2.000 rigsdaler. Den gamle
urtekræmmer Kolding fra København, som boede der på fine sommerværelser, og som
ville redde nogle papirer fra luerne, blev et rov for disse. I en gård
indebrændte 11 svin. Ligeledes brændte al sæden, som for dette år var indavlet.
Ilden skal være kommet fra en tømmermand, som ville lime noget, hvorpå der gik
ild i en del høvlspåner, som tilfældigt greb vildt om sig. Det som så meget
forskønnede Ordrup, var de mange lystgårde, som Københavns borgere havde
sammesteds.
Også Aahus Stiftstidende kunne den 12.
september 1798 nævne, at ”I går formiddag kl. 11 opstod en stor ildebrand i
Ordrup By på Bernstorffs Gods, Københavns Amt, hvorved 6 gårde og 16 huse er
lagt i aske”. Og Ribe Stiftsavis beskrev, at en indsamling på Børsen i
København to dage efter branden på en time havde indsamlet 4.000 rigsdaler til
at understøtte de brandlidte bønder i Ordrup. Atter
andre aviser kunne oplyse, at falske tiggere nu gik rundt i Københavns gader
under foregivne af at være brandlidte fra Ordrup.
I stedet for at genopbygge gårdene inde i
selve byen, besluttede ejerne sig for - i overensstemmelse med Udflytningen -
at flytte de sidste gårde ud på deres marker. Eigaard
var eller blev opbygget på jorderne lige syd for Vasehøjen, og den gamle krat-
og egeskov kom derved til at danne en fortsættelse af gårdens store have.
Ordrup Kro blev efter branden genopført, og
var, da smedjen blev revet ned i 1900, ophøjet til hotel. Sidenhen er Ordrup
Kro blevet omdannet til boliger.
De tomme grunde i byen blev dels solgt til
håndværkere, og dels til københavnere, der opførte sommerboliger på
brandtomterne.
Det bybillede, der i årene
efter branden i 1798 blev skabt i Ordrup, bestod indtil slutningen af
1800-tallet, hvor en skole, to kirker og de første større huse holdt deres
indtog.
Den 1. maj 1867 fik Ordrup nemlig sin første
skole. Det var den unge og nybagte seminarist Ole Jacobsen (27. marts 1849 –
31. januar 1921), der dengang etablerede Ordrup Realskole på Hyldegårdsvej 11 -
kun 18 år gammel, og dermed satte sig selv og sin arv fra Hyldegaard
i et så tvivlsomt foretagende som en privat realskole i Ordrup. Det viste sig
at være en bedre idé end mange i den lille landsby troede. Skolen blev udvidet
i 1883 og først nedlagt i 1918. Skolen havde til huse i den nu nedrevne bygning
Hyldegårdsminde.
Det kan tilføjes at Ordrup Privatskole i
stedet blev grundlagt i 1918. Skolen lukkede i 1992, og havde i dens levetid
til huse forskellige steder i byen – bl.a. på Gudrunsvej 12 hos fru Gella Jeanette Bruun (født Levy i 1884 og niece til den
tidligere ejer) i en periode under 2. verdenskrig.

Hyldegårdsminde –
Ordrups første skole.
Det var om Ole Jacobsen, at Peter Søren
Lemche (2. februar 1835 – 13. august 1901) den 21. december 1873 efter en
middag på Nordre Onsgård skrev "Den lille Ole
med paraplyen - ham kender alle små folk i byen", fordi Ole Jacobsen
året rundt gik rundt med sin paraply. Ole Jacobsen satte selv melodi til
sangen. Sangen blev første gang fremført privat den 22. december 1873 af
Lemches lille niece Margrethe Speerschneider (16.
januar 1870 – 26. april 1961) og blev offentligt fremført ved Ordrup
Sangforenings koncert på Ordrup Kro den 14. marts 1875. Sangen bygger på den
populære skikkelse Ole Lukøje, kendt fra Hans Christian Andersens (2. april
1805 – 4. august 1875) eventyr, der bringer børn dejlige drømme ved at brede
sin magiske paraply over dem. Ole Jacobsen og Peter Lemche var for øvrigt i
familie med hinanden, idet Peter Lemches kone, Karen Magdalene Jakobsen fra
Teglgaards farfars søster var farmor til Ole Jacobsen. Farmoderen
var gift med Jacob "Eigaard" Andersen og
ejede Eigaard fra 1795 til 1847, hvorefter Ole
Jacobsens tante købte den. Ole Jacobsen stammede fra Hyldegård
og var gift med en fra Damgaard.

Ole Jacobsen cirka 1915.
Som det ses, kunne Ordrup ligne én stor
familie, og ved et nærmere studie af de forskellige gårdes ejerforhold og
beboernes giftermål gennem tiderne, kan man da også konstatere, at alle
beboerne på de forskellige bondegårde i Ordrup var i familie med hverandre.
Traditionen fra Stavnsbåndet, hvor man måtte finde sin ægtefælle i nabolaget,
overlevede således mange år efter dets ophævelse.

Vasehøj før Ordrup
Kirke blev opført som malet af Niels Grønbek Rademacher i 1870.
Til venstre ligger Hyldegaard og til højre ligger Eigaard
(Øregård Museum).
Den 23. juni 1876 stod Ordrup Kapel (nu
kaldet Ordrup Kirke) færdigbygget på den gamle bronzealdergravhøj, Vasehøj (som
nævnt til tider også kaldet Egehøj), kun omgivet af
marker. Udgravningen blev påbegyndt i sommeren 1874 og opførelsessummen var
cirka 90.000 kr.. Hele beløbet var blevet fremskaffet
ved frivillige bidrag fra bl.a. kongehuset, der senere kom i kirken hver anden
søndag, etatsråd Ole Berendt Suhr (3. maj 1813 – 6. oktober 1875) fra Sølyst,
hofchef grev Christian Danneskiold-Samsøe (29. august 1836 – 1. november 1908)
og byens øvrige bedsteborger. Grunden til at Ordrup Kirke fik to tårne skal
efter sigende være at byens katolske Sankt Andreas Kirke, der stod færdigt
allerede i 1873, kun havde ét tårn. Opførelsen af Ordrup Kirke skulle gå
stærkt, da man frygtede at byens borgere ville søge mod den allerede opførte
katolske kirke.
Den katolske kirke blev for øvrigt opført på
initiativ af Polly Berling (14. februar 1825 – 30. januar 1895), der var
konverteret til katolicismen i 1869 og var enke efter bogtrykker Johan Carl
Ernst Berling (30. august 1812 – 30. marts 1871), og havde arvet Berlingske
Tidende. Efter ægtefællens død kunne hun frit disponere over formuen og den
jord, der hørte til deres landsted på Ordrupshøj, hvor kirken blev opført ved
siden af familiens mausoleum, der var blevet indrettet – og stadig ligger - i
oldtidshøjen Bavnehøj.

Tinglyst gavebrev på
Vasehøj fra den 7. juli 1876.
Ordrup Kirke blev oprindelig opført som
annekskirke til Gentofte Kirke, men Ordrup blev i 1891 udskilt som et særligt
sogn sammen med Charlottenlund og Skovshoved. Året inden byggeriet havde
justitsråd og sognerådsformand Vilhelm Nielsen (15. maj 1822 - 5. januar 1890),
der ejede den nordlige del af Vasehøj, og Birthe Marie Eigaard, der ejede den sydlige del af højen og som er nærmere
beskrevet i afsnittet Ejerne gennem tiden, stillet Vasehøj til rådighed for
byggeriet. Gavebrevet er først dateret den 7. juli 1876 og blev tinglyst den 2.
august 1876 – altså efter at kirken var opført, men en aftale er vel en aftale.
Frederik Christoffer Bülow, der ligeledes er beskrevet i afsnittet Ejerne
gennem tiden, sikrede ved et gavebrev dateret den 25. august 1890 at ”Komiteen
for Opførsel af en Præstebolig i Ordrup” fik en byggegrund stillet til rådighed
umiddelbart syd for kirken, hvor en præstebolig kunne opføres. Formand for
komiteen var skolebestyrer Ole Jacobsen.

Ordrup
Kirke og præstebolig som det så ud da
Villa Mowgli blev
opført.
Af de gamle gårde i Ordrup er det i dag kun
Lindegaard og Damgaard, der er bevaret. Hyldegaard,
som Gentofte Kommune erhvervede fra P.A. Albertis konkursbo, nedbrændte i 1935.
På Holmegaard ligger nu Ordrup Kirkegård. Teglgaard er for nylig blevet
nedrevet og Skovgaard nedbrændte i 1892 året efter at Travbanen var blevet
anlagt på dens marker. Endelig var der Skovgaard, hvis fredede hovedbygning
blev flyttet til Krathusvej 36 og Skovgårdskolen
placeret på grunden.
Eigaard, der var beliggende
tæt ved Ordrup Kirke, er også for længst forsvundet. Det var efter de
gamle overleveringer en hyggelig bondegård, der i de sidste mange år om
sommeren var udlejet til landliggere. Gården bevarede til det sidste sit
idylliske udseende med sin skyggefulde og frodige have midt i dens marker og
eng.

Eigaard som den så ud i
1872. Gården nedbrændte den 12. november 1896.
Kongehuset har i mange år tilbage i tiden
ejet store landarealer og slotte i området, og har således altid haft en nær
tilknytning til Jægersborg, Ordrup og Charlottenlund. I perioden 1620 til 1761
lå Jægersborg Slot - eller Ibstrup Slot som det hed i
starten - mellem Hundesø og Søndersø, der hvor
Jægersborg Kasserne lå. Slottet, der var omgivet af en voldgrav, lignede Rosenborg Slot, og blev i mange år brugt som bl.a.
kongeligt jagtslot.

Jægersborg Slot -
kobberstik af Johan Jacob Bruun fra 1756 (Det Kgl. Bibilotek).
Også på den tid, hvor Villa Mowgli blev
bygget, boede og færdedes medlemmerne fra kongehuset meget i området.
Den 9. december 1842
overtog Kong Christian VIII som nævnt Bernstorff Slot og gods, og efter kongens
død i 1848 overtog prins Christian af Glücksburg -
den senere Kong Christian IX (8. april 1818 – 29. januar 1906) - slottet i
1854. Herefter tjente slottet som sommerbolig for Kong Christian IX og Dronning
Louise (7. september 1817 – 29. september 1898) i en årrække.
Dronning Louise døde på Bernstorff Slot, og
efter Kong Christian IXs død i 1906 blev Bernstorff
Slot efter kongeparrets ønske stillet til rådighed for deres søn prins Valdemar
(27. oktober 1858 – 14. januar 1939) og hans familie. Ved prins Valdemars død
overgik slottet til forsvaret og blev siden 2. verdenskrig brugt af Civilforsvaret,
der anvendte slottet indtil udgangen af marts 2008, hvor de flyttet til andre
lokaler. Udflytningen skyldes stigende husleje og blev besluttet i forlængelse
af et større politisk forlig om redningsberedskabets struktur.

Obelisken til ære for
Kong Christian IX og dronning Louise.
Kongefamiliens tilknytning til Bernstorff
Slot er på Femvejen markeret med et mindesmærke, der blev afsløret den 7.
september 1913. Obelisken er tegnet af arkitekt og kongelig bygningsinspektør
Andreas Lauritz Clemmensen (7. august 1852 – 5. december 1928), og udført i
bornholmsk granit af billedhuggeren Anders Jensen Bundgaard (7. august 1864 –
19. september 1937).
Kong Christian IX og Dronning Louises ældste
søn, den senere Kong Frederik VIII (3. juni 1843 – 14. maj 1912), benyttede i
mange år Charlottenlund Slot som sin sommerresidens.
Det nuværende Charlottenlund Slot med senere
tilbygninger blev opført til og opkaldt efter prinsesse Charlotte Amalie (6.
oktober 1706 – 28. oktober 1782) i 1731-33 efter at broderen, Kong Christian VI
(30. november 1699 – 6. august 1746), overlod Gyldenlund og et gammelt
utidssvarende slot til hende ved gavebrev dateret den 17. oktober 1730. Kong
Christian VI havde selv som kronprins benyttet Gyldenlund om sommeren til
fester og jagter.
Kong Frederik VIII flyttede til
Charlottenlund Slot som kronprins i 1869 efter at Kong Christian VIII’s søster
prinsesse Louise Charlotte (30. oktober 1789 – 12. marts 1864) og hendes gemal
Landgreve Vilhelm af Hessen (24. december 1787 – 5. september 1867), der havde
benyttet slottet som sommerbolig, var døde. Kong Frederik VIII blev efter
sigende hurtigt populær blandt byens borger, hvor han gennem sine daglige
spadsereture og sin rundhåndede hjælpsomhed lærte næsten alle byens borgere at
kende ved navn.
Det fortælles, at kongen under en
spadseretur i skoven en mørk efterårsaften blev spurgt om vej af en ældre mand,
der ikke genkendte kongen. Kongen tilbød at guide manden den rigtige vej ud af
skoven, og efterfølgende tilbød manden kongen en 25 øre som tak for hjælpen.
Kongen gemte mønten og fortalte ofte byens borgere, at det var de første penge,
han nogen sinde selv havde tjent. Den ældre herre skulle havde været Gamle
Thomsen, der var opvarter på Over Stalden (se senere) og godt oppe i
halvfjerdserne – og sikkert også beruset.
Når kongen gik tur i den dengang cirka 83
hektar store Charlottenlund Skov (inkl. park, slotsplads og Forstbotanisk
Have), kunne han nyde den nu udtørrede å, der endte i en lille sø, der lå lidt
vest for det sted, hvor Cafe Jorden Rundt ligger i dag, og hvor sporvognslinje
14 fra 1938 til 1972 havde sit venteværelse og sin vendesløjfe. Man kan stadig
se fordybningen i jorden, og på gamle kort kan man se den lille ø, der lå midt
i søen. Her kunne de kongelige opfostre deres kaniner bag et lille hegn og i
fred for områdets ræve, så de kongelige var sikret mad på bordet.
Af andre seværdigheder, den kongelige
familie kunne nyde i Charlottenlund Slot, var det gule bindingsværkshus, der
ligger idyllisk ved den lille dam. Her var vaskehus og Den kongelige Livgarde
benyttede huset når de skulle passe på den kongelige familie. Skoven rummer
også et lille og stadig eksisterende ishus fra 1890’erne med udskårne
isbjørnefigurer over indgangen. Her blev vinterens isblokke opbevaret til
nedkøling af fødevarer i sommerhalvåret.

Udsnit af kort over
Charlottenlund Skov med åen, søen og kaninøen.
Efter Kong Frederik VIII’s død i 1912,
fortsatte dronning Louise Josephine Eugenie (31. oktober 1851 – 20. marts 1926)
og børnene med at benytte slottet indtil hun også døde. Slottet stod herefter
ubenyttet i cirka 10 år og benyttedes fra 1935 til 2017 af Danmarks Fiskeri- og
Havundersøgelser. I dag anvendes Slottet som kontorhotel og kultur-,
konference- og eventcenter.

Portræt af Kong Frederik VIII fra 1909
(malet af Otto Bache).
Overleveringer vil vide at Kong Frederik VIII
indtil sin død – som senere beskrevet – havde sin diskrete gang i Villa Mowgli,
der gennem parken og skoven kun lå en kort spadseretur fra slottet.
Også på Hvidøre residerede den kongelige
familie, idet Kong Christian IXs to døtre - den
engelske dronning Alexandre (1. december 1844 – 20. november 1925) og den
russiske enkekejserinde Dagmar (26. november 1847 – 13. oktober 1928) - i
februar 1906 købte stedet af ”legationsraadinde
W. Bruun” som et fælles sommerhus i deres gamle fædreland. Døtrene
benyttede oberst og intendant ved civillisten Christian Holger Rørdam (12.
november 1846 – 9. september 1916) som stråmand – eller underforhandler som der
stod i aviserne - for at få presset prisen lidt ned. Prisen endte på 280.000
kr., der ifølge aviserne blev betalt kontant.
Bag ”legationsraadinde
Bruun” gemte sig Wilhelmine Charlotte Marie Bruun, født Drieshaus
(15. juni 1837 – 17. januar 1922), der var enke efter legationsråd
(ambassaderåd) Frederik Christian Bruun (11. maj 1827 – 26. januar 1887). I
1928 købte sælgers eneste barn, Asta Maria Andrea Scheel, født Bruun (17. juli
1868 - 13. december 1944) barndomshjemmet tilbage, for så i 1937 at sælge
Hvidøre til Novo Nordisk A/S, der stadig ejer stedet. Asta Maria Andrea Scheel
blev grevinde og var en dengang kendt, excentrisk og hovedrig skuespillerinde,
der benyttede kunstnernavnet Musse Scheel.
På den anden side af Strandvejen ligger den
lille tilhørende og trekantede Hvidøre Strandpark med sin pergola og græsplæne.
Dengang - og inden Kystvejen blev etableret - lå parken direkte ud til Øresund.
I dag er der offentlig adgang, men dengang blev der etableret en tunnel mellem
Hvidøre og strandparken for at de to dronninger kunne gå uhindret mellem de to
lokationer. Officielt fordi de to damer var bange for at blive kørt ned af de
sporvogne der dengang kørte på Strandvejen.
Det nuværende Hvidøre blev opført af
Frederik Christian Bruun i 1872, men oprindelig var Hvidøre som nævnt en
kongsgård, der lå lidt længere inde i landet ved Christiansholm. Det var her
Kong Christian II formentlig i en periode indlogerede sin elskerinde Dyveke Sigbrittsdatter (1490 – 21. september 1517) og hendes mor Sibrit Villoms (død omkring
1532), der fungerede som kongens ven og rådgiver til stor fortrydelse for
adlen.
Omkring 1898 var Ordrup og Charlottenlund en
god blanding af landsby, forlystelsessted, sommerland og handelsområde. Selv
filmproduktion kunne området mønstre. Området var Danmarks svar på Hollywood i
starten af 1900-tallet, og har bl.a. huset Saga Studio, Palladiums atelier,
Dania Biofilms atelier og Kinografens atelier. Mange
kendte film er produceret i området og i en årrække boede f.eks. Morten Korch
(17. januar 1876 – 8. oktober 1954) i området – bl.a. på Ejgårdsvej 13A fra
1936 til 1954.
Området var under store forandringer og
datidens miljøprotester havde allerede lydt, da Charlottenlund Kystbatteri blev
anlagt i 1886-88. Fiskerne påstod i fuld alvor, at kanonerne ville jage fiskene
ud af Øresund. Batteriet blev i 1910-12 opgraderet til Charlottenlund Fort, der
blev anlagt som led i Københavns Befæstning, der også omfattede ”Nordre
Oversvømmelse”, hvor vand fra Furesøen og Lyngby Sø skulle ledes ind i området
gennem blandt andet Ermelunden og Ordrup Mose og helt
frem mod kysten ved Christiansholms Batteri. Befæstningen bestod af en lang
række forter, batterier, betonstillinger, kasematter, bunkere, magasiner,
voldanlæg, dæmninger og andre anlæg, og selv om meget blev nedlagt omkring
1920, kan man stadig flere steder i kommunen se tydelige spor af det gamle
forsvarsværk, som heldigvis aldrig kom i brug i sin korte levetid. Formålet med
hele anlægget var at skabe en oversvømmelseslinje, der skulle gøre terrænet
ufarbart og dermed hindre en angribende hær fra Preussen i at føre tropper, materiel
og artilleri frem mod København, hvor fjenden samtidig kunne beskydes fra de
danske stillinger.
Den 29. juli 1888 blev det første løb kørt
på Ordrup Cykelbane, der oprindelig var anlagt som grusbane uden hævede sving.
Senere kom hældningerne, og banen fik tilnavnet Velodromen.
Banen blev anlagt på Eigaards jorde af Foreningen af Bicycleridende Gentlemen i 1887 og havde et areal på 2½
tdr. land. Skøde fra rådmand Frederik Christoffer Bülow til
Bestyrelsen for Danske Bicycle Club blev dog først underskrevet den 28. august
1888 og lyst den 13. september samme år. En aftale var vel igen en aftale.

Ordrup cykelbane som den så
ud i 1896.
Den 24. maj 1891 afholdt Det Danske
Travselskab sit første løb på Charlottenlund Travbane, der var blevet anlagt på
Skjoldgaards marker.
I 1897 begyndte droscherne i området at
benytte taxameter, og en drosche blev herefter kaldt en taxa. De var dog først
motordrevne fra 1902.
Anthon Berg begyndte at producere det kendte
marcipanbrød i 1898. Det var en eksklusiv håndlavet kvalitetskonfekt, der kun
kunne købes i byens fineste forretninger.
I 1898 begyndte gymnastiklærer Holger Louis
Nielsen (18. december 1866 – 26. januar 1955) på Ordrup Gymnasium (Ordrup
Latin- og Realskole) at udforme det spil, der senere blev til håndbold. Hans
idé opstod, da skolegården var for lille til fodbold, og det var blevet
eleverne forbudt at sparke til en bold. Han blev dog mere kendt for sit arbejde
med genoplivning af druknede – den såkaldte Holger Nielsen-Metoden - som han opfandt i 1932 efter
at hans ældste datter var ved at omkomme. Metoden opnåede stor udbredelse og anerkendelse verden over, og blev
bl.a. benyttet af USA's samlede forsvar, Røde Kors, spejderbevægelsen, skoler
og andre institutioner som den foretrukne genoplivningsmetode.
I 1902 dannedes A/S Tuborg-Klampenborg
Elektriske Sporveje, der i 1903 satte den første elektriske sporvogn i drift
fra København til Charlottenlund og fra 1908 helt til Ordrup. Selskabet var et
datterselskab af A/S De Kjøbenhavnske Sporveje, hvis
aktiemajoritet var ejet af en tysk sammenslutning. I 1915 ønskede Københavns
Kommune at erhverve tyskernes aktier, men en halv time inden de københavnske
repræsentanter mødte op på Paladshotellet, hvor den tyske repræsentant befandt
sig, havde Gentofte Kommune købt aktierne af ham. Navnet blev ved handlen
ændret til Nordsjællands Elektricitets- og Sporvejs-Aktieselskab - NESA. En
handel som kommunen senere har haft stor glæde af, da aktierne igen blev solgt.
I 1903 oprettes en Magasin du Nord på
Jægersborg Allé af Wessel og Vett, og i 1906 opretter
A.C. Illum en forretning på Strandvej 96.
Mange andre forretninger så også dagens lys
omkring århundredeskiftet. Blandt flere kan nævnes Ordrup Apotek på
Lindegårdsvej fra 1895, Gotfred Strømanns stadig
eksisterende forretning for Centralvarmeanlæg og Sanitære Installationer på Fredensvej i 1899, skomagermester Rasmus Olsen på Ordrupvej
100 i 1900, Jægersborg Allés Mejeri cirka 1895, en isenkræmmer i krydset mellem
Lindegårdsvej og Jægersborg Allé i 1902, en sadelmager på Lindegårdsvej 12 i
1905, der oprindeligt (fra 1865) lå på Ordrupvej 84, en parfumeforretning
på Jægersborg Allé 28 i 1906 og endelig en boghandler på Jægersborg Allé 6 (ved
Fredensvej) i 1914.
I 1898, da opførelsen af Villa Mowgli blev
påbegyndt, var følgende erhverv repræsenteret i byens vejviser: Glarmester,
graver, restauratør, murer- og tømrermester, høker, ingeniør, jordemoder,
karetmager, købmand, detailhandler, sagfører, skrædder, slagtermester,
smedemester, smørhandler, sygeplejer, tandlæge, tandtekniker, træskomager,
tøffelmager, tømmerhandler og apotek.

Jægersborg Allé ved
jernbaneoverskæringen omkring 1898.
Den daglige handel foregik ligesom den gør i
syden i dag. De handlende havde nemlig to priser på deres varer - en pris for
de lokale beboere og en for sommergæsterne. Vejene var ikke brolagte, og det
fortælles, at udstillingsvarerne i butikkerne var belagt med støv, når det
blæste udenfor.
Forretningerne havde længe åben dengang, og
Ordrup Handelsforenings første handling i 1909 var at opfordre medlemmerne til
at lukke kl. 22 om lørdagen. En flaske whisky kostede da knap 2 kroner, medens
et pund kaffe kostede cirka 1 krone.

Jægersborg Allé ved
Lindegårdsvej efter århundredeskiftet (1937).
Også de offentlige institutioner var godt
med i 1898. Gentofte-Ordrup kommune havde fælles sogneråd, der fra 20. januar
1891 var blevet opdelt i to sogne - Gentofte og Ordrup Sogne. Ordrup og
Charlottenlund havde knap 4.000 indbyggere i 1898, hvor kun mændene indtil
kommunevalget fredag den 12. marts 1909 havde stemmeret.
I slutningen af 1800-tallet havde Charlottenlund
Postkontor, hvor Villa Mowgli hørte under, tre ”brevbringere”,
der både havde tid til at passe arbejdet med at uddele post og tid til at få en
sludder med beboerne. Madam Nielsen, der var brevbringer i Ordrup, har sikkert
fulgt godt med i livet i Villa Mowgli. Og tænk sig, i 1876 blev etableret to
gange daglig ombæring indenfor distriktet.
Skatteklager over hovedligningen kunne i
1898 indgives inden udgangen af januar måned til sognerådet, og for så vidt man
var utilfreds med sognerådets afgørelse, inden udgangen af februar måned til
amtsrådet. Skattelisterne for Ordrup kirkesogn blev
fremlagt for byens borgere på sognekontoret i Jægersborg, i Hellerup
Kommuneskole og hos skatteopkræver C. Nielsen på Kapelvej i Ordrup.
Om vinteren blev der gravet og hugget is i Hyldegaardsmosen i stykker á 8" x 3 alen. De blev
herefter gravet ned og solgt om sommeren for 25 øre stykket. Renovationen i
Ordrup området blev dengang varetaget af gårdejer A.C. Florentzen
fra Holmegaard.
I 1904 begyndte A/S Tuborg-Klampenborg
Elektriske Sporveje at levere strøm til Hellerups borgere - først som jævnstrøm
og senere som 1.000 volts vekselstrøm - og i de følgende år fik mange ejendomme
i Ordrup og Charlottenlund indlagt strøm. Samme år blev byens første vandværk
opført på Bregnegårdsvej, medens Strandvejen Gasværk allerede var blevet
indviet i 1893.
Byens første bank var Ordrup-Charlottenlund
Bank, der blev stiftet 12. oktober 1905. Som
det kan ses af Avertissementet fra banken nedenfor var det ikke de lange
åbningstider, der plagede banken. Kontortid fra 10 til 12 og fra 19 til 20
måtte vel være rigeligt. En indlånsrente på 3,5%, 4,0% og 4,5% var så til
gengæld en spids bedre end den, man kan opnå i dag. A/S Ordrup-Charlottenlund
Bank blev stiftet med en grundlæggende kapital på 50.000 kr. og blev senere til
Danske Bank via Handelsbanken.
Den 5. juni 1910 blev Væddeløbsbanen i
Ordrup Mose, den senere Klampenborg Galopbane, indviet. Det var Foreningen til
den ædle Hesteavls Fremme, der allerede i 1903 var begyndt at planlægge banen
som erstatning for den hidtil benyttede bane ved Eremitagen. Banen blev anlagt
midt i det dalstrøg, der var udpeget som en del af den nordre oversvømmelse,
som beskrevet ovenfor. Af hensyn til banen måtte hæren opgive en af
oversvømmelsens vigtige dæmninger, hvilket svækkede det oprindeligt planlagte
anlæg, og dæmningen ved Klampenborgvej i S‑svinget syd for Posemandens
Hus kom dermed til at spille en endnu vigtigere rolle i tilfælde af en
oversvømmelse. Posemandens Hus er i øvrigt en folkelig forvanskning af navnet Poschmann, som var navnet på en skovløber, der engang boede
i huset. Hans fulde navn var Christian Nicolai Bertel Poschmann
(21. december 1822 – 2. juni 1899).
Den 1. maj 1913 blev porten mellem
Strandvejen og Jægersborg Allé åbnet for almindelig færdsel, og det blev nu
muligt at køre ind i området uden at skulle betale. Omkring år 1900 kostede det
32 øre for en tur/retur for en almindelig hestevogn at passere en af bommene i
området.
Ligesom vi i dag har skattesnydere, forsøgte
man også dengang at snyde sig forbi bommene. Det fortælles, at selv direktør
Emil Vett (7. november 1843 – 18. februar 1911) fra
Wessel & Vett (Magasin du Nord) blev taget i at
snyde.
Jægersborg Allé var allerede blevet anlagt i
1706 på befaling af Kong Frederik IV (11. oktober 1671 – 12. oktober 1730), der
ønskede sig en prægtig og fornem vej mellem Jægersborg Slot og lystslottet
Gyldenlund (det senere Charlottenlund Slot). Den del af den nuværende allé, der
gik fra Jægersborg Slot mod vest ud til grænsen af slottets jorder ved den
gamle hovedvej mellem Gentofte og Lyngby (den senere Kongevej), blev kaldt
Blæsenborg Allé. Midt på denne allé lå en runddel som stadig er synlig ud for gartneriet.
Runddelen tjente som samlingsplads for jagtselskaberne.
Det ambitiøse allé-projekt var en integreret
del af den barokke havekunst i 1700-tallet og tjente som symbol på den
enevældige konges magt i landskabet. Samtidig fungerede alléerne som centrale
færdselsårer i et omfattende system af kongelige jagtveje i området. Dette
netværk bestod desuden af Ordrup Jagtvej, der forbandt Charlottenlund Slot med
Kongeporten i Jægersborg Dyrehave, medens Ermelundsvej var den første af de
kongelige lyst- og jagtveje, der gik fra Jægersborg til Fortunen. Dyrehavevej
(den nuværende Vilvordevej) forbandt alléen ved den
nuværende Femvejen med Dyrehaven. Dele af de nuværende Sølystvej og Fabritius
Allé udgjorde en forlængelse af den oprindelige Ordrup Jagtvej og førte også
til Jægersborg Dyrehave.
Jægersborg Dyrehave hed oprindelig Boveskov
(Bøgeskov) og var en del af landsbyen Ibstrup. Da
kongen i 1671 udvidede dyrehaven, ændrede han navnet Ibstrup
til Jægersborg, og dermed opstod navnet Jægersborg Dyrehave.
Inden der i 1829 - mod betaling til
vedligeholdelse - blev åbnet for offentlig færdsel på ”Kongens Vej”,
måtte de lokale bønder kun benytte fægaderne,
markveje og alfarvej.
Fægaderne blev brugt til at
drive kvæg ud på markerne, men kunne også benyttes til almindelig færdsel. At
en vej var alfarvej, betød at alle havde ret til at benytte vejen, i modsætning
til kongelige eller private veje. Som eksempel på en alfarvej i området, kan nævnes
Svinget, som ledte rundt om slotsområdet på sydsiden af Jægersborg Slot.
Svinget lever videre som en del af Meutegårdsvej, hvor ”meute” var betegnelsen
for en gruppe jagthunde. Og det var jo også netop der, at de kongelige havde
deres jagthunde opbevaret.

Bomhuset ved indkørslen til Charlottenlund Skov
(1920).
På ovenstående billede ses bomhuset ved
indkørslen til Charlottenlund Skov fra Strandvejen. På gavlen hænger en plakat
med annoncering af Dagmar Hansens (12. november 1871 – 13. april 1959) optræden
i Traktørstedet Over Stalden. Bomhuset blev nedrevet i 1935, og minderne lever
videre i den nærliggende cafe af samme navn, der dog ikke, som mange tror, er
det originale bomhus.

Reklame fra A/S
Ordrup-Charlottenlund Bank fra 1906.
Som udflugts- og forlystelsessted er Ordrup
og Charlottenlund Skov ældre end både Dyrehaven og Dyrehavsbakken, og den
nederste del af den nuværende Jægersborg Allé har fra gammel tid tilhørt
restaurationslivet.
Kirsten Piils Kilde, der senere udviklede
sig til Dyrehavsbakken, er dog endnu ældre som udflugtsmål. Ifølge legenden var
Kirsten Piil en ung og uskyldig pige, der i 1583 blev fortabt i Boveskov. Det
vides ikke hvad hun lavede der, men hun skulle efter sigende havde været en
from kvinde. Medens hun flakkede rundt i skoven, sprang en kilde pludselig frem
fra en skrænt og viste hende vej mod København. Denne kilde blev senere kendt
som Kirsten Piils Kilde, og blev hurtigt berømt for sit helsebringende vand som
folk kunne drikke for at søge helbredelse for deres lidelser.
I 1663 etablerede dronningens kammertjener -
og senere rigsbaron - Jacob ”von” Petersen (31. september 1622 – 26. oktober
1704) det første egentlige traktørsted i Charlottenlund - eller i
Freudendahl, som stedet hed dengang. Jacob ”von” Petersen fik ikke blot
tilladelse til, men også en vidtstrakt eneret på at drive beværtning med
udskænkning af øl og vin. Stedet skulle være åbent for alle og der skule også
etableres ”allehaande Leg og Spil til
Tidsfordriv, saasom Pirkentafel,
Klodsbane, Paillemaille og andet deslige, saa og alene og ingen anden udi København uden ved samme
Værtshus at maa lade holde saa
mange Hyre karosser til at leje som han lyster, saavelsom
Spiljagter, Baade og allehaande Slags smaa Fartøj til at spadsere med paa
Vandet, med alt andet, som hos et Værts- og Lysthus tilhøre kan” som det
hed i overdragelsesbrevet fra Kong Frederik III.
På nudansk ville man nok skrive "alle
slags lege og spil til underholdning, såsom brætspillet pirkentafel
(en slags backgammon), kuglebane, boldspillet paillemaille (en slags kroket) og andre lignende
forlystelser, samt retten til - som den eneste i hele København - at have lige
så mange udlejningskarosser (hestetrukne kareter) til rådighed som han ønsker
fra det pågældende værtshus, såvel som spadsereture med jagtvogne, både og alle
slags små fartøjer til en tur på vandet, inklusive alt andet, der typisk hører
til et værtshus eller et lysthus".
Kongens generalkvartermester Henrik Ruse (9.
april 1624 – 22. februar 1679) blev taget ind som medejer, og de to
bortforpagtede driften til lokale folk.
Området fik senere navnet Gyldenlund - først
som et folkeligt navn, siden officielt - efter at Ulrik
Frederik Gyldenløve (20. juli 1638 – 17. april 1704), den 1. maj og 28.
juli 1671 overtog området, idet Jacob ”von” Petersen nogle år forinden måtte
forlade landet på grund af en konflikt med hoffet, og idet Henrik Ruse var
taget til Rendsborg. General og statsmand Ulrik Frederik Gyldenløve var uægte
søn af Kong Frederik III og den holstenske adelsdame Margrethe Pape.
Det er tvivlsomt om ovennævnte traktørsted
nogensinde fik etableret al den underholdning som er beskrevet i kongens
tilladelse.

Titelbladet til specialværket
om Gyldenlund - som i dag kun kendes i tre
eksemplarer – samt
eksempel på en optegnelse fra Viridarium Danicum.
At området var naturskønt, ses også af, at
den første kongelige botanicus, Peder Lauridsen
Kylling (cirka 1640 – 18. oktober 1696), i 1684 kunne udgive et specialværk om
floraen i Gyldenlund, hvor han opregnede 404 forskellige plantearter, som han
havde iagttaget og indsamlet i området. Peder Lauridsen Kylling var også manden
bag Viridarium Danicum
(ofte kaldet Catalogus plantarum),
der udkom i 1688, og som var en fortegnelse over samtlige kendte danske planter
med deres voksesteder. Værket dannede senere grundlag for det botaniske
storværk Flora Danica.
Allerede omkring 1770 var Danmarks
formentlig første arboret blevet anlagt ved Bernstorff Slot, hvor man begyndte
at indsamle og afprøve udenlandske træarter i tilknytning til slotsparken. I
1799 lod kong Christian VII på kongelig befaling anlægge endnu et forstbotanisk
arboret i området omkring den nuværende Skovriderkro langs Strandvejen. Her
samlede og plantede man udenlandske træer for at teste deres egnethed til det
danske klima og til brug i både skovbrug og prydhaver. Arboretet ved
Skovriderkroen regnes derfor som et af de allerførste forstbotaniske arboreter
i Danmark. Enkelte af de gamle, særprægede træer ved skovkanten ved
Skovriderkroen anses stadig som levende rester af denne samling.
I 1830’erne blev forsøgsarbejdet samlet i en
ny forstbotanisk have længere inde i Charlottenlund Skov. Med anlæggelsen af
den nuværende Forstbotanisk Have efter en kongelig resolution af den 15. maj
1838 ophørte arboretet ved Skovriderkroen gradvist som selvstændigt
forsøgsanlæg, efterhånden som den nye have overtog rollen med undervisning og
forskning. I flere år op til og i 1924 måtte haven afstå et større område til
Statsbanerne i forbindelse med anlæggelsen af først en godslæsseplads og senere
udbygningen af kystbanen. Mange gamle træer måtte fældes, og dette førte i 1936
til et nyt arboret i Folehave Skov lidt syd for Hørsholm.
På plænen vest for Charlottenlund Slot står
to meget gamle lærketræer, som formodes at være plantet i midten af 1700‑tallet
i forbindelse med de kongelige nåletræsforsøg under Frederik V og hans
forstmænd. De regnes for at være blandt Danmarks ældste eksempler på europæisk
lærk og har efter alt at dømme dannet grundstamme for en stor del af de
lærketræer, der siden 1800‑tallet er blevet udbredt i danske skove og
parker.
De botaniske forsøgshaver og de mange
usædvanlige træer var dermed med til at gøre området endnu mere attraktivt -
ikke kun for forskere og forstfolk, men også for helt almindelige københavnere
på udflugt.
At de mange besøgende gjorde regler
nødvendige, viser nedenstående bekendtgørelse fra Kong Frederik VI, der
samtidig benyttede lejligheden til at støtte sognets fattige:
”Hans Majestæt Kongen har under 21de Juni 1820 allernaadigst resolveret
saaledes:
Vi ville allernaadigst
have tilladt, at alle og enhver, hvad enten de have Nøgle til Charlottenlunds
Skov, eller ikke, maa kjøre
(dog ikke med Arbeids- eller Bønder‑Vogne med
Læs) og ride igjennem bemeldte
Skov under følgende Bestemmelser, nemlig: at den saakaldte
Vogn‑Plads i Skoven og den ved Skovløberhuset ved Blindeposten værende
Plads, samt Runddelen paa Stranden ved Alleporten anvises til Mødested for Heste og Vogne, og at,
imod 1 Rbd. Sølv i Mønt til Sognets Fattige, maa enhver holde med Hest og Vogn paa
samme Plads i 2 Dage, uden der nævnte, eller at kjøre
og ride anderledes i Indhegningen, end ad den anlagte Kjørevei.
Og ville Vi allernaadigst
have fastsat: at enhver, som gaaer igjennem Skov‑Indhegningen, for sin eller andres
regning skal afholde sig fra at røre, eller øve nogen som helst Fortræd paa Træer, Grene, Indhegning med Plankeværk, Stakit,
Grøfter, og ej heller indrive Kreaturer over
Rækværker og Gjærder eller indlade sig paa nogen som helst Maade at
krænke eller fornærme de Forpagtere, som ere ansatte
til at rydde eller holde Skoven i god Stand; under 1 Rbd.
Sølv i Mønt til Sognets Fattige for hver Person, som herved findes Skyldig.
Hvilken allerhøieste
Resolution herved bekjendtgjøres til fornøden Efterretning.
Rentekammeret, den 30 Juni
1820”.
Senere kom forlystelsesstederne Over
Stalden, Ved Stalden, Jernbanepavillonen, Palmehaven, Gyldenlund og alle de
andre traktørsteder, der hvert år sommeren igennem var tilholdssted for mange
glade københavnere.
At området var populært, høres også i
Holbergs Maskerade, hvor en af Henriks replikker lyder: "At rejse til
Gyldenlund eller Friederichsdal om sommeren, er en megen nobel tidsfordriv".
Allerede inden Udskiftningen var bønderne i
Ordrup begyndt at udleje sommerboliger til københavnerne, og i løbet af
1700-tallet opstod hist og her mindre lyststeder og beskedne borgerhuse, der
dog væsentligt adskilte sig fra de fornemme landsteder langs Strandvejen, og de
mange restaurationer der dukkede op på Jægersborg Allé.

Over Stalden - Th. Fugmann's Concert-Restaurant - cirka
1900.
Over Stalden blev opført på Jægersborg Allé
i 1823 som en stald til opstaldning af skovgæsternes heste. Fra 1828 var der
servering fra stalden, og i 1832 blev bygget en bygning med stald i nederste
etage og restaurant i tagetagen med tilhørende altan - heraf navnet Over
Stalden. Over Stalden er nedbrændt og genopført flere gange. Senest nedbrændte
stedet midt under en teaterforestilling den 15. juni 1898, hvor Kristeligt
Dagblad herefter håbede at ”Kronprinsen på Charlottenlund Slot vilde
interessere sig for Etablissementets Nedlæggelse”. Det navnkundige stedet blev
dog genopført med kronprinsens velsignelse, men blev i 1880, da
kavalerbygningerne ved Charlottenlund Slot blev opført, flyttet over på
modsatte side af vejen. Over Stalden blev nedrevet i 1936.
Ved Stalden blev opført efter den anden
slesvigske krig i 1864 som et etablissement, der skulle virke som konkurrent
til Over Stalden. Da restaurationen her lå ved siden af stalden fik stedet
navnet Ved Stalden. Den nuværende bygning er opført efter 2. verdenskrig, men
er blot seneste version af bygninger på dette sted. De tidligere nedbrændte en
efter en. Vi holdt vores bryllup i restauranten i 1996, men nogle år efter
lukkede stedet, lå ubenyttet i en periode og er nu en børnehave.

Traktørstedet Ved
Stalden på Jægersborg Allé (1920).
Lige rundt om hjørnet på Strandvejen ud for
Charlottenlund Skov lå endnu et traktørsted opkaldt efter lyststedet Constantia
– Restaurant Constantia. Constantia nævnes første gang i 1753, da grosserer
Niels Aagesen fik overladt en grund ved Gyldenlund, hvor han opfører en gård
han kaldte Constantia. I 1761 fik den næste ejer, Lars Sørensen Suhm,
privilegium på at drive traktørsted, og i de næste 50 år var det et yndet sted
for glade rejsende mellem København og Dyrehavsbakken.
Efterfølgende blev Constantia igen et
lyststed, men blev igen et traktørsted efter at kammerråd Wilhelm Wilhelmsen
købte stedet i 1879. Han drev traktørstedet i 37 år og solgte i 1916 stedet til
nedrivning og udparcellering af det 6 tdr. land store område.

Traktørstedet
Constantia som det så ud i cirka 1890.
Traktørstedet Gyldenlund lå længere oppe af
Jægersborg Allé lige før jernbaneoverskæringen på højre side. Bygningen blev opført
midt i 1860’erne som et stråtækt bindingsværkshus med borde, stole og bænke, så
der også kunne være udendørsservering. Stedet blev nedrevet i 1919 i
forbindelse med bygningen af viadukten over Jægersborg Allé, og hed oprindelig
Alexandrapavillonen.

Traktørstedet
Gyldenlund på tiden da Villa Mowgli blev opført.
Restaurant Jernbanepavillonen lå skråt
overfor Gyldenlund på den anden side af banen lige ved stationen. Restauranten
blev opført i slutningen af 1870’erne få år efter at Klampenborgbanen og
Charlottenlund Station blev indviet, og blev hurtigt et yndet udflugtsmål. I
mange år var der restaurant, aftenunderholdning, palmehave, orkester, foredrag
og bal. Da jernbaneoverskæringen i 1923 blev erstattet med den nuværende bro,
måtte bygningen leve mere i det skjulte. Det blev derfor nødvendigt at bygge
til og op, så det blev muligt at komme ind i bygningen fra det løftede gadeplan
på Jægersborg Allé. I starten af 1960’erne ophørte restauranten og der har
sidenhen været bl.a. bodega, biludlejning, møbelforretning, gardingrosist,
fitnesscenter, bank og vinhandel i den stadig eksisterende bygning. I perioden
med Charlottenlund Bodega i 1960-70’erne skulle herrerne være iført slips og
jakke for at få adgang, og de kunne parkere deres store amerikanerbiler og
sportsvogne lige udenfor.

Restaurant
Jernbanepavillonen som den så ud i 1918.
På den anden side af Jægersborg Allé lå fra
starten af 1900-tallet til midten af 1950’erne Charlottenlund Palmehave eller
bare Palmehaven. Bygningen var oprindelig en privat villa tilhørende den
velhavende hofblomsterhandler og lotterikontorejer Georg Wilhelm Knipschildt (9. maj 1830 – 1. marts 1895), men efter hans
død blev stedet af tre Charlottenlund borgere i 1899 omdannet til et
førsteklasses etablissement. Senere kom der også hotel med 12 værelser og en
teatersal med plads til 450 gæster, hvilket dengang var den største teatersal i
københavnsområdet. I 1966 blev bygningen revet ned og der blev opført et
supermarked som stadig ligger der.
Charlottenlund
Palmehaven set fra Jægersborg Allé (cirka 1910).
Det har sikkert gået vildt for sig i de gode
gamle dage, og adskillige grundejere nord for Charlottenlund Skov har da også
stadig servitutter, der forbyder oprettelse eller drift af f.eks. utugtshuse,
beværtnings‑ eller forlystelsesetablissementer eller anden virksomhed af
tvivlsom eller forargelig karakter samt offentlige danse‑ eller
musikpavilloner. Servitutterne stammer fra den tid, hvor Villa Mowgli blev
bygget, og hvor de forskellige varietéer havde deres storhedstid. Syngepigerne,
der var tilknyttet disse steder, øvede en særlig tiltrækning på skovens gæster,
og de opførte sig ikke altid lige dydigt, hvilket det pæne borgerskab
øjensynligt har haft i tankerne, da villaservitutterne blev skrevet.
På samme tid havde Dagmar Hansen stor succes
med viser som Oh Dagmar og Jeg gør det ikke med den nye kjole på. Hendes
charme, skønhed og tiltrækkende former lokkede så mange tilskuere til området,
at det blev nødvendigt for Statsbanerne og Sporvejene at køre ekstrature flere
gange om dagen. Dagmar Hansen optrådte i området i mere end tyve somre, hvorfor
perioden kaldes for Charlottenlunds Dagmarepoke. Det var også dengang der var
noget der hed Charlottenlund-Revyen, der i en årrække spillede på Charlottenlund
Teatret Over Stalden.
Medens publikum glædede sig over den glade
stemning og de lystige sange, kunne de på Over Stalden nyde en rejemad med
liggende rejer for 25 øre eller for 35 øre flotte sig med en rejemad, hvor
rejerne var placeret stående på brødet. Champagne var dyr og kostede dengang
100 kroner. Ikke noget under, at det var kromændene, der forestod datidens
udlån.

Den oprindelige
ejendom ved Blindeporten.
Blindeporthuset var gennem mere end hundrede
år også et af Charlottenlund Skovs markante forlystelsessteder. Huset lå på
Ordrup Jagtvej ved Blindeporten, der førte ind til Charlottenlund Skov.
Blindeporthuset var et skovløberhus med beværtningsprivilegium og med en
staldbygning på den modsatte side af vejen. Huset blev senere kendt som
Grøndalshuset, opkaldt efter skovløber Wilhelm Friderich
Gründahl (1787‑1839), der fra 1813 var
skovløber og sammen med sin familie både stod for skovtjenesten og
traktørdriften.
Det gamle skovløber‑ og traktørhus
blev afløst af et nyt stuehus, og de sidste rester af den ældre bebyggelse
forsvandt i 1915. Det nuværende hus på Ordrup Jagtvej 112, over for travbanen,
er resultatet af et byggeri fra 1906–1907, hvor der samtidig – som det ses af
de gamle tegninger og dokumenter på ejendommen - blev projekteret og godkendt
danseestrade, buffetbygning, pavilloner, lysthuse og moderne retirader
(toiletter) omkring det nye stuehus.
Længe før ombygningen havde
Blindeporthuset/Grøndalshuset og Grøndalssletten udviklet sig til et folkeligt
forlystelsessted. I samtiden omtales det, hvordan der “fra umindelige tider”
blev danset hele sommeren – især den såkaldte 5‑øres‑dans - en
billig offentlig dans, hvor man betalte få øre pr. dans eller for at få adgang
til dansegulvet. Stedet beskrives som et myldrende folkeliv med gynger,
skydeapparater og små lysthuse, hvor bønderkarle, fiskere og andet lokalt
publikum samledes om dans og musik, og hvor politiet ikke sjældent måtte
anbringe slagsbrødre og lommetyve i den lille arrest på Charlottenlund Station,
der var blevet oprettet i forbindelse med den oprindelige stationens udvidelse
i 1876.
Selv i Randers Amtsavis kunne man den 23.
juni 1887 læse at der ved Grøndalshuset kan være musik og dans, hvilket
tiltrækker mange unge mennesker, men at de omboende til tider beklager sig over
støj og uro, når fornøjelserne varer til langt ud på aftenen. Desuden
fremhæves, at skoven i det hele taget er et samlingspunkt for søndagsudflugter,
hvor både familier og ungdom mødes til spadsereture, kaffe og selskabelighed.
Grøndalshuset har også sat sig spor i
litteraturhistorien som ramme for Johan Ludvig Heibergs (14. december 1791 -
25. august 1860) vaudeville De Uadskillelige, der flere gange blev opført på
stedet.
Selve Grøndalsletten var også et festområde,
og den 22. juli 1876 kunne man i Den til Forsendelse med de Kongelige
Brevposter privilegerede Berlingske Politiske og Avertissementstidende læse om
balladen på og omkring Grøndalssletten. Avisen skrev således, at Ordrup Jagtvej
mellem Charlottenlund og Dyrehaven var blevet et berygtet samlingssted for
natteliv, sangerinder og andre “amusements”, og at
politiet derfor havde rettet en særlig opmærksomhed mod området.
Den pågældende nat havde en gruppe unge
mænd, heriblandt en instrumentmagers søn og en metalarbejder, efter en koncert
i en sangerpavillon i Charlottenlund Skov lavet uro på vejen hjem. De havde
blandt andet forsøgt at stjæle en brandstige fra et landsted og brugt den i
forbindelse med optøjerne. Avisen bemærkede, at der tidligere havde været flere
lignende episoder begået af de samme drenge netop ved Grøndalssletten, hvor
deres “mindre Excesser” (uroligheder) gentagne gange havde givet politiet
anledning til indgriben.
I retsreferaterne fremgår det, at den
hovedtiltalte blev fundet skyldig både i uroen omkring brandstigen og i de
overtrædelser, han sammen med de andre drenge havde begået forskellige steder i
Charlottenlund Skov, herunder ved Grøndalssletten. Straffen lød på en bøde på
30 kroner, og hvis han ikke kunne betale, skulle han afsone 30 dage i fængsel
på vand og brød, med mulighed for yderligere 30 dages straffearbejde, hvis
bøden stadig ikke blev erlagt.

Grøndalshuset med
dansepavillonen til venstre i forgrunden fra cirka 1910.
Med tiden kom dansen også i miskredit,
ligesom de gamle sangtelte på Grøndalssletten, og da den nye bygning stod klar,
blev spørgsmålet taget op politisk. Naboer og villaejere i området klagede over
støj og uro, og i 1915–1916 drøftede Gentofte Sogneråd, om man skulle stoppe
den offentlige dans. I 1916 gav sognerådet grønt lys til helt at standse denne
form for underholdning – et mindretals forslag om blot at lade dansen ophøre
ved solnedgang blev nedstemt.
Landbrugsministeriet udformede derefter
forpagtningsvilkårene sådan, at offentlig dans ikke længere var tilladt efter
1. april 1917.
Grøndalshuset fortsatte dog som traktørsted,
og aviserne noterede, at den gamle dans, som bedsteforældrene kendte den, nu
var forbi, men at et orkester stadig underholdt gæsterne, og at musik, sang og
latter endnu kunne høres ud over Grøndalssletten.
I dag rummer Grøndalshuset en integreret
daginstitution, og stedets fortid som skovløberhus, traktørsted, dansepavillon
og litterær lokalitet lever forhåbentlig videre i næste generation på stedet.
Ved en anden af de i alt tre oprindelige
indgange til Charlottenlund Skov ved Jægersborg Allé lå også et skovløberhus.
Dette hus blev også benyttet som udskænkningssted. Omkring 1890 blev der på
omtrent samme sted opført en ny skovløberbolig, der ligeledes fungerede som et
lille traktørsted med udeservering. Ejendommen var beboet af skovløbere helt op
i 1980’erne, og fra 1994 til 2005 drev beboerne – helt i tråd med de ældgamle
traditioner for skovløberhuse i området – et mindre traktørsted på grunden, der
blev kaldt Alléhuset. Ejendommen ejes i dag af staten
og udlejes som privatbolig.

Det gamle
skovløberhus ved Jægersborg Allé og togbanen cirka 1866.
På ovennævnte billede ses til højre vejen
til Charlottenlund Station, i midten leddet for jernbanelinjen og længst i
baggrunden ses havedøren på Charlottenlund Slot. En transskription bag på
billedet lyder ”Det til venstre liggende straatækte
Hus er Skovløberens bolig. I en bag Huset værende lille Have var opslaaet faste Borde og Bænke for Skovgjæster
med medbragte Madkurve, - Vand paa Maskine, og
Drikkevarer, kunde faas hos Skovløberen. Nord for
Huset var indrettet en aaben Danseestrade som i Sommermaanederne var meget søgt af Landliggernes
Tjenestepiger. Denne Forlystelsesanstalt var Husmødrenes Skræk, da det som
Regel var ganske umuligt at holde Pigerne hjemme om Natten. Efter Herskabets
Sengetid sprang Nymferne, om fornødent, ud gjennem Vinduet, og løb til Skovs, hvorfra de som oftest
først vendte hjem paa Morgenstunden”.
Nedenfor ses Charlottenlund Strand,
Charlottenlunds Trouville eller ”Fluepapiret”, som det i 1898 hed i
folkemunde. Til højre i billedet kan ses de hegnspæle der omkransede det
militære område – det nuværende Charlottenlund Fort. Strandmarken lige bag
fotografen havde i mange år ligget udyrket hen, men
blev i 1887 bortforpagtet til kronprinsesse Louise, der lod arealet planere og
beplante med nytteplanter. Hun kaldte området for ”Dronningens Køkkenhave”.
Fra sommeren 1930 blev der igen offentlig adgang, og man kunne nu leje en
liggestol for 25 øre per to timer eller lytte til de spille- og lirekassemænd,
der til irritation for det finere borgerskab begyndte at indfinde sig.
Den 14. juni 1906 beskriver avisen
Dannebrog, hvordan den lille sandstrimmel ved Charlottenlund Fort - folkeligt
kaldet “Trouville” - er tæt pakket med cyklister og badende gæster, som ligger
skulder ved skulder i sandet. Artiklen roser den livlige, næsten idylliske
stemning, men beklager samtidig en “grim uskik”, hvor nogle gæster kaster små
sten efter hinanden, så forbipasserende risikerer at blive ramt i ansigt og
øjne – en adfærd, der ifølge avisen truer stedets ry som fredeligt
sommerudflugtsmål.

Strandliv på ”Fluepapiret” med soppende børn og damer med sommerhatte.
I løbet af 1900-tallet gik det ned ad bakke
for områdets forlystelsesliv. I efteråret 1936 blev Over Stalden som nævnt
nedrevet, og Skovridderkroen, der blev opført samme sted, måtte også lukke til
sidst.
I flere år var Ordrup Kro, Ved Stalden og
Bryggerhesten de klassiske tilbageværende forlystelsessteder i området. Ved
Stalden og Ordrup Kro er lukket, og Bryggerhesten, der fra begyndelsen af
1970’erne fungerede som områdets moderne skovkro – et brunt værtshus – lukkede
i december 2025. Det må derfor hilses velkommen, at Skovridderkroen er
genåbnet, og Bomhuset kommet til.

Badedragter model 1898.
Ordrup og omegn var tidligere ejet i et
samlet stykke, der efterhånden er blevet opdelt og udstykket i en lang række
mindre parceller med forskellige ejere. For at følge ejerne af grunden gennem
tiderne er det derfor nødvendigt at tage udgangspunkt i hele Ordrup.
Ordrup blev tidligt kirkegods, og byen
nævnes, som tidligere beskrevet i afsnittet I tidernes morgen, første gang i
cirka 1170 i forbindelse med, at biskop Absalon overdrager en skov ved Tømmerup
til Esrum Kloster og i bytte modtager to bol (gårde) i Gentofte og en tredjedel
af Ordrup. Absalon har måske fået resten af området af kong Valdemar den Store
(14. januar 1131 – 12. maj 1182), ligesom Esrum Kloster måske også har fået
deres del af Ordrup af ham i forbindelse med klosterets grundlæggelse omkring
1151. Men det vides ikke. I 1198 overgik byen til Roskilde Kirke, således at området kom under den katolske kirkelige
struktur.
Ved reformationen i 1536 overgår landets
kirkegods – herunder Ordrup - til kronen. Dog overtog Kong Hans som nævnt
allerede i 1507 en række gårde i Ordrup ved et mageskifte.
I 1681 oprettede Kong Christian V (15. april
1646 – 25. august 1699) en fasangård i Jægersborg, der den 7. november 1752 af
Kong Frederik V (31. marts 1723 – 14. januar 1766) sammen med et jordområde -
og efter at bl.a. Johan Ludvig lensgreve Holstein (7. september 1694 – 29. januar 1763) fra Ledreborg, havde besiddet gården – blev
overdraget til udenrigsminister Johan Hartvig Ernst
Bernstorff (13. maj 1712 – 18. februar 1772).
Johan Hartvig Ernst Bernstorff gav
fasangården navnet Bernstorff og påbegyndte i 1759 byggeriet af det nuværende
Bernstorff Slot.
Den 13. juli 1761 og den 2. juli 1764 får
udenrigsminister Johan Hartvig Ernst Bernstorff ved kongeligt Donations- og Concessions-Brev som arvefæste overdraget de tilliggende
jordarealer med det dertil hørende hoveri af bønderne i Gentofte, Vangede og
Ordrup, mod at han skulle indestå for disse hovbønders skatter og afgifter og
betale en årlig afgift på 682 rigsdaler. Forøgelsen af jorderne gjorde
Bernstorff til et gods og Johan Hartvig Ernst Bernstorff til greve og ejer af
bl.a. det stykke jord, hvorpå Villa Mowgli senere blev opført.
I maj 1765 kunne ægteparret, grevinde
Charitas Emilia født von Buchwald (3. marts 1738 – 26. maj 1820) og grev Johan
Hartvig Ernst Bernstorff, flytte ind i det næsten færdigbyggede slot. Charitas
Emilie var kun 13 år og 9 måneder gammel, da hun den 27. december 1751 blev
gift med den da 39-årige Johan Hartvig Ernst Bernstorff.
Den
1. september 1765 fik gaardbeboer Anders Olsen (1724–1804) fra den senere Eigaard ved lodtrækningen på Bernstorff
Slot - som ovenfor beskrevet - overdraget retten til de marker, der ligger i
området omkring Villa Mowgli. Anders Olsen var gift med Ane Jacobsdatter
(1729–1815), der var søster til Ole Jacobsen fra Skjoldgaard.
Den 1. oktober 1767
modtog Anders Olsen arvefæsteskøde på disse i alt 65½ tdr. land og hans ejendom
kunne nu gå i arv. For betaling af kongelige skatter og afgifter til Bernstorff
blev etableret et første og anden prioritets skadesløs pant i Anders Olsens
nyerhvervede ejendom.
I 1776 forøgedes Eigaards arealer med kratskoven Eiet
som Bernstorff ved lodtrækningen havde forbeholdt sig. Til gengæld måtte Anders
Olsen give afkald på sin i 1765 erhvervede ret til at få gærdsel (brænde) udvist fra andre skovarealer.

Uddrag af skøde fra 1767, hvor Anders Olsen modtager
gården fra Bernstorff.
Anders Olsen og Ane Jacobsdatter får tre børn – Birthe Andersdatter i 1763,
Johanne Andersdatter i 1766 og Jacob Andersen i 1769. Johanne Andersdatter
giftede sig med Lars Jensen Bruun (24. juni 1768 – 10. februar 1796), der på
det tidspunkt ejede Ordrup Kro. Desværre døde Lars Jensen Bruun kort tid efter
giftermålet ved et ulykkestilfælde på Charlottenlund Slot i en alder af kun 27
år. To uger efter hans død fødte Johanne hans søn, Lars Larsen Bruun, den 25.
februar 1796. Johanne Bruun giftede sig mod forventning ikke igen, men drev
kroen videre som den meget dygtige og foretagsomme kvinde, hun var. Således
opkøbte hun i 1823 Lindegaard, og blev fortsættende stammoder til
”Bruun-dynastiet”, som er beskrevet tidligere.

Uddrag af skøde fra 1795, hvor Anders Olsen sælger til
sønnen Jacob Andersen.
Den
13. juli 1795 overtog sønnen, Jacob Andersen (1769–1813), gården efter sin
fader på betingelse af, at han ikke måtte gifte sig uden samtykke fra
forældrene, og på betingelse
af, at forældrene måtte blive boende i et lille hus, der hørte til gården, samt
at ejendommen ikke måtte deles, men forblive samlet. Han havde nok ikke lige
regnet med at faderen ville blive 81 år gammel og moderen blive 86 år gammel, så
hun dermed overlevede sønnen.

Hartkornsekstrakt fra 1836 med Jacob Andersens enke og
Anders Eigaard
(Eigaardsminde) som ejere og
brugere af matrikel nr. 3 Ordrup (til brug
for beregning af hartkornsskatten).
Det lykkedes åbenbart
Jacob Andersen at finde en kone, der opfyldte forældrenes krav, og den 8. juni
1797 giftede Jacob Andersen sig med Ane Sørensdatter
(1774 – efter 1850) fra Teglgaard. Få år efter skiftede Jacob kaldenavn til
Jacob "Eigaard" Andersen. I stedet for kun
at kalde sin børn for Jacobsen blev de nu tillige kaldt "Eigaard" til efternavn.
Som ovenfor beskrevet, brændte Ordrup by i 1798 og det
faldt måske i Jacob ”Eigaard” Andersens lod at
genopbygge gården på jorderne lige syd for Vasehøj. Det vides dog ikke med
sikkerhed om den nye Eigaard blev opført inden
branden, men sønnen har formentlig hjulpet med til at opføre den nye gård.
Ifølge folketællingerne var der i 1801 tre
tjenestekarle og to tjenestepiger på den nyopførte gård. Gården var her
registreret som udflyttet.

Eigaard som den så ud efter udflytningen omkring år 1800.
Ovenfor ses Jens
Juels maleri Optrækkende uvejr over Eigaard i Ordrup
fra omkring år 1800. Billedet viser den hvidkalkede stråtækte udflyttergård Eigaard, og giver et ganske godt indtryk af gården på den
tid. Billedet hænger i dag på Statens Museum for Kunst. Jens Juel (12. maj 1745
– 27. december 1802) er måske mest kendt fra 100-kronesedlen fra 1972, men var
også professor på Kunstakademiet i København fra 1784.
Hvis den nye Eigaard var blevet opført inden branden, er billedet
formentlig malet i år 1791-1793, idet Statens Museum for Kunst mener at
billedet allerede i 1794 blev købt af den kunstinteresserede godsejer Johan von
Bülow (29. juli 1751 – 22. januar 1828), hvilket skulle fremgå af et brev fra
den 11. marts samme år. Hvis gården først blev udflyttet efter branden, må
billedet være fra cirka år 1801. Det er dog nærliggende at tro at den nye gård
var opført inden den gamle nedbrændte, og at nogle af de gamle gårde i Ordrup
inden branden blev udlejet til landliggere fra København. Men det finder vi
måske aldrig svar på.

Uddrag af kort over Kjøbenhavns
Omegn, revideret i Marken af Capt.v.Dodt,
udgivet og graveret af Adolph Bull 1843 & 1844.
I
1847 overtager datteren, Birthe Marie Jacobsdatter Eigaard (30. august 1809 - 15. marts 1898), gården.
Tinglysningen finder sted den 14. juli 1847. I forbindelse med overtagelsen må
Birthe Marie Jacobsdatter Eigaard
acceptere at moderen og søsteren Ane Helene Jacobsdatter
Eigaard kommer på aftægt, ligesom hun må betale hende
søskende deres del af arven. Betalingen sker ved udstedelse af en række
gældsbreve med pant i gården.

Uddrag af skøde fra 1847, hvor
enken efter Jacob Andersen, Ane
Sørensdatter, sælger til datteren Birthe Marie
Jacobsen Eigaard.
Birthe
Marie blev aldrig gift og fik heller ingen børn, der kunne arve gården. En af
hendes søstre, Karen Johanne Jacobsdatter Eigaard (1807-1870), blev i 1835 giftet til Mosegaard i
Vangede, der var ejet af Lars Larsen. En af hendes brødre hed Lars Jacobsen Eigaard (1803-1867), og han havde i 1832 giftet sig til Hyldegaard, der var ejet af Ane Kirstine Jacobsdatter (1807-1868). En anden af hendes brødre hed
Anders Jacobsen Eigaard (1798-1867), der først
ernærede sig som brændevinshandler i København og senere som rentier og medlem
af sogneforstanderskabet i Ordrup. Han boede på Eigaardsminde, der omkring 1840 var blevet bygget på en udstykning
fra Eigaard, der hvor Fredensvej
i dag ender i Jægersborg Allé.
Anders Jacobsen Eigaards søn fik navnet Jacob Andersen Eigaard
(8. maj 1825 - 15. januar 1915) og overtog Eigaardsminde.
Han var efter sigende meget musikalsk, idet han bl.a. spillede i kvartet med
Niels W. Gade (22. februar 1817 – 21. december 1890).
Den sidste allerede
nævnte søster hed Ane Helene Jacobsdatter Eigaard (1805-1890). Hun blev heller aldrig gift, var hele livet på
forsørgelse rundt omkring hos familiemedlemmer og boede i en lang årrække på Eigaard sammen med Birthe Marie Jacobsdatter
Eigaard.

Birthe Marie Jacobsdatter Eigaard.
Birthe Marie Jacobsdatter
Eigaard beskrives, flere år efter hendes død, i
Villabyernes Blad den 8. juli 1926 som en meget intelligent dame med noble fine
karakterer, der efter sin fader styrede den gamle slægtsgård så godt som en
mand. Artiklen og ovennævnte billede blev bragt i forbindelse med Ordrup Kirkes
50-års jubilæum, hvor Birthe Marie Jacobsdatter Eigaard ved opførelsen havde skænket uret til kirken.
Gården beskrives i artiklen som fin og sirlig både ude og inde, med en
mønsterhave med valnødtræer og en lænkehund, og marker med gode afgrøder.
Ifølge artiklen skulle hun havde ledet sine folk med ro og beherskelse, og som
øverste hjælper i den store husholdning stod hendes søster Helene, der var
overordentlig smuk og god. Ordrup bys fattige gik ifølge artiklen aldrig
forgæves efter hjælp på Eigaard, og i slagtetiden var
mange af omegnens børn og unge beskæftiget med at bringe pølser, flæsk og andre
fødemidler, der hørte sig vinteren til, rundt til trængende familier og ensomme
i Ordrup. På Eigaard gav man med rund hånd, og de,
der bragte gaverne ud, fik stukket et stort pengestykke diskret ned i hånden af
jomfru Helene. Artiklen beskriver endvidere, hvor stor
en glæde det havde været for jomfru Marie at skænke uret til kirken, da man
foreslog hende det. Hendes store smukke hjem med de stilfulde mahognimøbler og
kunstsager var præget af udsøgt smag og hygiejnisk forståelse. ”Sol og ren
luft må vi have gennem vinduer og døre”, sagde jomfru Helene, og de
håndfilerede gardiner og åbne havestuedøre ud mod den grønne have var dejlige
at se og ville have frydet en nutidshygiejniker,
fortsatte artiklen. De to jomfruer havde da også et fortræffeligt helbred og
blev henholdsvis 88 og 85 år gamle.
Ifølge et referat fra Gentofte Sogneråds
møde den 6. april 1880, var det dog først her, at man godkendte at ”Den
forhenværende Ejerinde af Eigaarden i Ordrup, Jomfru
B. M. Eigaard, tilbød at skænke Ordrup Kapel et nyt Taarnur og udrede alle med dets Anbringelse forbundne
Omkostninger”.
Ved sin død boede Birthe Marie Jacobsdatter Eigaard på Kirkevej
8, st., der stadig eksisterer.

Kort over området fra cirka
1864.
Den 2. april 1880 sælger Birthe Marie Eigaard gården til rådmand og byggespekulant Frederik
Christoffer Bülow (19. maj 1811 – 15. december 1890), der tillige bl.a. ejede
Nordre Svejgaard i Hellerup (senere kaldt Helleruplund).
Som det ses af nedenstående salgsannonce fra
prokuratorerne Bretteville & Buemann i København,
agtede Ejerinden at sælge gården hel eller delvis på grund af sin fremrykkede
alder.

Annonce fra Dags-Telegraphen den 12. august 1879.
Frederik Christoffer Bülow var rådmand i
Københavns Kommune i årene 1858-1869 og inspektør ved Ladegården, der var en
tvangsarbejdsanstalt for fattige, husvilde og personer med kønssygdomme.
Lemmerne, som de blev kaldt, skulle bl.a. renholde Københavns gader. Ladegården
lå på Rosenørns Allé, hvor Radiohuset ligger i dag.
Birthe Marie Jacobsdatter
Eigaard fik ifølge ovennævnte avisartikel i
Villabyernes Blad en meget stor sum for den fædrene gård. Af skødet og avisen
Fædrelandet fremgår, at den store sum var 120.000 kr., hvoraf 50.000 kr. skulle
betales kontant. Men så var handlen også inkl. besætning, inventar og 60 tdr.
Af Forsikringsprotokollen for Sokkelund Herred
(forsikring nr. 275) fremgår at stuebygningen og staldbygningerne var forsikret
for i alt 7.300 kr., så det var den tilliggende jord der havde størst værdi for
køberen. I faderes tid var forsikringssummen kun på 4.800 kr. og blev i
Forsikringsprotokollen omtalt som ”Jacob Andersens gaard
på marken i Ordrup”.

Udsnit af tingbogen
fra den 7. april 1880, hvor handlen lyses (Landsarkivet, Kbh.).
Frederik Christoffer Bülow blev boende på
Nordre Svejgaard og lod Eigaard bestyre af en
søstersøn til Birthe Marie Eigaard, der måtte opleve
at en so i marts 1881 fik miltbrand, hvorefter hele besætningen kom under
offentligt tilsyn.
I perioden fra den 11. marts 1885 til den
22. juli 1891 blev området pålagt en række servitutter om kloakering,
vejfærdsel, bebyggelse og benyttelse, hvorefter området fik udlagt arealer til
veje og blev udparcelleret.
Kloakering var ellers et nogenlunde nyt
fænomen. Om sommeren stank den åbne rendesten der løb gennem Ordrups hovedgade,
så de forfinede landliggere fra København, fik hovedpine. Der udviklede sige en
årelang kamp mellem landliggerne og sognerådet, der ikke ville bekoste en
kloak. Så besluttede alle de faste landliggere, efter fælles aftale, at flytte
ind så tidligt på året, at de det pågældende år ikke blev skattepligtige i
Gentofte kommune. Det var det første ”oprør” i Ordrups historie, og det førte
til en glansfuld sejr – kloakken kom året efter.
Tilbage i 1852 havde Frederik Christoffer
Bülow erhvervet sig 35 tdr. land mellem Gammel Kongevej og Ladegårdsåen
(Åboulevard fra 1897), som han lod udstykke. I årene omkring 1850 erhvervede
han sig desuden et stort område omkring Blågård på Nørrebro. Også her lavede
han større udstykninger, men hvor han i store områder af Frederiksberg lavede
en servitut om, at man kun måtte bygge villaer, gav han området ved Blågård en
servitut, der bestemte, at der kun måtte bygges fireetages ejendomme med
minimum tre lejligheder på hver etage. Forskellen på de to områder -
Frederiksberg og Nørrebro - var dermed fastlagt fra begyndelsen. Hvor
Frederiksberg blev et velhaverkvarter, blev området omkring Blågård på Nørrebro
fyldt op med boligkarreer for folk med små indtægter.
I årene mellem hans køb i 1852 og 1857 steg
villagrundene på Frederiksberg med 50-100%, hvilket illustrerer de enorme
fortjenester han opnåede ved sit arbejde. Blågårdsgrundene steg endda i samme
periode med hele 150-250%.
I 1865 var Frederik Christoffer Bülow
medstifter af Arbejdernes Byggeforening, hvis formål det var at skabe gode og
sunde boliger til de dårligst stillede. Foreningens formål var "at
opføre små beboelseshuse, der skulle overgå til selveje, og samtidig virke som
sparekasse". Endelig var Frederik Christoffer Bülow bestyrer af
fattiggården Frelserens Arbejdshus i Sofiegade, der hørte til Vor Frelsers
Sogn.
Så han var en rigtig boligspekulant, der
også tænkte på de fattigste.
Den 4. februar 1880 fik Frederik Christoffer
Bülow naturalisationspatent som adelig, ligesom han blev tildelt
Dannebrogsmændenes hæderstegn. At Frederik Christoffer Bülow fik naturalisationspatent, betød ikke som normalt, at han
fik dansk statsborgerskab, for det havde han allerede, men derimod at han kunne
overføre sin slægts tyske adelstitel til Danmark.
Frederik Christoffer Bülow døde efter en
operation på Frederiks Hospital, og har lagt navn til Bülowsvej på
Frederiksberg.

Frederik Christoffer Bülow med sin orden.
Frederik Christoffer Bülows efterlevende
enke, Helene Anna Cathrine Bülow født Schwartz (24. april 1831 - 15. april
1915), solgte ud af ægtemandens grunde og den 11. juli 1891 solgte hun et stort
jordstykke i Ordrup til højesteretssagfører Peter Adler Alberti (10. juni 1851
– 14. juni 1932), der allerede ejede forskellige gårde og jordstykker i området
og som havde hjulpet Frederik Christoffer Bülow med servitutterne.
Frederik Christoffer Bülow var blevet gift
med Helene Anna Cathrine Schwartz i 1854. Han var da 42 år gammel og hun 22 år
gammel. Det var hans tredje ægteskab, idet hans første to ægtefæller allerede
var gået bort som 27- og 30-årige. Han skulle, så vidt jeg kan tælle, havde
fået 10 børn i alt.

Udsnit af tingbogen
fra den 22. juli 1891, hvor handlen lyses (Landsarkivet, Kbh.).
Peter Adler Alberti fortsatte arbejdet med
at udstykke området og Gudrunsvej 22 (eller matr.nr. 3eh af Ordrup by og sogn),
der lå på mark nr. 12, blev udstykket fra Eigaard
(eller fra matr.nr. 3a af Ordrup by og sogn) den 5. december 1894.
Peter Adler Alberti boede selv et par somre
på Eigaard. I den periode var der evig sang og musik
på gården til langt ud på aftenen – dette takke være
Peter Adler Albertis unge gennemmusikalske og livs lystne frue, Eugenie
Alberti, født Møller (24. april 1857 – 7. april 1929), der senere blev gift med
kammersanger Laurits Peter Cornelius, født Petersen (4. januar 1865 – 30.
september 1934). Gården var fuld af kunstnere, hvilket ikke var noget for Peter
Adler Alberti, der var ganske umusikalsk, og som kom træt hjem fra arbejde i
København og gik i seng kl. 21:00. Så det var ikke mærkeligt at ægteskabet ikke
holdt og blev opløst i 1898. Medens Peter Adler Alberti boede på Eigaard lærte han den nye sport at køre på cykel at kende.
Det var cykelhandler og den senere reklamepioner Jens Sylvester Hvid (29. marts
1866 – 5. august 1928), der lærte ham at cykle, og han skulle have udtalt at
det var det værste job han nogensinde havde haft. Peter Adler Alberti vejede
120 kilo, og Jens Sylvester Hvid måtte løbe og holde cyklen. Det foregik kl.
syv om morgenen da Peter Adler Alberti skulle være på job i Bondestandens
Sparekasse på Ny Vestergade i København før ni.
Den senere justitsminister Peter Adler
Alberti (V) blev nok mest kendt for Albertis Pryglelov, der i 1905 bestemte, at
der kunne anvendes pryglestraf mod mænd mellem 15 og 55 år for voldtægt, grov
legemlig vold og uterlighed over for mindreårige, samt for sit engagement i
Sjællands Bondestands Sparekasse, hvor han begik underslæb. Han foretog
desuden en række fejlslagne spekulationer i sydafrikanske guldmineaktier,
ligesom han begik omfattende bedragerier tilbage i 1890'erne. I alt lavede han
underslæb og bedragerier for cirka 15 mio. kroner, svarende til cirka 1,5 mia.
kroner i dagens penge.
Den 8. september 1908 kl. 11:45 meldte Gehejmekonferensraad Peter Adler Alberti sig selv til
politiinspektøren på Raad- og Domhuset på Nytorv i København for ”Falsk og
Bedrageri”, og blev efter et grundlovsforhør om eftermiddagen anholdt og
sat i varetægt. I forhøret indrømmede han, at bedragerierne havde stået på
siden 1894, og at han senere havde spekuleret i bl.a. guldmineaktier for at
dække over tabene. Han boede på det tidspunkt på ejendommen Mineslyst
på Ordrupvej 30, der var bygget på en grund udstykket fra Holmegaard i starten
af 1800-tallet.
Samme dag kunne man på løbesedler og
avisforsider landet over læse om skandalen og at Sjællands Bondestands
Sparekasse havde måtte smække dørene i for at forhindre et stormløb, at
fondsbørsen måtte lukke noteringen, da de fleste papirer var usælgelige, at man
anslog, at bedragerierne ville beløbe sig til et beløb på 9-10 mio. kroner, og
at hverken ministre eller kongehuset, der straks blev indkaldt til
ministermøde, anede noget. Også dengang vaskede alle hænder, og selv om alle
var overraskede, kunne flere journalister naturligvis meddele at de havde set
det komme. For at sætte bedrageriets størrelse i relief kan det bemærkes, at en
ufaglært arbejder på dette tidspunkt, tjente omkring 40 øre i timen.
Dagen efter flød aviserne over med historien
set fra alle mulige forskellige vinkler – og også fru Alberti kunne bedyre, at
hun skam heller ikke vidste noget, og at hun selv havde modtaget meddelelsen
fra politiet, men at Peter Adler Alberti havde været så fremsynet, at sikre sin
nye ægtefælle med en ægtepagt, så hendes betydelige formue ikke kunne inddrages
i konkursboet.
Dommen faldt den 17. december 1910 og lød på
den højeste straf, der kunne dømmes for nævnte forseelser, nemlig 8 års tugthus
i Horsens. På grund af sygdom blev Alberti betinget benådet i 1917 og levede
derefter et stille liv i København indtil han i 1932 omkom ved en
færdselsulykke som 81-årig. Den 11. juni 1932 blev han nemlig kørt ned af Linie
8 på Christianshavns Torv, og døde tre dage efter af sine kvæstelser.
Peter Adler Alberti havde forudset at der
kunne tjenes mange penge på at opkøbe og udparcellere grunde i Ordrup, men det
var ikke nok til at redde ham fra konkurs og tugthus.

Peter Adler Alberti.
Allerede den 4. juli 1896 havde
overretssagfører Carl Theobald Valdemar Friis (27.
april 1841 – 31.oktober 1906) af Peter Adler Alberti købt parcellen Gudrunsvej
22, hvor Villa Mowgli senere blev opført. Af skødet fremgår, at Carl Theobald
Valdemar Friis samtidigt købte en række parceller, nemlig matr.nr. 3eg,
3eh, 3ei, 3ek, 3em, 3ey, 3eæ og 3ez
af Ordrup by og sogn med et samlet areal af 109.787 kvadrat alen. Matriklerne
svarer til Gudrunsvej 22A, 22B, 24, 26 og 30, samt Engmosevej 1 og Henrik Hertz
Vej 5. Den sidste matrikel er senere opdelt i yderligere matrikler, nemlig
matr.nr. 3hy, 3kv, 3hz, 3mv, 3hø og 3ia
af Ordrup by. Prisen blev beregnet med 87½ øre pr. kvt.
alen, svarende til i alt 96.063 kroner og 62 øre. Gudrunsvej 22 eller matr.nr.
3eh af Ordrup by og sogn havde et areal på 3.148 kvt.
alen svarende til en købesum på 2.754,50 kroner. En alen er lig med 24 tommer
eller 62,8 cm, hvorfor grundstykket var på cirka 1.240 m2.
Det var en betingelse ifølge skødet, at
Peter Adler Alberti skulle bekoste 20 alens bredde veje fra indkørslen på Eigaard til overkørselsstedet ved jernbanen og fra den
daværende parallelvejs nordre ende mod vest til den vej, der gik mellem Eigaards mose og lund, samt kloakere disse veje. Vejen
gennem gårdspladsen skulle dog først kloakeres når Peter Adler Alberti var
fraflyttet Eigaard. Som modydelse for veje og kloaker
blev fremtidige købere pålagt at betale en årlig afgift til ham som godtgørelse
for investeringen. Det blev i skødet sikret, at ”der ingensinde måtte
anlægges beværtninger eller drives noget som ved larm, lugt eller røg,
ubehageligt skue eller på anden måde kunne forvolde naboerne ulempe”. De
fremtidige villaer måtte også højest bestå af kælder, stue, 1. sal og kvist.


Udsnit af
købekontrakt fra den 4. juli 1896.
Meget
belejligt nedbrændte selve Eigaard som nævnt den 12.
november 1896, og der var dermed fri bane for udstykning og salg af den jord,
som lå i umiddelbar nærhed af brandtomten. Således blev Ejgårdshus
bygget på det østlige hjørne af Ejgårdsvej og Fredensvej
i 1902. Det var det første egentlig store byggeri med lejligheder til udlejning
i Ordrup-Charlottenlund, der blev opført. I dag ligger Ejgårdsvej 15, hvor Eigaard lå.
Frederik
Jensen, en tidligere straffet arbejdsmand, der gik under navnet Tude-Frederik,
blev ifølge Aftenbladet anholdt og mistænkt samme dag som branden opstod.
Branden opstod om natten ved to-tiden, og byens borgere blev vækket af
kirkeklokkerne og en brandalarm.
Det
skal bemærkes, at Carl Theobald Valdemar Friis inden branden, havde solgt Eigaard til formand Olsen til nedrivning og at
nedrivningsarbejdet var i fuld gang. Således var hovedbygningen og den nordre
længe nedrevet, og den østre og vestre længe var halvt nedrevne, da branden
opstod. I de halvt nedrevne bygninger stod vinduer, døre og paneler, der var
blevet solgt til tømrer Frederik Hansen. Frederik Hansen hævdede straks, at
tabet måtte være formand Olsens, idet han endnu ikke havde hentet de købte
varer. Men sikkert var det, at Carl Theobald Valdemar Friis ikke led noget tab.
Ifølge
birkedommeren for Københavns Nordre Birk, Valdemar Oldenburg (1. december 1834
– 6. juni 1918), skulle branden været opstået ved at ”vagabonden” havde
strøget en tændstik for at finde en snaps i nedrivningsarbejdernes værelse, og
derved havde fået antændt noget halm der lå og flød alle vegne. Birkedommeren
mente ikke, at branden var blevet påsat med vilje, og formand Olsen måtte
ifølge avisen Dannebrog bære tabet på anslået små tusinde kroner.
Den
16. marts 1897 måtte birkedommeren løslade den mistænkte på grund af mangel på
beviser, men allerede den 27. oktober 1897 kunne en række aviser meddele at
Tude-Frederik igen var anholdt – denne gang for et indbrud på Dyssegårdens
Teglværk i Gentofte.


Udsnit af tingbogen
fra den 15. juli 1896, hvor handlen lyses (Landsarkivet, Kbh.).
Carl Theobald Valdemar Friis var præstesøn
og stammede oprindeligt fra Nyker på Bornholm. I perioden 1868 til 1906 var han
af justitsministeriet autoriseret til at håndtere møder mellem højesteret og de
øvrige retter, og i 1878 blev han overretssagfører. I 1880 boede han på
Vandkunsten 181 i København, så på Krystalgade 32, men flyttede i 1891 fast til
Lindegårdsvej 45, hvor han boede sammen med sin hustru Augusta Elisabeth Marie
Friis født Richter (30. juni 1852 - 1. august 1937) og deres fire børn. Allerede
i 1882 havde han købt grunden i Ordrup, hvor han byggede en villa i 1885.
Carl Theobald Valdemar Friis deltog ”med
mod og udholdenhed” som frivillig i krigen i 1864 i Slesvigs 17. bataljon
8. kompagni i perioden 23. august 1863 til 8. oktober 1864 - blandt andet i
kampen ved Sankelmark - og avancerede til Løjtnant.
Carl Theobald Valdemar Friis var levende
interesseret i de kommunale anliggender og arbejdede ihærdigt for en hurtig
udvikling af Ordrup til en attråværdig villaby. Men som det fremgår af
nedenstående uddrag af en artikel i venstrebladet Nordre Birks Tidende den 27.
april 1906 i anledning af hans 65-års fødselsdag, var han ikke selv helt
tilfreds med udviklingen:
"Han havde kun boet der en fire års tid, da byens borgere viste ham den tillid at vælge ham
til formand i deres forening, den såkaldte Kommunalforening for den østlige del
af Gjentofte Sogn. Endnu dengang var der intet
mærkeligt i dette navn på en kommunalforening for Charlottenlund og Ordrup. Nu
ville man næppe kalde denne del af kommunen for den østlige, men dengang var
Hellerup endnu for intet at regne; der var ingen mennesker, ingen kirke,
ingenting i Hellerup. Ordrup var alt - set fra et borgerligt synspunkt. Thi
foruden Ordrup fandtes kun det uberørte bondeland med sine agrariske
interesser, som nidkært varetoges af Sognerådets proprietærer.
Mod "bonderegimentet" rejste det
borgerlige Ordrup sig med Kommunal-foreningen i spidsen. Det var uroens og
fremgangens år for Ordrup, år, hvor der var nok at tage vare på for
Kommunalforeningens formand, hvor personligt tilbageholdende og beskeden han
end var. Han skulle synes selvskreven til i hine år at blive løftet ind i
Sognerådet, hvor han utvivlsomt kunne have ryddet mange af de sten bort, som
senere blev lagt Ordrup i vejen. Men han nåede mærkeligt nok aldrig ind i
Sognerådet, og grunden var vel i første linje hans store beskedenhed, hans
villighed til at arbejde for andre hellere end for sig selv. Det var selve
udviklingen, der omkring århundredskiftet lagde de største sten i vejen, den
udvikling, som i løbet af få år har gjort Hellerup fra ingenting til et sogn,
og fra et sogn til en by på 10.000 indbyggere, mens den samtidig lagde
stagnationens trylle ring og Torneroses søvn over Ordrup. Det blev ikke Ordrup,
men Hellerup, der kom til at føre det afgørende slag mod "agrarerne"
og besejre dem. Og dette har sat sit præg på Ordrup den dag i dag.
Det har også sat sit præg på
overretssagfører Friis. Han er med årene blevet skeptiker i sit kommunale syn -
skeptiker i alt fald på sin bys vegne; han spekulerer ikke længere på Ordrups
fremtid, han nøjes med uden blinken at se den sandhed i øjnene, at Ordrups
nutid ikke er bleven den, han i sin tid drømte om. Samvittighedsfuldt og
trofast som altid varetager han endnu med interesse sit hverv som
Kommunalforeningens formand, arbejder lige ihærdigt for at få en ny lokal lygte
som for at bryde brodden af modsætninger mellem den store kommunes forskellige
dele. Men ville man komme og tale til ham om en fyldigere repræsentation i
Sognerådet for Ordrup og Charlottenlund, så ville han bare ryste på hovedet og
smile, og inde i det smil ville man kunne læse den tanke: "Slaget er
tabt".
Men bag den tanke vil den, som lytter
rigtigt til, kunne høre en ny tanke gro, tanken om de tre sognes opgivelse af
gamle særstandpunkter og opgåen i en ny og
inderligere enhed. Han har netop i vinter givet denne nye tanke udtryk på
kommunalforeningsmøder både i Ordrup og Gentofte, hvor han, særlig med det
forestående landstingsvalg for øje, manede til sammenhold og fælles taktik.
Således har den skepticisme, Ordrups
nederlag i gennembrudstiden skabte hos ham, alligevel ført ud i en stærk
kommunal fremtidstro med vidt vingefang. Det er sikkert nok hans almindelige
politiske overbevisning, der har åbnet ham denne nye udsigt fra ruinerne af
hans gamle lokalpolitiske forhåbninger. Han har alle dage været stærkt politisk
interesseret med et afgjort demokratisk grundsyn. Og det er utvivlsomt håbet
om, at det ved sammenhold og enighed mellem de tre sogne skal lykkes Gentofte
Kommune at få den politiske indflydelse, den har krav på, der har fået ham til
at sætte samlingstanken som målet.
Ordrup synes nu igen at gå en opgangstid i
møde. Hvis den går ind i denne nye tid under samlingstankens tegn, så vil det
næppe kunne glæde nogen mere end den gamle fører, der har gennemlevet hele den
splittelsens tid, som fulgte efter den sidste opgangsperiode. Men hvad enten
Ordrup også i det stykke vil følge hans signal, eller det vil foretrække her at
lytte til andre røster, i det vil alle gode Ordrup'ere
kunne enes: At sende en venlig tanke til fødselsdagsbarnet på Lindegårdsvej, og
ønske ham mange gode år endnu at virke i for Ordrup".

Ægteparret Friis fra
1885.
Inden sin død nåede Carl Theobald Valdemar
Friis at blive en af Ordrups største jordbesidder med en formue på over 600.000
kr. – en pæn formue dengang. Inden jorden blev udstykket, benyttede han den til
sin store passion – dyrkning af frugttræer. Da han døde, var der endnu bundet
kapital i mere end 30 matrikler, men ifølge hans testamente skulle alle
investeringer i form af panteobligationer i grunde og ejendomme afvikles ved
hans død. Ordrup-Charlottenlund Bank købte en del, og det, som salget
indbragte, blev båndlagt i Overformynderiet i rentegivende obligationer. Enken
og de fire børn – Valborg på 19 år, Gudrun på 17 år, Sigrid på 15 år og
Valdemar på 13 år – var herefter økonomisk sikrede.
Da Augusta Elisabeth Marie Friis døde i
1937, blev der, efter hendes ønske, oprettet et legat med det formål at
understøtte gamle og børn i fortrinsvis Ordrup og Charlottenlund. Legatet hed
Overretssagfører Valdemar Friis og hustru Augusta, f. Richter's Legat.

Carl Theobald
Valdemar Friis siddende forrest til højre i jernbanekupéens venstre
side med armene
hvilende på sin stok i toget fra Charlottenlund til København.
Den 6. april 1898 køber vennen murermester
Nicolaj William Petersen (28. juli 1856 – 7. januar 1918) grunden, Gudrunsvej
22, hvorefter han ifølge godkendelse af 19. oktober 1898 kunne påbegynde
opførelsen af villaen. Den 19. oktober er siden blevet benyttet som dage for
Villa Mowgli’s fødselsdag, men det er måske mere korrekt at sige at det er
ejendommens undfangelse.


Ansøgning til
Gentofte og Ordrup Sogns Bygnings Kommission om opførelse af grund-
muret villa dateret
29. september 1898 samt godkendelse dateret 19. oktober 1898.
Også dengang blandede omgivelserne sig i
hvorledes områdets hegn skulle se ud og ifølge skødet måtte hegnet mod vej og
sti kun bestå af et oliemalet stakit eller af et levende hegn - og netop på
disse måder har grunden stort set været indhegnet i de seneste cirka 125 år.


Udsnit af tingbogen
fra den 13. april 1898, hvor handlen lyses (Landsarkivet, Kbh.).
Ifølge skødet købte Nicolaj William Petersen
flere parceller samtidigt, nemlig 3eg, 3eh og 3ei af
Ordrup by og sogn, svarende til Gurdunsvej 22A, 22B
og 24. Købesummen var her 2 kroner pr. kvt. alen plus
vejafgiftskapital m.v., svarende til en samlet pris på byggegrunden, Gudrunsvej
22, på 7.262,27 kr.
På under 2 år var grundprisen således steget
med 266%, hvilket må siges at være en særdeles god forrentning i en periode,
hvor landet ikke var plaget af sønderlig inflation.
Murermester Nicolaj William Petersen var søn
af murermester Frederik Carl Petersen og havde selv boet i området i længere
tid og ejede bl.a. fra 1877 til 1878 Nordre Svejgaard, som også Frederik Christoffer Bülow havde ejet. Den 22. november
1879 gifter han sig med Amalie Louise Nielsen.
Nicolaj William Petersen etablerede sig som
murermester i Ordrup i 1883 og opførte en lang række villaer i området, som han
udlejede eller solgte. Ved en gennemgang af områdets tinglyste handler omkring år 1900, kan man se at han ud over opførelse og salg
af villaer, medvirkede ved en stor mængde grundhandler.

Nicolaj William Petersen fra 1907.
Ud over sin murermesterforretning var
Nicolaj William Petersen også aktiv i det lokale foreningsliv. Efter et
sognerådsvalg i 1897 opstod der utilfredshed med de ringe hensyn, der generelt
blev taget til håndværkerstanden i området. Dette blev baggrunden for, at
Gentofte Kommunes Haandværkerforening for
Gentofte-Ordrup sogn blev dannet den 18. november 1897, hvor Nicolaj William
Petersen blev næstformand og senere formand. Foreningens formål var ”at
virke til Haandværkerstandens Tarv og Bedste og at
søge dannet en Fond til Støtte for trængende Haandværksmestre
og deres Enker i nævnte Sogn”. Ved den konstituerende generalforsamling
indmeldte der sig cirka 100 medlemmer. Ved et suppleringsvalg i Gentofte-Ordrup
Kommune nogle måneder senere, fik den nye forening lejlighed til at vise, hvad
den duede til og gennem en aktiv valgkamp lykkedes det at skaffe foreningen et
sognerådsmandat til murermester Nicolaj William Petersen. Nicolaj William
Petersen sad således i sognerådet i perioden 1898 til 1903. Ved suppleringsvalget
stillede han op for de konservative, men skiftede i 1908 over til Venstre.

Fra Villabyernes
Blad den 23. november 1922.
Torsdag den 16. november 1922 bragte Villabyernes
Blad en fin artikel i anledningen af håndværkerforeningens 25-års jubilæum, og
ugen efter kunne en beskrivelse og billeder fra festmiddagen på
Jernbanepavillonen, med over 100 festklædte deltagere, gengives. Den første
håndværkerforening var blevet dannet i Gentofte i oktober 1875, men var
allerede blevet opløst i 1895.

Gentofte Sogneråd holder i 1903 møde i lokalerne på Jægersborg
Skole. Omkring bordet ses fra venstre: Chr. Larsen, Bauer-Petersen,
C. Ph.Teller, Fritz Iversen, sognerådssekretær
H. Jantzen, Th.
Krüger, Andr.
Albech, Nicolai William Petersen, Frantz
Rasmussen og Juul Steen.
I 1898, hvor opførelsen af villaen blev
påbegyndt, boede Nicolaj William Petersen på Gudrunsvej 10. På det tidspunkt
var kun Gudrunsvej 10, 16, 18 og 20 bebygget. Adressen hed på det tidspunkt Eriksvej 10 og det var også på denne adresse, at Nicolaj
William Petersen døde den 17. januar 1918.
Den 11. december 1916 – midt under Den Store
Krig - købte fabrikant og ingeniør Christoffer Frode Müller (19. oktober 1871 -
17. januar 1963) ejendommen af Nicolaj William Petersen. Af skødet, der blev
tinglyst onsdag den 10. januar 1917, fremgår at grunden stadig var på 3.148
kvadratalen (1.240 kvadratmeter), og at der skulle betales en årlig vejafgift
på 50 øre pr. løbende alen mod facaden, svarende til 13 kroner og 46 øre. Da
villaen var en udlejningsejendom - og var udlejet til og med sommeren 1917 - var
det endvidere bestemt, at lejeindtægten skulle
tilfalde den nye ejer fra og med overtagelsesdagen. Købesummen var fastsat til 28.000
kr. med en kontant udbetaling på 7.000 kr. Den 3. almindelige offentlige
vurdering til ejendomsskyld androg dengang 26.000 kr.


Udsnit af tingbogen fra
den 10. januar 1917, hvor handlen lyses
(Tinglysningen,
Gentofte).
Familien Müller stammede oprindelig fra
Asserballe på Als, hvor faderen George Vilhelm Müller (28. november 1816 -
17. august 1898), der var præst, i 1867 besluttede at flytte til Tommerup på
Fyn og året efter til Sundby Præstegård på Lolland-Falster, da han ikke ønskede
at prædike på tysk og derfor den 20. maj 1867 blev afsat af de tyske magthavere
på grund af eds vægring. Han var præst i Nørre Kirkeby fra 1869 til sin død i
1898.
Præstefamilien fik i alt 5 drenge og 3
piger, og Christoffer Frode Müller kom til verden i Stadager på Falster.
En anden søn var Jørgen Peter Müller (7.
oktober 1866 – 17. november 1938), kaldet I.P. Müller. Han var hygiejniker, idrætspioner, forfatter, cand.phil., ridder af
Dannebrog og løjtnant ved ingeniørkorpset. Han blev en kendt gymnastikpædagog,
hvis motto var: ”Vand, sol og motion” og skrev bl.a. bogen Mit System,
der blev oversat til 24 forskellige sprog. En statue, hvor han gør gymnastik
kun iført et håndklæde, er opstillet foran Københavns Roklub og i Nykøbing
Falster.
I.P. Müller boede i Villa Mowgli i en
periode i september 1931 til april 1932, efter at han som enkemand var vendt
hjem fra England og inden han flyttede i egen bolig på Fredensvej
32.
En tredje søn var præsten Poul Simon
Valdemar Müller (4. oktober 1873 – 16. december 1950), der efter at have været
lærer i gymnastik på Horsens Statsskole blev forstander på Sankt Lukas
Stiftelsen, der dengang lå i København. Han flyttede stiftelsen til Hellerup,
hvor sønnen Johannes Müller (25. november 1907 – 30. juli 1979) i 1946 tog over
som forstander.
Sønnen Oluf Benjamin Müller (3. juli 1875 –
20. maj 1954) blev adjunkt og lektor i gymnastik og dans på Sorø Akademi,
medens sønnen Georg Vilhelm Johannes Müller (17. november 1868 - 1957) var
byens skatteopkræver, skattekontrollør, distriktschef, snedker, møbelfabrikant
og billedkunstner - og kendt som familiens Georg Gearløs.

I midten Christoffer
Müller i 1898 efter at
Randers Roklub havde
vundet over Kolding.
De fem sønner blev kendt som "De
fire roere fra Falster", idet Poul som kommende præst ofte følte sig
for fin til at være med på holdet – det blev han i det mindste drillet med af
brødrene på trods af at han efter sigende var lige så flot og rank som sine
brødre. De vandt flere mesterskaber - bl.a. Øresunds-pokalen i 4-åres inrigger
seks år i træk og otte danske mesterskaber - og opnåede også at blive
skandinaviske og europamestre. Christoffer Müller var også medstifter af
Randers Roklub.

Det i sin tid så berømte Müllerhold. Fra venstre
Georg, Christoffer, Jørgen
Peter og Benjamin Müller med styrmand V. Andersen
siddende i midten.
En datter hed Cecilie Margrethe Müller (23.
juni 1870 – 3. december 1957) og endte som ugift musik- og sproglærerinde i
Roskilde. Under Den Store Krig blev hun uddannet samarit i England og var efter
krigen sygeplejerske, hvor hun genoptrænede krigsinvalider. Hun var endvidere forfatter til den engelske bog Fresh
hope and health – for wounded and disabled soldiers (1919), hvor hun i pressen ved udgivelsen i
England blev omtalt som den kendte I.P. Müllers søster. Hun opholdt sig otte år
i Tyskland, 10 år i England og et år i Frankrig, hvor hun en kort periode bl.a.
hjalp I.P. Müller på hans institut.


Cecilie Margrethe
Müller og hendes bog.
Anne Cecilie Ottonia
Müller (1. august 1864 – 2. marts 1903) var sygeplejerske på Kommunehospitalet
i København inden hun giftede sig med præsten Frederik Ferdinand Eyermann (29. december 1864 – 17 oktober 1909) i 1894,
medens Ellen Nielsine Jacobsen Müller (25. oktober 1877 – 6. april 1944) blev
ugift musiklærerinde og organist i Haderslev, hvor hun var blevet bortadopteret
til orgelbygger Jakobsens familie da moderen døde.

Anne Cecilie Ottonia Müller
Moderen til alle børnene hed Eline Nielsine
Müller, født Jacobsen (28. januar 1842 – 4. november 1877), og døde kun ni dage
efter Ellens fødsel.
Christoffer Frode Müller flyttede i 1907 fra
L. I. Brandes Allé 18 på Frederiksberg til Ejgårdsvej 32 (dengang Eigaardsgade), hvor han som lejer bosatte sig på første sal
med sin første kone, Johanne Marie født Gerhardt (11. november 1872 – 6.
februar 1915), der var uddannet sygeplejerske. Johanne var datter af
particulier Christian Gerhardt (25. april 1837) og Bodil Kirstine Frederiksen
(7. november 1842). Allerede den 30. oktober 1897 var Christoffer og Johanne
blevet gift i Stadager sogn på Falster. At boligvalget faldt på Charlottenlund,
skyldes formentlig at broderen I. P. Müller fra 1906 boede på Christiansholms
Parkvej 18 (De Engelske Rækkehuse) inden han i en periode flyttede til London.
Georg Müller boede fra 1913 på Jægersborg
Allé 71, fra 1916 på Christiansvej 35 og fra 1918 på Vilvordevej 47 i et nu nedrevet hus. Paul Müller flyttede
ind i Lundegaard på Bernstorffsvej 20 i 1920, hvor Sankt Lukas Stiftelsen blev
flyttet til i 1932 og hvor Villabyernes Blad kunne berette at den første
patient blev indlagt den 18. marts.
Både George og I.P. Müller stillede uden
held op til kommunevalget i 1933 for det upolitiske parti Sundhedslisten, hvor
det primære var at få ført kloakrørene længere ud i Øresund, så badelivet ikke
blev ødelagt af kloakvand.

Fra Villabyernes
Blad torsdag den 25. maj 1922.
I stueetagen på Ejgårdsvej 32 boede
Alexander Georg Isak Flittner (23. oktober 1875 – 26. november 1913) med sin
familie. Han var bogholder i børsmæglerfirmaet R. Henriques, men døde allerede
som 38-årig. Udlejer af ejendommen var også her Nicolaj William Petersen.

Johanne Marie
Müller.
Med Johanne Marie Müller fik
Christoffer fire børn, men desværre døde Johanne i barselssengen på
Frederiksberg Sygehus i en alder af kun 42 år, da nummer fem skulle fødes. Hun
begraves på Ordrup kirkegård. De fire efterladte børn hed Ellen Bodil Müller -
senere Brems (28. august 1898 – 12. december 1945), Max Poul Müller (5. maj
1902 – 14. december 1961), Ole Johannes Axel Müller (7. april 1906 – 17. januar
1992) og Mogens Frode Thorkild Müller (8. december 1908 – 4. oktober 1992).
Da Johanne dør, flytter Christoffer fra
Ejgårdsvej 32 til Schønbergsgade 15, st. på Frederiksberg, hvor Johannes ugifte
lillesøster, Anna Kirstine Gerhardt (15. marts 1876), flyttede ind for at tage
sig af børnene. Da den købte villa i Charlottenlund, bliver ledig i sommeren
1917, flytter Christoffer Frode Müller, Anna Kirstine Gerhardt og børnene
tilbage til Charlottenlund og ind på Gudrunsvej 22.

Ellen Bodils bryllup. Over brudeparret ses Ole,
Cathrine og Christoffer. Til
højre står Max og forrest står Mogens og Eva. Resten
er gommens familie.
Af
tingbogen fremgår det, at der - kun fem dage efter at Christoffer Frode Müller
havde erhvervet Villa Mowgli - var en justitsraad
Rasmus Müller (17. februar 1854 – 20. februar 1917), der - ligeledes fra
Nicolaj William Petersen - erhvervede Ejgårdsvej 36 lige overfor Villa Mowgli.
På trods af navne- og ejerskiftesammentræffet var denne Müller dog ikke i
familie med Christoffer Frode Müller. Rasmus Müller var justitsråd og fhv.
kolonibestyrer på Grønland, og søn af den færøsk embedsmand og politiker Hans Christopher
Müller (2. september 1818 – 25. december 1897). I 1906 udgav Rasmus Muller med
støtte fra Carlsberg Fonden bogen Vildtet og Jagten i Sydgrønland. Bogen rummer
et væld af gode iagttagelser og oplysninger om udbredelsen af og jagten på de
forskellige arter. Rasmus Müller døde umiddelbart efter købet af Ejgårdsvej 36.
I vejviseren fra 1918 var Ejgårdsvej 36 således ejet af hans dødsbo. Det er
ikke umuligt at Christoffer Frode Müller og Rasmus Müller har kendt hinanden
inden købene, idet de begge var kommet på Grønland.

Sofie Cathrine Hall.
Den 7. oktober 1919 - et par år efter at
Christoffer havde købt Gudrunsvej 22 - giftede han sig igen. Denne gang med Sofie Cathrine Hall,
med hvem han fik datteren Eva Marie Müller (3. juli 1920 – 1. april 2015).
Cathrine – som hun blev kaldt – blev født den 27. august 1880 i Vammen Sogn
udenfor Viborg og døde i Villa Mowgli den 30. november 1958 i en alder af 78
år. Der blev foretaget jordpåkastelse i Ordrup Kirke den 3. december 1958,
hvorefter hun blev kørt til Mariebjerg Krematorium i Gentofte. Cathrine var
gartner og indehaver af en blomsterbutik på Nygade 3. Da hun altid mødte
tidligt på Grønttorvet, fik hun tilnavnet Hall-tre. Inden hun blev gift med
Christoffer var hun fra 1895 tjenestetyende i Århus og fra 1906 tjenestepige på
Vesterbrogade 1 i København. Den 18. maj 1910 tager hun en tur til USA via
Ellis Island.
Eva Marie Müller giftede sig med ingeniør
Carl Frederik Spangenberg (23. oktober 1917) i Ordrup Kirke den 24. september
1939, og de boede med deres nyfødte søn, Janniche Spangenberg, i Villa Mowgli i
1939-1940. Ægteskabet med Carl blev gennemtrumfet, da han havde gjort Eva Marie
Müller gravid som 19-årig. De havde kendt hinanden fra de var 13 år gamle.
Efterfølgende fik de endnu et barn, Mette Spangenberg (10. maj 1944), som dog
først blev født efter at de var blevet skilt. Eva Marie Müller var noget af en krudtugle,
der helst roede kajak, stod på rulleskøjter og klatrede i træer, så da Eva
Marie Müller med gråd i stemmen måtte meddele hendes forældre at hun var blevet
gravid med vennen Carl udbrød hendes far: ”Næ, jeg troede aldrig at du ville
blive en pige”.

Familien i 1950 med
Mowgli i baggrunden. Bagerst ses Eva, Cathrine, Inge (kusine),
Christoffer,
Vilhelmine – og forrest Janniche, Mette og Pia som dåbsbarn.
Eva blev 23. december 1947 gift med arkitekt
Preben Bror Birkmand (25. juni 1906 – 13. august 1961) og skilt igen i 1961.
Med ham får hun Pia Birkmand (4. oktober 1949). Pia Birkmand boede i Mowgli
medens hun var 18-20 år gammel. Som det fremgår nedenfor, finder Eva i 1963
sammen med ”Niller” og bosatte sig senere i Tranebjerg på Samsø, hvor hun dør
94 år gammel.
Preben Bror Birkmands far, Laurits Valdemar
Birkmand (17. september 1873 – 25. september 1930) - gift med Vilhelmine, født
Hoff den 31. december 1877 - var også arkitekt og tegnede bl.a. Sankt Lukas
Stiftelsen og dennes kirke lige inden sin død. Byggeriet af Sankt Lukas
Stiftelsen blev færdiggjort af arkitekt Aage Rafn (21. april 1890 – 7. maj
1953), der så også var ham der forestod tilbygningen af Villa Mowgli i 1936.
Verden er lille. Aage Rafn var eksponent for nyklassicismen og var en af
arkitekterne bag Københavns Politigård. Han tegnede også Løvgården på Sønder
Fasanvej samt en række præmierede og fredede villaer i Gentofte kommune – bl.a.
Krathusvej 7, hvor han selv boede til sin død.

Eva Marie Birkmand
(Müller) i 1952.
Eva medvirkede den 22. marts 1998 i en
portrætudsendelse i radioen der hed Hjemme Hos, hvor hun bl.a. fortalte om sin
opvækst i Villa Mowgli, gymnasietiden på Ordrup Gymnasium, hendes læretid som
hattemager, hendes tre ægtefæller, hvordan hun tilskyndet af sin mor åbnede en
af landets først tøjgenbrugsbutikker med udstilling og kommisionssalg af kunst
og varer fra bl.a. Holmegaard Glasværk, hendes gård – Sysselgården - i Græsted
med salg af messing ting fra bl.a. Indien og hendes børn.
Christoffer Frode Müller, der yndede at
kalde sig selv for fabriksejer, var sammen med sin kompagnoner, Kaj Petersen
(20. september 1884 – 6. august 1948) og Jens Simonsen Jensen (17. juli 1879 -
1944), stifter og ejer af Dano Ingeniørforretning og Maskinfabrik Buddinge
Værk, der indtil 1950'erne bl.a. producerede centralkedler til opvarmning.
Selskabet blev stiftet den 2. januar 1912 og erhvervede i 1929 fabrikken i
Buddinge, hvortil de flyttede i 1930. Allerede i 1922 havde Jens Simonsen
Jensen dog forladt selskabet og etableret Simo Maskinfabrik ved J. S. Jensen
& Co.. Efter nogle magre opstarts år i en baggård
på Gammel Kongevej 39 i København tjente de efter sigende rigtig godt, og
Christoffer Frode Müller havde da også et stort pengeskab stående på gangen på
1. sal foran døren ind til soveværelset. I de gode tider var der over 400
ansatte på fabrikken på Vadgårdsvej i Søborg, der desværre gik konkurs i 1970 -
flere år efter at Christoffer Frode Müller p.g.a.
alder i 1947 havde trukket sig ud af forretningen. I 1920'erne fandt de to
stiftere en spændende niche - økologi og miljøbevidsthed - før nogen
overhovedet brugte de ord. Ideen var anlæg, som kunne forvandle
husholdningsskrald og kloakslam til gødning og frugtbar kompost til brug i
gartnerier og i landbruget.
”Det er samfundsøkonomisk forkert at
tilintetgøre værdier, som lader sig udnytte. Jorden hungrer efter de organiske
affaldsstoffer fra de produkter, der er bragt fra landet ind til byen”,
stod der således i et reklamehæfte fra Dano. I dag ved vi, at det blev
forbrændingsanlæggene, der løb med sejren, men endnu op i 60'erne var der stor
efterspørgsel efter Danos løsninger. Da Brasilien fik en ny hovedstad,
Brasilia, blev der således bygget et stort Dano-anlæg, i Danmark brugte 19
kommuner Dano-anlæg, og der blev eksporteret til blandt andet USA og New
Zealand, samt til en række europæiske lande. Da man begyndte at benytte plastik
og der kom plastik i husholdningsaffaldet, gik det galt. Man var ikke i stand
til at sortere det fra, hvorfor man ikke længere kunne omdanne
husholdningsaffaldet til ren gødning. Men mon ikke langsomt tanken om recycling vinder indpas igen når man sorterer og bliver i
stand til at frasortere plastikken.
Da Kaj Petersen døde i 1948, blev
virksomheden overdraget til en fond.
Ideen til at omdanne husholdningsaffald til
gødning og kompost kom fra broderen Georg Müller, der hjemme i haven på Vilvordevej havde slanger og tønder opstillet som
forsøgsanlæg.

Dano
Ingeniørforretning og Maskinfabrik Buddinge Værk (cirka 1938).
Den 20. februar 1948 skriver Christoffer
Frode Müller om sig selv i et brev:
Nej, Student er jeg sandelig ikke, det kan
man da vistnok se paa mig. Jeg kom i Stedet i Smede-
og Maskinlære paa Fabriken
Guldborg, Nykøbing Falster, straks efter min Konfirmation. Tog senere
Maskinisteksamens 1ste Del og sejlede efter Læretidens Udløb, saavel som almindelig Fyrbøder og som Maskinassistent med
gamle Fox I, der gik paa Grønland.
Arbejdede derefter som Maskinsvend paa forskellige store Værksteder i København om Sommeren,
og gik om Vinteren paa Teknikum, hvor jeg fik
Afgangseksamen i 1895. Var et Par Aar som Tegner paa Burmeister & Wains Fabriker og fik derefter i 1897
Plads som Maskinkonstruktør paa Fabriken
Strømmen i Randers, hvor jeg var til Nytaar 1899.
Jeg havde allerede fra min tidligste Ungdom
været meget stærkt interesseret i Sport, navnlig Roning, og vandt til Eks. min
første Kaproning i Nykøbing som 16-aarig Maskinlærling, og senere adskillige
andre Løb for Nykøbing Roklub. Da jeg derefter kom til København meldte jeg mig
ind i Københavns Roklub, for at komme til at ro sammen med mine Brødre, hvor vi
i flere Aar dannede det "berygtede
Müllerhold", og vandt vi i de følgende Aar alle
de fine Løb, hvori vi startede; denne Kariere blev altsaa afbrudt ved min Ansættelse i Randers, men der fik
jeg dog Lejlighed til at blive Drivfjedren ved
Starten af Randers Roklub, som i øvrigt havde 50 Aars Jubilæum nu sidste
Sommer, hvor jeg var Deltager i Festlighederne desangaaende.
Fra 1ste Januar 1899 var jeg antaget som
Maskiningeniør hos Smith, Mygind og Hüttemeyer her i København, indtil 1912,
hvor jeg gik i Kompagni med to andre Funktionærer fra S.M. & H. og fik
begyndt vort eget Foretagende, som Ingeniørforretning og Maskinfabriken
"Danø"; til at begynde med virkede vi (som Lejer) paa
Statsbanernes gamle Værksteder ved Gyldenløvsgade,
men i 1929 købte vi Buddinge Staalværk i Buddinge,
hvor Virksomheden udfoldede sig og stadig virker, for Tiden med indtil 200
Arbejdere og Funktionærer.
Med Hilsen Deres hengivne
Chr. Müller."
Familien Müller var socialt engageret og
ydede gerne en hjælpende hånd, hvis der var nogle, der havde behov for husly
eller lignende. Gennem tiderne har der således boet mange forskellige unge
studerende i Villa Mowgli.
Et andet eksempel på familiens sociale
engagement var, da sønnen Ole kom hjem fra et ophold på Hoptrup Højskole i
Sønderjylland, hvor han havde mødt den senere kordegn Hans Christian Kofoed
(17. april 1898 - 22. oktober 1952). Hans Christian ønskede at oprette en
skole, der efter et selvhjælpsprogram skulle bistå og hjælpe mennesker med
sociale problemer. Familien Müller tilbød deres hjælp og hjalp med at arrangere
en basar i Grundtvigs Hus, hvor de forestod en indsamling, og hvor Cathrine
solgte lagkager, der var fyldt med frugter fra Villa Mowgli’s mange frugttræer.
For at tiltrække folk til basaren havde familien engageret den senere
skuespiller Ebbe Rode (10. maj 1910 – 23. maj 1998), der læste op fra H.C.
Andersens eventyr. Det hele resulterede i 1928 i stiftelsen af den selvejende
institution Kofoeds Skole.
Et tredje eksempel på familiens sociale
engagement var da Christoffer Müller og hans kompagnon Kaj Petersen i 1924
investerede i patriciervillaen Ellekilde med tilliggende jorder, og i en lang
årrække stillede dette gratis til rådighed for Folke Jacobsen (15. august 1890
– 17. august 1971), så han kunne udfolde sin progressive pædagogik. Folke
Jacobsen boede selv i villaen og jorden blev benyttet til elevhuse, skolestuer
og undervisningen. Folke Jacobsen var en foregangsmand inden for dansk
ungdomsuddannelse og brugte en stor del af sit liv på at hjælpe unge til bedre
skolefærdigheder i dansk og regning. Folke Jacobsen ville nå de mange, som gik
ud af skolen efter 7. klasse uden eksamen. Det skulle ske gennem undervisning i
det, han døbte ”centralfag”, altså fag, hvor praktiske og boglige færdigheder
gik op i en højere enhed.
Ellekilde blev centrum for De unges
Kolonihaver, hvor der blev undervist i havebrug om sommeren, og sløjd om
vinteren. Havedyrkningen foregik efter Folke Jacobsens nøje anvisninger.
Matematik og Dansk var en integreret del af undervisningen – de unge skulle
udfærdige regnskaber og dyrkningsplaner, og viden om plantesorter og
dyrkningsmetoder blev tilegnet ved diktat. Arbejdet lagde grunden til
fremtidens praktiske ungdomsskoler. I 1927 gik der 150 elever på skolen og i
1932 gik der 280 elever. Mange lærere blev gennem tiden uddannet i
ungdomsarbejdet på stedet. For at bekæmpe arbejdsløsheden, investerede kommunen
senere i anlæggelsen af flere haver, og antallet af elever eksploderede til
omkring 4.000 under 2. Verdenskrig, hvor der i alt var 32 afdelinger fordelt i
Københavnsområdet. F.eks. er Haveforeningen Skovmosen
ved Ermelundsstien i udkanten af Jægersborg Dyrehave en udløber af projektet.

Folke Jacobsen
underviser i havebrug i 1927 på Ellekilde.
Stedet blev senere omdøbt til Den praktiske ungdomsskole
Ellekilde, og blev en statsanerkendt kost- og efterskole. Ved anlæggelsen af
Hørsholmvejen – den nuværende Hørsholmmotorvej – måtte skolen i 1952 flytte til
Torslunde ved Taastrup, hvor Folke Jacobsen drev kost- og efterskole helt frem
til 1969. Jordene omkring Ellekilde – der ikke lå langt fra Christoffer Müllers
fabrik i Buddinge - blev udstykket og frasolgt, og de fleste haver forsvandt -
på nær haverne i den nuværende og ovenfor nævnte haveforening Skovmosen. Selve villaen blev skånet for vejbyggeriet og
ligger stadig på Elledalen 6 i Kongens Lyngby.
Familiens sociale engagement stammede
utvivlsomt fra den kristne ballast som Christoffer Müller havde haft med fra
sit barndomshjem. Gennem tiden blev der således afholdt flere bibelmøder i
Villa Mowgli, hvor præsten, degnen og en række af familiens gode venner deltog. Efter bibelmøderne blev der under krigen syet finneveste
af avispapir med bomuldsstof for at hjælpe de mindrebemidlede.
Familien Müller donerede også mange penge
til velgørenhed. Ud over de årlige donationer til Kofoed Skole og Sankt Lukas
Stiftelsen har familien bl.a. finansieret kirkeklokkerne i Messiaskirken i
Charlottenlund. Den ene klokke blev for nogle år siden udskiftet og udstillet
ved siden af kirken. I 2014 blev den 1.000 kilo tunge kobberklokke desværre
stjålet og formentlig omsmeltet.
Ved menighedsrådsvalget i november 1922,
blev Christoffer Frode Müller indvalgt i Maglegaard
sogn, der dækkede Messiaskirken, der på dette tidspunkt blot var et mindre
menighedshus. Han var opstillet på Menighedssamfundets liste, der fik indvalgt
syv medlemmer mod De Kirkeligt Frisindede Vælgeres liste, der kun fik indvalgt
to medlemmer.
Kirken skulle oprindeligt havde heddet
Charlottenlund Kirke eller Gyldenlund Kirke, men det modsatte bl.a. Ordrup
Kirke sig. Allerede i 1917 kunne man i flere aviser læse om navnestriden.
Enkelte mente at Charlottenlund lød for tysk, og Gyldenlund kunne slet ikke
bruges, da en beværtning/traktørstedet også bar dette navn. Det skal måske
bemærkes, at kirken først blev indviet i oktober 1926.
Familien var aktiv med hjælpearbejdet i
kirken i mange år, hvor Sofie Cathrine Müller bl.a. stod som indsamlere til
Kirkens Korshærs Børnely 1932, og som i Villabyernes
Blad naturligvis blev omtalt som Fru Chr. Müller.

Annonce fra
Villabyernes Blad torsdag den 27. september 1923.
Det fortælles også, at der ofte blev afholdt
te selskaber i Villa Mowgli, hvor familiens venner gerne deltog. Blandt
deltagerne, der gæstede Villa Mowgli, kan bl.a. nævnes kammersangerinde Tenna
Kraft (16. maj 1885 – 16. marts 1954), der var sopran på Det kgl.
Teater og i mange år var dansk operas førende sangerinde; skuespillerinde
Petrine Sonne (25. november 1870 – 26. maj 1946), der havde
mange karakter- og filmroller, hvor hun udmærkede sig ved sit lune (medvirkede
i 67 stumfilm og 41 tonefilm); forfatterinde Edith Rode
(23. februar 1879 – 3. september 1956), der var gift med digteren Helge Rode
og moder til bl.a. Asta og Ebbe Rode; Holger Louis Nielsen og gymnastikpædagog
Jesper Peter Jespersen (18. juli 1883 – 5. september 1963), der begge var nære venner til I.P. Müller. Holger
Louis Nielsen var som omtalt fægter, skytte, atlet og lærer på bl.a. Ordrup
Latin- og Realskole (Ordrup Gymnasium), og udviklede håndboldspillet
og Holger Nielsen-Metoden til genoplivning af druknede. Holger Louis Nielsen var desuden dansk
deltager i svømning, fægtning, militær pistol og diskoskast ved de første
moderne Olympiske Lege i Athen i 1896 og skabte sammen med I.P. Müller
disciplinen kunstsvømning. Jesper Peter Jespersen er måske bedre kendt som
Kaptajn Jespersen. I.P. Müller, Christoffer Frode Müller og Kaptajn Jespersen
morede sig for øvrigt ofte med at spise om kap i brunkål og gule ærter i Villa
Mowgli. Det foregik i spisestuen, hvor væggene var prydet af
træudskæringer af de tolv apostles sidste nadver.

I.P. Müller og Holger Louis Nielsen.
Den 14. oktober 1936 købte Christoffer Frode
Müller den ubebyggede og unummererede nabogrund, den
nuværende Gudrunsvej 22A (matr.nr. 3eg af Ordrup by og sogn), af naboen Georg
Holm, således at haven blev på i alt 2.017m2.
Matr. nr. 3eg udgik således og blev inddraget under matr.
nr. 3eh.
Der var - til familien Timmols store moro - frit
udsyn fra Gudrunsvej 20 til Villa Mowgli’s store terrasse, hvor Christoffer
Frode Müller stærkt inspireret af broderen - I.P. Müller - nøgen gjorde
morgengymnastik inden han cyklede til fabrikken i Buddinge. Når han kom hjem,
kunne han sætte sig i den hedengangne stol, hvor armlænene blev afsluttet med
et par store bryster.
I 1920 anskaffer Christoffer Frode Müller
sig en telefon, der fik nummer OR 326. Allerede i starten af 1900-tallet
havde lejer Gotfred Jacobsen etableret ejendommens første telefon, der fik
nummer OR 329. Fastnet telefonforbindelse blev afmeldt i 2024, og eksisterede
således i over 100 år.

Fra Villabyernes
Blad den 18. oktober 1951.
Christoffer Frode Müller var - efter Nicolaj
William Petersen - Mowgli’s største bygherre, idet han i sin ejertid foretog
adskillige om- og tilbygninger. Christoffer Frode Müller har således stået for
udvidelsen af spisestuen og dagligstuen, samt for opførelsen af endeværelset på 1. sal, terrasserne på 1. og på 2. sal og
væksthuset/vinterhaven (eller orangeriet som det hed dengang) bag spisestuen.

Cathrine og
Christoffer Müller i 1943.
Væksthuset blev bygget til Cathrine, der ud
over køkkenhaven stod for indretningen og pasningen af den, efter købet af
nabogrunden i 1936, stort anlagte frugt- og blomsterhave med bede, små stier,
bænke, solur og flagstang. Kaninburene, der var placeret, hvor nr. 22A nu har
opstillet en carport, var børnenes domæne. Ud over kaniner blev der holdt duer,
der måtte lade livet når der kom fine gæster.
Endeværelset på 1. sal blev
indrettet til værelse for de tre yngste sønner, der fik en 3-mands køjeseng i
indhakket, medens hjørneværelset blev benyttet som værelse for datteren, Ellen
Bodil. Det har formentlig ikke været nemt som ny mor at overtage tre friske
drenge og døren til endeværelset var da også dengang
forsynet med lukkekrog på ydersiden.
I midterværelset
boede familiens husbestyrerinde, Christiane Marie Nielsen, der tjente familien
i mange år. Hun var blevet ansat i midten af 1920'erne og rejste først i 1962,
efter at Christoffer Frode Müller var flyttet ned på Sankt Lukas Stiftelsen, og
efter at hun i en kortere periode havde forsøgt at "tjene" alle de
unge beboere, der flyttede ind i villaen i starten af 1960'erne. Efter at
Christine Marie Nielsen var "rejst fra sin plads", besøgte hun dog
dagligt Christoffer Frode Müller på plejehjemmet. Den meget pligtopfyldende
husbestyrerinde opnåede at få Kong Christian X og dronning Alexandrines
fortjenstmedalje for 35 års tro tjeneste. Christiane Marie Nielsen kom fra
Aarhus, hvor hun blev født 5. februar 1894. Ud over husbestyrerinden var der
indtil 1939 yderligere to tjenestefolk i huset, så alt kunne være i sin
skønneste orden. I henholdsvis 1921 og 1930 er således på adressen registreret
en husassistent Kirstine Sørensen og en husassistent Marie Petersen. Derudover
arbejdede der tyende i Villa Mowgli, der ikke boede og overnattede i
ejendommen.

Mowgli i 1956 med stor have, flagstang, solur og hæk
mod vejen.
Christoffer Frode
Müller afgik som nævnt ved døden den 17. januar 1963 på Sankt
Lukas Stiftelsen, hvor han opholdt sig den sidste del af sit liv, og hvor
først broderen og sidenhen nevøen var forstandere. Der blev foretaget
jordpåkastelse i Helleruplund sogn, hvor Sankt Lukas Stiftelsen ligger den 22.
januar 1964, hvorefter han i lighed med sin afdøde hustru fire år før blev kørt
til Mariebjerg Krematorium i Gentofte. Det var nevøen, pastor Johannes Müller
der forstod bisættelsen. Christoffer Frode Müller blev 91 år gammel og havde
ved sin død været ejer af Villa Mowgli i over 46 år.

Christoffer Frode
Müller den 18. oktober 1956.
dagen før sin 85-års
fødselsdag.
Inden Christoffer Frode Müller kom på Sankt
Lukas Stiftelsen, blev han passet hjemme i spisestuen af hr. Nielsen – kaldet
Niller. Niller var sygeplejer på Rigshospitalet, hvor Christoffer Frode Müller
var indlagt i en periode. Familien besluttede at ansætte Niller, så han kunne
passe Christoffer Frode Müller hjemme i Villa Mowgli. Da Christoffer Frode
Müller insisterede på at benytte lokummet i gården, var Niller så uheldig at
han i forbindelse med at han bugserede Christoffer Frode Müller ud, fik en diskusprolaps.
Han blev tilbudt at blive rekonvalesceret i familien Müllers sommerhus i
Asserbo/Tisvilde sammen med datteren Eva, der var blevet skilt igen et par år
forinden. Niller og Eva fandt herefter sammen og var gift i 39 år.
Den 7. november 1963 overtog sønnen,
ingeniør Mogens Frode Thorkild Müller (8. december 1908 – 4. oktober 1992),
ejendommen efter faderen via et arveudlægsskøde til en værdi på 195.000 kr.

Christoffer Frode
Müller og Mogens Frode Thorkild
Müller på besøg på
Gudrunsvej 16.
Mogens var i juni 1935 blevet gift med
Agnete Fog (7. juli 1913), der også var vokset op på Gudrunsvej, hvor hendes
far, karetmager Svend Johannes Fog (20. april 1887) og mor, Astrid Louise Agnes
født Klein (8. november 1886), i 1918 havde købt villaen på Gudrunsvej 16.
Mogens og Agnete havde således kendt hinanden fra barnsben, hvor de havde leget
sammen. Mogens Müller flyttede fra Villa Mowgli og lejede sig ind hos fru
Astrid Louise Agnes Fog og Svend Johannes Fog.

Mogens og Agnete
foran Messiaskirken.
Agnete og Mogens Müller boede ikke selv i Villa
Mowgli i den periode, men lejede i cirka ti år villaen ud til unge studerende,
der indrettede villaen efter datidens farverige stil. Gudrunsvej 22A blev
frastykket igen og den 30. november 1963 skødet til cand.psych. Inge Kjerulf Lecker (15. juli 1926 – 27. juli 1984) og revisor Samuel Lecker (2. februar 1927 – 18. januar 2017) hver med
halvdelen som de pågældendes særeje. Samtidig blev anden salen i Villa Mowgli
istandsat og indrettet til boligformål.
Allerede en måned efter Christoffer Frode
Müllers død og inden udstykningen af Gudrunsvej 22A havde man forsøgt at opdele
grunden i tre selvstændige matrikler. For at opfylde reglen om en byggeprocent
på 25 var det hensigten at nedrive garagen og udestuen. Dette synes
kommunalbestyrelsen dog var lidt for kreativt og de afslog og tillod kun
udstykning af Gudrunsvej 22A.

Forslag til
udstykning i tre selvstændige matrikler i 1963.
Familien Lecker
boede til leje hos Inges mor på Gudrunsvej 12, men ville gerne have deres eget
hus og købte derfor den oprindelig 908m2 store grund for 117.400 kr. Den 14.
december 1965 købte Inge Kjerulf Lecker og Samuel Lecker yderligere 10m2, men da byggeprocenten på Gudrunsvej
22B hermed blev for stor, blev der udstykket 82m2 som et nyt matr.nr. 3oo af
Ordrup by og sogn, der blev tillagt grunden Gudrunsvej 22B. I 1966 byggede
familien Lecker et Johan Christensen Hus på den nu
836m2 store grund, der fik matr.nr. 3om af Ordrup by og sogn. Efter Inge
Kjerulf Leckers død købte datteren, Lene Lecker (28. november 1959), i december 1990 halvdelen af
Gudrunsvej 22A som særeje for 500.000 kr., og faderen flyttede til Hellerup.
Efter faderens død i 2017 overtog Lene Lecker den
anden halvdel af ejendommen.
Den 4. juli 1973 sælger Mogens Müller Villa
Mowgli til cand.mag. og adjunkt Susanne Pedersen født Rostrup (30. juli 1946 –
24. maj 2007) og cand.mag. og adjunkt Frank Gerdner
Pedersen (22. december 1943 – 8. september 2025). Handelsprisen var da 430.000
kr.
Helge Schandorff, der boede til leje, ville
gerne have købt villaen, men havde ikke råd. Villaen var efter de mange års
udlejning mærket af de unge studerende, der havde beboet ejendommen i perioden
omkring de glade 60'ere. Ejendommen blev af de nye ejere sat i stand igen og
haven blev reetableret.
Susanne Pedersen var lærer på Øregård
Gymnasium, medens Frank Gerdner Pedersen i perioden
1972 til 1991 var samfundsfagslærer på Statsgymnasiet Schneekloths Skole i
Brøndby, hvor han i perioder også var lærerrådsformand. Da skolen skulle lukke
i 1992, kom Frank Gerdner Pedersen i 1991 til
Gentofte HF-kursus.

Frank Gerdner Pedersen i samtale med nogle elever.
Frank Gerdner
Pedersen var i 1984 medforfatter til bogen EDB i Gymnasiet, hvor der medfulgte
en på det tidspunkt topmoderne diskette med en række fagprogrammer. I 1986
udgav ægteparret sammen bogen Job som tekniker, der indførte de håbefulde
elever i teknikeruddannelserne. I tidens ånd behandlede bogen også
kønsrolleproblematikken og fremtidsmulighederne indenfor faget.

EDB i Gymnasiet
udgivet på forlaget Systime i 1984.
Frank Gerdner
Pedersen blev født i Sankt Markus sogn på Frederiksberg og levede sin første
tid på anden sal på Store Kongensgade 57A. Da han studerede til cand.mag. boede
han på Horsensgade i København, og gik inden da på Ordrup Gymnasium, hvor han
blev student i 1963. Frank Gerdner Pedersen var den
første på Ordrup Gymnasium til at søge Ungdommens Uddannelsesfond – datidens
SU. Det passede ikke rektor at elever på skolen skulle have offentlig
forsørgelse, hvorfor hans smed ansøgningen ud og den håbefulde elev måtte klare
sig på andre måder.
De to nye ejere af Villa Mowgli fik aldrig
nogle børn, og flyttede i 1982 videre til Ordrupvej 148, st., hvor de boede
indtil 1997. Derefter flyttede de til Smakkegårdsvej 41C i Gentofte, og senere
i 2011 – efter Susanne Pedersens død - flyttede Frank Gerdner
Pedersen til Jægersborg allé 35, 2., hvor han boede indtil sin død. De blev
bisat fra henholdsvis Jægersborg Kirke og Ordrup Kirke.


Susanne Pedersen i
1978 og Frank Gerdner Pedersen i 1996.
Den 21. april 1982 overtog ægteparret
sygehjælper Ewa-Dorota Eskelund (15. april 1948) og arkivar Knud Erik Andersen
ejendommen for 830.000 kr. Ewa-Dorota blev født i Sluzewo
i Polen, hvor hendes fødenavn var Ewa-Dorota Osielska.
Hun kom til Danmark i 1973 og giftede sig samme år. Hun blev dansk statsborger
den 19. juni 1975, og var på det tidspunkt bosiddende i Høje-Taastrup.
Den 25. august 1988 sælger Ewa-Dorota
Eskelund, som den juridiske ejer, Villa Mowgli til henholdsvis ApS SPKR 4 nr.
1822 under navneændring til Bellevue Finans ApS og til ApS KUBU 8 nr. 3118
under navneændring til Hovedstadens Boxcenter ApS.
Salget sker til i alt 1.845.000 kr. med 50% ejerskab til hvert selskab. Salget
sker med henblik på nedennævnte opdeling af Villa Mowgli i to villalejligheder.
Den 26. marts 1991 tilbageskøder Ewa-Dorota
imidlertid Villa Mowgli fra de to selskaber til samme pris som hun solgte til
med henblik på at sælge ejendommen videre til Knud Erik Andersen. Ejerskabet af
Villa Mowgli overgår således den 28. maj 1991 til Knud Erik Andersen for den
nette sum af 1.500.000 kr., og planen var at sælge Villa Mowgli efter et år. På
det tidspunkt er Knud Erik Andersen flyttet til Skovagervej 6 i Charlottenlund
og Villa Mowgli bliver delvist udlejet til Dansk Flygtningehjælp.
I forbindelse med forsøget på at opdele
Villa Mowgli i to lejligheder, blev 2. sal udbygget med nyt tag og endnu en
karnap. Ifølge planen skulle der være en lejlighed i stueetagen og en på 1. og
2. sal. Opdelingen blev godkendt af kommunen på betingelse af at visse brand- og parkeringsmæssige krav blev opfyldt.
Opdelingen blev imidlertid aldrig til noget, idet ejendommens friværdi var
blevet belånt og provenuet investeret i Hafnia B-aktier, der desværre brat
mistede deres værdi, da Forsikringskoncernen Hafnia kollapsede i august 1992.
Brødrene arkitekt Thomas Hagedorn og snedkermester Svend Åge Hagedorn, der
havde forestået den planlagte opdeling og udbygningen af 2. sal, måtte se langt
efter deres penge. Villa Mowgli blev af UNI BANKIER A/S sat til salg, og ejerne
måtte senere flytte til Barsehøj 9 i Hellerup som
Nykredit kort inden have overtaget fra den forrige ejer på grund af den
økonomiske nedtur som følge af Kartoffelkuren. Krisen kradsede i denne periode.
UNI BANKIER A/S var et binavn til Nordea Bank i perioden 10. oktober 1989 til
1. november 2001.
Gennem cirka to år lå ejendommen til salg og
blev som nævnt udlejet til Dansk Flygtningehjælp, der indlogerede en afghansk
dommer Sultan Mahmood Sahebzadah og hans familie.
Sultan Mahmood Sahebzadah flyttede senere til Brøndby
og fik dansk indfødsret den 19. april 2001. Han var født i 1929.

Salgsannonce fra
Ejendomsmægler Sv. Jacobsen i 1993.
Den 1. juli 1993 overtog Helle Birk Pedersen
og Jens Kristian Kjær Krogsgaard ejendommen for en kontantværdi på 1.311.000 kr.
Efter dels at have været ubeboet og dels at have været udlejet til flygtninge,
var Villa Mowgli i en forfærdelig stand. Flere ruder var smadrede og
terrassedøren på 1. sal hang og dinglede i ét løst hængsel, gaskomfuret i
køkkenet var forsøgt opvarmet med brænde i ovnen, gulvene var ødelagte, og der
var begyndende fugtskader flere steder. Fundamentalt var huset dog i en god og
solid stand og manglede derfor "kun" en masse kærlige hænder.
Før købet boede Helle Birk Krogsgaard og
Jens Kristian Kjær Krogsgaard i en lejlighed på Lindegårdsvej 28A, hvor de
havde boet siden 1988. De små butikker havde også på dette tidspunkt svært ved
at klare sig, og lejligheden og nabolejligheden var netop blevet ombygget fra
butikker, der i fordums tid havde huset bl.a. Charlottenlund-Ordrup
Blikkenslagerforretning og Annettegaardens Mejeri. I
dag er de eneste spor af de to butikker en svag forskel i murstenenes farver på
facaden.

Lindegårdsvej 28A og B i 1939, hvor Anettegaardes Mejeri og
Charlottenlund-Ordrup Blikkenslagerforretning engang
havde til huse.
Helle blev født den 3. december 1966 og
kommer oprindeligt fra Digevej 4 og Birgittevej 14 i
Næstved, hvor hun efter at have afsluttet sin studentereksamen på Herlufsholm
Kostskole, flyttede til København for at læse HA og cand.merc. Senere blev
Helle erhvervskunderådgiver i Forstædernes Bank A/S (nu Nykredit), hvor hun sideløbende
blev HD i Afsætning. Senere læste Helle ABD og tog desuden uddannelser på
INSEAD i Fontainebleau.
Helle var i mange år økonomidirektør og CFO
på Statens Serum Institut, samt CEO i SSI Diagnostica
A/S.
Jens Kristian blev født i Jægersborg den 15.
juni 1962, boede som barn i Ibstrupparken på det der
inden husnummerændringen hed Smakkegårdsvej 123 i Gentofte (nu nummer 163),
voksede senere op på Søndervej 29 i Virum og aftjente, efter studentereksamen
fra Lyngby Statsskole, sin værnepligt ved Den Kongelige Livgarde. Efterfølgende
blev han bankelev i Forstædernes Bank A/S (nu Nykredit), hvor han gennemførte
bankskolerne, samt blev HD i dels Finansiering og Kreditvæsen og dels i
Regnskabsvæsen og Økonomistyring. Senere blev kundskaberne suppleret med bl.a.
en uddannelse fra IMD i Lausanne. Da han forlod banken i 1992, havde han været
bankelev, bankassistent, fuldmægtig, kontorchef, souschef, områdesouschef,
erhvervskundechef og senest chef for bankens cash management afdeling, som han
opbyggede.

Familiens
våbenskjold.
Jens Kristian var i mange år direktør for treasury, koncernskat, facility
management og Invester Relations i ROCKWOOL International A/S (nu ROCKWOOL
A/S), og opbyggede koncernens interne bank, ligesom han var med til at opkøbe
mange af koncernens fabrikker i bl.a. Østeuropa. Jens Kristian har i mere end
25 år været domsmand og nævning i Gentofte og Lyngby Ret, samt i Østre
Landsret, og har endvidere været direktør i ROCKWOOL
Investment A/S og siddet i bestyrelsen i bl.a. Forenede Gruppeliv og RockDelta A/S.
I dag arbejder Jens Kristian på deltid som
direktør og family officer i et familiekontor, medens
Helle har nydt livet med sin Trakehner hest Sirius,
som desværre måtte aflives i 2023 på grund af en alvorlig benskade.
Senere kom endnu en hest til, men denne døde pludseligt af Baron Gruff-syge – bedre kendt som Taroksyge, opkaldt efter
travhesten Tarok, der også blev ramt af denne sygdom. Men så fik Helle tid til
at tage en uddannelse som sommelier, og være mentor på DTU. I september 2025
kom der så en ny hest til. En smuk sort vallak af racen dansk varmblod med
navnet Mandela. Alle gode gange tre.
Familiens våbenskjold bærer den latinske
tekst Porrige Manum, der
både kan betyde “ræk hånden frem” og “ræk hånden ud”. To vigtige egenskaber. I
heraldisk og symbolsk forstand udtrykker det venlighed, hjælpsomhed og
initiativ - en opfordring til at tage det første skridt mod kontakt, samarbejde
eller støtte. Mottoet betoner ikke blot viljen til at hjælpe, men også det
etiske ansvar for at række hånden ud før andre, for at skabe og styrke
fællesskabet. Det markerer, at åbenhed, generøsitet og aktiv social handling er
kerneværdier for bæreren af skjoldet. Ravnen symboliserer ifølge nordisk
tradition visdom, klogskab, beskyttelse, budbringer og årvågenhed. I nordisk
tradition forbindes ravne især med Odin, hvor hans to ravne, Hugin (“tanken”)
og Munin (“mindet/hukommelsen”), flyver ud over verden og bringer visdom og
nyheder tilbage til ham. Grenen understreger ro og forankring, mens ravnens
placering peger på opmærksomhed mod fællesskabets kerne. Roserne udtrykker
retfærdighed, skønhed og tapperhed. Den karakteristiske opstilling symboliserer
balance, enhed og tradition, mens rød står for styrke og kærlighed.

Sirius i 2019.
Helle og Jens Kristian mødte hinanden i
studenterforeningen i København, og efter at have kendt hinanden i godt syv år
giftede de sig den 11. maj 1996 i Herlufsholm Kirke. Den 15. maj 1997 fik de
sønnen, Albert Christian Birk Krogsgaard, og den 12. august 2000 kom datteren,
Leonora Christine Birk Krogsgaard, til verden.

Familien Krogsgaard
fra 2007.

Syngepiger, Tina
Grunwald og Beate Hastrup, fra Bakkens Hvile på
besøg i Villa Mowgli
i anledningen af 100-års fødselsdagen i 1998.
De første villaer i moderne forstand blev i
Danmark bygget på Frederiksberg i 1860’erne. Senere blev der også opført
villaer i bl.a. Ordrup og Charlottenlund. Det var dengang på mode, at villaerne
blev opført i alle mulige stilarter og blandinger heraf. Villaerne blev dog
fortrinsvis opført i italiensk stil, men også i schweizisk, engelsk og gotisk
stil. Perioden var også påvirket af historicismen eller eklekticisme, der var
en fællesbetegnelse for en europæisk arkitekturstrømning, der efterlignede tidligere
stilarter. I Europa blomstrede stilarten i perioden cirka 1820-1900 og i
Danmark især i perioden 1850-1910 og i kirkearkitektur helt frem til omkring
1940. Samtlige klassiske stilarter blev blandet efter forgodtbefindende, en
slags katalog-arkitektur. På grund af de nye byggetekniske muligheder med
støbejern og cement kunne stort set alt lade sig gøre.
I slutningen af 1800-tallet, hvor Villa
Mowgli blev bygget, kom der med nationalromantikken en reaktion på denne
stilforvirring, og der kom igen en interesse for traditionel dansk byggeskik.
Villa Mowgli repræsenterer således en blanding af både italiensk, historicisme
og dansk arkitektur, der var særegen for denne overgangsperiode.
Det italienske ses på palæstilen, der var
præget af hvide villaer med tage af sort glaseret tegl og ofte et knækket
mansardtag, der gav mere plads i tagetagen og var opkaldt efter den franske
arkitekt Francois Mansart (23. januar 1598 – 23.
september 1666), der var en af klassicismens hovedskikkelser. Disse villaer
blev også kaldt patriciervillaer og var kendetegnet ved, at der var højt til
loftet, ligesom køkkenerne var forholdsvis store med tilhørende anretterværelser.
En patricier var i oldtidens Rom et medlem af en af de fornemme adelsslægter -
modsat plebejer.
Der var også en stor grad af håndværksmæssig
forarbejdning og finish i denne villatype. Panelerne var høje, der var
fyldningsdøre, stuk og brede, profilerede fodlister og gerigter. Udenfor var
pyntet med søjler, skjolde, stukkatur med laurbær eller muslingeskaller, og
vinduerne var ofte romansk rundbuede.
Som det ses af de oprindelige
arkitekt-tegninger nedenfor, blev Villa Mowgli opført i netop denne palæstil.
Villaen fremstod oprindeligt i lysegrå med grå søjler og med hvide buer rundt
om de grågrønne vinduer og døre.

Villa Mowgli blev opført
af murermester Nicolaj William Petersen efter ansøgning til Gentofte og Ordrup
Sogns Bygningskommission af den 29. september 1898 og efter kommunens
approbation af den 19. oktober 1898. Af ansøgning og svar samt af de
oprindelige tegninger fremgår, at det blev pålagt Nicolaj William Petersen, at
de skillerum, der skulle danne underlag for bjælkerne til 2. sal, skulle
opføres af 9" sten. Ellers havde Bygningsinspektoratet, der svarede på
ansøgningen, ingen kommentarer.

Villaen blev herefter opført af mursten med
solide bærende træbjælker mellem kælder, stue, 1. og 2. sal. Taget var af sort
glaseret tegl og skifer og med to skorstene til brug for de mange brændeovne,
der var placeret rundt om i de mange værelser.
På et enkelt område stemmer den
færdigbyggede villa ikke overens med de oprindelige tegninger, idet
verandatrappen ifølge et billede fra 1898-99 vendte ud mod banen. Nedenfor ses
den oprindelige tegning, hvor trappen er vendt ud mod den nordre side. Om hovedtrappen
er fra 1898, eller om den først er vendt senere, vides ikke. Det er dog
sandsynligt at den er ændret i forbindelse med opførelsen af terrassen i 1921,
idet der er benyttet de samme byggematerialer.

Bemærk desuden terrassen på 1. sal med et
gammelt støbejerns stakit, og med udgang fra det nuværende soveværelse.
Da villaen stod færdig, var der hverken
rindende vand eller strøm indlagt i huset. Den eneste ”luksus” var bygassen,
der blev benyttet til oplysning sammen med stearinlys og petroleumslamper. I
gangen i stueetagen sad indtil 2005 en gammel gashane, der forsynede datidens
lamper med gas. Gashanen var funktionsdygtigt indtil 1970’erne, hvor
gastilførslen måtte afbrydes pga. omstillingen fra bygas til naturgas. Dette
skyldes at naturgas i modsætning til bygas er mere tør. Det ville medføre, at
de gamle samlinger i de gamle gasrør, der var lavet af hestehår og bly, ville
blive utætte, hvorfor de gamle gasrør blev udskiftet med tidssvarende
støbejernsrør.
Det
var Strandvej Gasværk der forsynede villaen med gas. Strandvej Gasværk blev
anlagt ved Tuborg Havn af Det Danske Gaskompagni i 1892-93 og sat i drift den
21. juni 1893. Fra 1899 var der gasoplysning på områdets private veje, men kun
indtil midnat.
De første fire til fem år måtte beboerne i
Villa Mowgli hente vand fra brønde. Først i 1902-1903 blev det muligt at få
vand fra det nye vandværk i Gentofte, der var blevet indviet i 1900 (se endvidere nedenfor).
Som det ses af tegningen nedenfor, var
husets lokum placeret ude i gården til højre, hvortil der - ligesom i dag - var
adgang via en trappe fra gangen i stueetagen. Lokummet, der efter sigende var
et sødt lille rum med et udskåret hjerte i døren, blev først fjernet i midten
af 1960’erne. Da havde det dog ikke været i brug i flere år.
Stueetagen var indrettet
med et herreværelse til venstre for indgangen, en dagligstue for enden ad
gangen og en spisestue med udgang til en veranda.
Mellem gangen og spisestuen
lå køkkenet, der dengang var indrettet med et anretterværelse ind til
spisestuen og et gammeldags komfur ved skorstenen.
Fra gangen var der en trappe, der førte op
til første sal, og en, der førte ned til kælderen. Der var dengang også åbent
ned til kælderen, idet kælderdøren først blev opsat i 1970’erne. Gangen var mod
kældertrappen beklædt med brædder, ligesom der - som i resten af huset - var
bræddegulv. Brædderne på væggene blev i 1993-94 beklædt med gipsplader. I det
nuværende garderobeskab i stueetagen var der oprindeligt indrettet
forrådskammer.
Over alt i villaen var døre og karme
oprindeligt malet mat grønne, medens væggene i stuerne var beklædt med lodrette
lister for cirka hver halve meter og sølvgråt, grønt og rødt tapet med
forskellige mønstre. Lofterne havde naturligvis stuk og var kalket hvide.
Rester af tapetet blev fundet da rummet under den gamle veranda blev udgravet i
1996.
På første sal var værelserne placeret.
Lige for enden af
trappen - i det nuværende badeværelse - lå
pigeværelset. Det største værelse, der havde udgang til den ikke længere
eksisterende altan, var gæsteværelset eller altanstuen, som rummet også blev
kaldt.
På
modsatte side af gangen lå de to soveværelser, der havde en dør imellem sig.
For enden af gangen lå to garderobeværelser, hvortil
der var adgang fra henholdsvis altanstuen og det ene soveværelse. Fra det andet
soveværelse var der adgang til anden sal via et lille garderobeværelse, der lå
over hovedindgangen. Væggen på gangen langs trappen op til anden sal var
beklædt med brædder ligesom på stueetagen.
Alle
værelserne havde brændeovn, hvilket også må havde været nødvendigt, idet alle
vinduerne i huset kun var forsynet med enkeltlags glas. I modsætning til i
stuerne havde værelserne kun kalkede vægge, men havde dog stuk i alle lofterne.
Man
havde som det ses ingen badeværelser dengang, og den daglige vask foregik på
værelserne, hvortil der dagligt blev bragt varmt vand.
Anden
salen blev oprindeligt kun brugt som tørrerum. Det var nemlig dengang nødvendigt med et indvendigt
tørrerum, idet sod- og røgudviklingen fra de gamle damplokomotiver var
ødelæggende for hvidvaskede lagner.
I
kælderen var vaskerummet placeret under køkkenet, og under spisestuen var
rullekælderen beliggende. Fra vaskerummet var der også dengang en trappe op til
gården, og i det modsatte hjørne af rummet stod gruekedlen.
På
den anden side af gangen lå tre rum. Set fra trappen
var der et viktualierum, en vinkælder og et brændselsrum. Til arealet under
verandaen var der kun adgang fra haven, og dette rum, der kun var halvt
udgravet, blev brugt til opmagasinering af haveredskaber og frugter m.v.
Oprindelig lå Villa Mowgli i første række
mod vandet. Øst for huset, på den anden side af banen mod kysten, var der kun
skov og strand, og skråt i retningen mod kysten lå kun Travbanen, der var
blevet bygget i år 1891.
Senere er der i området mod vandet blevet
bygget en række huse - så nu må man nøjes med at høre skibenes tågehorn, når
der er dårligt sigt.
Der er i slutningen af 1800-tallet blevet
bygget mindst to andre villaer, der er stort set magen til ejendommen på
Gudrunsvej 22B. Villaerne er alle tegnet af arkitekt Viggo Woldbye
og er beliggende i Gentofte Kommune.
Viggo Woldbye blev
født i Aarhus den 18. oktober 1868 og har bl.a. opført Sakramentskirken
med den tilhørende Sankt Josephs Skole (nu Sankt Ansgars Skole) på Nørrebrogade
27 i København, ligesom han sad i en rækker bestyrelser i selskaber indenfor
ejendomme og byggeri.
Ud over villaen på Gudrunsvej ligger der en
på Ejgårdsvej 28 (matr.nr. 3ey Ordrup) og en på den nuværende Prinsesse
Alexandrines Allé 9 (matr.nr. 2bu Bernstorff). Villaerne på Ejgårdsvej
og Gudrunsvej er opført af murermester Nicolaj William Petersen, medens villaen
på Prs. Alexandrines Allé er opført af murermester O. Larsen.
Villaerne adskiller sig fra hverandre ved
forskellige trappeopgange, vinduesplaceringer, udsmykning og rumopdelinger, men
det er tydeligt, at det er samme arkitekt, der har stået bag.
Søndag den 14. august 2005 kl. 02:30 om
morgenen brændte tvillingehuset på Ejgårdsvej 28. Første og anden sal udbrændte
totalt og resten fik alvorlige vandskader. Murene stod dog intakte.
Indehaveren, Hans Jørgen Voigt (9. juli 1916 - 14. august 2005), døde af
røgforgiftning. Hans Jørgen Voigt, der oprindeligt kom fra Skovshoved, havde
været musikanmelder ved Berlingske Tidende, lærer i retorik og havde ejet
ejendommen siden den 7. juni 1941.
Det var et trist syn at se den smukke gamle
villa indhyllet i høje flammer, medens røgdykkere forgæves forsøgte at redde
beboeren. Villaen blev senere overtaget fra dødsboet af Stig Rosenkranz Pedersen og genopført i den nuværende
gennemrenoverede version.
Midlerne fra boet efter Hans Jørgen Voigt
overgik i 2007 til Fonden Redaktør Hans Voigts mindelegat, der støtter mandlige
sangere i begyndelsen af deres karriere.
Ansøgning om opførelse af villaen på
Gudrunsvej 22 er som tidligere anført dateret den 29. september 1898 og er
formentlig således den senest opførte villa, idet ansøgning om opførelse af de
to andre villaer daterer sig til henholdsvis den 28. marts 1897 og den 12.
august 1898. Det vil derfor være nærliggende at tro, at de to første villaer
blot var forstudier til villaen på Gudrunsvej - alle gode gange tre !
Det menes, at der i Helsingør også skulle
have ligget en villa magen til de tre villaer i Gentofte Kommune. Det fortælles
imidlertid, at denne villa er nedrevet igen.
I
2006 blev Villa Mowgli erklæret bevaringsværdigt, hvilket medførte at huset
ikke fremover må ændre udvendig karakter uden kommunens godkendelse. Dette
gælder specielt farver, døre og vinduer. Der medfulgte desværre ingen
skattelettelser eller lignende. Endvidere ændrede
kommunen ved samme lejlighed lokalplanen så kun ejendomme med grunde på over
1.200 kvadratmeter må opdeles i to boliger. Så nu mangler der 19 kvadratmeter,
hvis der ikke kan opnås dispensation ved en eventuel senere opdeling.
Navnet Mowgli stammer fra den indisk fødte engelske
forfatter Rudyard Kiplings fortællinger om de forskellige dyr i junglen. I Den
ny Junglebog blev historierne om drengen Mowgli, der levede blandt ulve,
særligt yndet. Den ny Junglebog udkom på engelsk i 1895 og på dansk i 1898.
Navnet Villa Mowgli optræder første gang i
Ordrup Sogns Hus-Register i 1918 - året efter at Christoffer Frode Müller havde
erhvervet ejendommen. Men allerede den 1. oktober 1917 ses navnet i kommunens skatteliste.
Det var Christoffer Frode Müllers ældste
datter, Ellen Bodil Müller, der - medens hun studerede medicin - fandt på at
opkalde villaen efter drengen Mowgli. Hun var meget betaget af historierne i
Junglebogen og kom selv - ligesom villaen og den danske udgave af Junglebogen -
til verden i 1898.
Navneskiltet på villaens sydside er lavet på
Christoffer Frode Müllers fabrik.
I perioden 1963-66 boede der en ung
musikstuderende, Klara Helene Friis (1945), i Villa Mowgli. Hun blev i 1966
gift med den 30 år ældre Poul Johan Preben-Hansen, og de købte sammen en villa
på Enighedsvej 23B i Charlottenlund. Denne villa blev senere opkaldt efter
Villa Mowgli og hedder i dag Lille Mowgli.
Familien Müller havde også et sommerhus i
Asserbo/Tisvilde. Dette hus hed Mowgli II, og blev nedrevet i det år
Christoffer Frode Müller døde.
Oprindelig er området - som tidligere
beskrevet - udstykket fra Eigaard, der ved
Udskiftningen havde et areal på 65½ tdr. land. I 1888 kaldtes vejen til gården
for Eigaardsgade, men ændrede i 1915 navn til
Ejgårdsvej, der nu ender ud for Villa Mowgli. Eigaard
har sit navn efter Eiet, der var den kratskov, der af
Bernstorff i 1776 blev tillagt Eigaards jord. Ordet Eiet betyder et særlig ejet område eller indelukket, men
nogle hævder at gårdens navn oprindeligt kommer fra gravhøjen Egehøj – ”Eggaard”. Men begge
forklaringer kan i princippet være korrekte.
En anekdote fortæller, at
Højesteretssagfører Peter Adler Alberti, der på dette tidspunkt ejede Eigaards jorder, en dag mødte sin kollega, overretssagfører
Carl Theobald Valdemar Friis, der deltog i udstykningen af arealerne mellem
Lindegårdsvej og den senere Fredensvej. Alberti
skulle da have sagt: "Nu har De jo anlagt Valdemarsvej
og givet den navn efter Dem selv. Jeg kunne tænke mig at opkalde tre af vejene
på Eigaard efter deres døtre". Idéen blev
virkeliggjort, og Carl Theobald Valdemar Friis, der i 1896 købte dele af
området, gav tre af vejene navnene Sigridsvej,
Valborgsvej og Gudrunsvej efter sine tre døtre.

Billede fra 1919 af
Gudrunsvej med Villa Mowgli i baggrunden. Børnene er
Agnete Fog og hendes
fætter Henrik. Agnete Fog boede Gudrunsvej 16.
Gudrun Elisabeth Julie Friis (18. oktober 1889 - 1937) – gift med
Hans Eskild (15. september 1888 – 28. maj 1927) og efter dennes død, med Anders
Peter Hjortsø (16. august 1885 – 3. september 1961) - lagde således i 1898 navn
til Gudrunsvej, der oprindelig kun gik mellem den nuværende Engmosevej og den
nuværende Henrik Hertz Vej. Engmosevej hed fra 1896 til 1928 Knudsvej og Henrik Hertz Vej hed fra 1900 til 1921 Sigridsvej opkaldt efter datteren Sigrid Antonie Friis (19.
juli 1891-1965) – senere gift med Johan Frands Ullstad
(20. april 1892 – 17. maj 1979).
Fra 1921 blev navnet Gudrunsvej benyttet helt til Fredensvej, der fra 1900 til 1902 mellem Ejgårdsvej og den
daværende Knudsvej (Engmosevej) hed Valborgsvej efter
datteren Valborg Vilhelmine Kirstine Friis (8. maj 1887) – senere gift med Axel
Einar Schierbech (31. maj 1874 – 26. april 1946).
Hvilken Knud, der lagde navn til Knudsvej
vides ikke, og ingen i hverken familien Alberti eller familien Friis bærer
dette navn.

Skellene mellem Eigaards, Skjoldgaards og
Lindegaards jorde.
Vejstykket mellem den oprindelige Gudrunsvej
(fra Engmosevej) og Fredensvej (hvor Norasvej på det tidspunkt gik til) var allerede blevet
anlagt i 1900 og hed indtil navneændringen i 1921, Eriksvej.
Eriksvej var oprindeligt blevet udstykket fra Skjoldgaards jorder og havde derfor ikke fået navn efter
Gudrun. Af ovenstående billede ses skellinjen midt på den nuværende Gudrunsvej,
samt placeringen af Eigaard og Lindgaard. Skellinjen
forklarer hvorfor Gudrunsvej 10 og Gudrunsvej 12 har næsten trekantede grundstykker.

Kort fra Københavns
Vejviser 1912.
I forbindelse med navneændringen i 1921 blev
der lukket af for kørende trafik mellem Fredensvej og
Gyldenlundsvej, og viadukten under togsporene blev etableret. Ved samme
lejlighed fik samlingspunktet mellem Fredensvej og
den nye del af Gudrunsvej navnet Fredens Plads, hvilket blev annonceret i Kjøbenhavns Amts Avis den 13. januar 1920. Sporovergangen
ved Villa Mowgli ”skulle holdes åben under viaduktanlæggets udførelse for at
skabe en passende adgangsvej”.
Valdemarsvej, der i 1888 var
blevet opkaldt efter faderen, overretssagfører Carl Theobald Valdemar Friis,
skiftede i 1928 navn til den nuværende Friservej efter Hans Christian
Frederiksen (11. november 1840 – 10. marts 1921), der grundlagde Ordrup
Gymnasium og blev kaldt Friser. Carl Theobald Valdemar Friis fik senere en søn
som han så meget belejligt navngav Valdemar – eller retter Chresten Valdemar
Richter Friis (4. april 1893).
Navneændringerne gav naturligvis anledning
til megen diskussion, og blev ivrigt debatteret i Villabyernes Blad, hvor mange
spændende forslag blev frembragt. Navneændringerne skyldes, at man ikke kunne
have flere veje med samme navn i samme kommune. Enkelte husnumre blev også
ændret – f.eks. blev Knudsvej 7 og 8 til Gudrunsvej
11 og 9.
Gudrunsvej er, som det ses, den eneste vej,
der har overlevet de oprindelige vejnavne.

Kraks kort anno 2016 – cykelbanen er nu væk og Ordrup
Bibliotek er kommet til.
Langt op i 1900-tallet var Gudrunsvej en
privat grusvej med grøfter uden asfaltering og fortov.

Referat af møde i
Gentofte Sogneraad den 26. januar 1915
fra Distriktsbladet
den 28. januar 1915.
I 1915 overgik strækningen fra Henrik Hertz
Vej, til skellet mellem Ejgaard/Skjoldgaard,
til offentlig vej, og i 1919 overgik den resterende del af vejen til offentlig
vej. I 1974-75 blev den asfalterede kørebane udvidet fra 5,7 meter til 8,5
meter.

Vejskiltet overfor Villa Mowgli.
Områdets nuværende vejskilte er designet af
arkitekt, designer og bogtrykker Knud V. Engelhardt (1882-1931) i 1920'erne. Noget
særligt ved skiltene er at alle prikkerne over j'erne i ”vej” er små røde
hjerter. Knud V. Engelhardt har haft stor betydning for dansk industrialiseret
design og hans livsværk er optaget i Kulturkanonen. Før man overgik til Knud V.
Engelhardts skilte, var kommunens vejskilte blot lavet af træ uden en ensrettet
designpolitik. Den 24. maj 1922 modtog Knud V. Engelhardt Kunstakademiets
Rejsestipendium på to gange 2.000 kr. sammen med Aage Rafn, der som nævnt
tegnede tilbygningen af Villa Mowgli i 1936. Igen er verden lille.
I 1923 udformede Knud V. Engelhardt også den
meget karakteristiske plakatsøjle med det store hætteagtige cirkulære tag og en
runding forneden. De skulle stadig være opstillet 27 forskellige steder i
kommunen. Søjlerne er lavet i jernbeton og rundingerne forneden udformet for at
forhindre ”skidtsamlehjørner” og for at undgå at hunde letter ben op af
søjlerne. En af plakatsøjlerne er opstillet ved Fredens Plads. I 1923 blev
søjlerne omtalt som ”kineserhatte” i Villabyernes Blad, der fortalte at
der i kommunen skulle opstilles i alt 30 styk.

Plakatsøjlen ved
Fredens Plads.
Som en lille kuriositet kan nævnes, at
Fredens Plads også huser et af Ordrups fem beskyttelsesrum, som blev opført på
tysk ordre i slutningen af 2. verdenskrig. Ifølge planerne skulle Gentofte
Kommune i alt opføre 111 beskyttelsesrum, men kun 43 blev fuldført, inden
krigen sluttede. Beskyttelsesrummet på Fredens Plads var beregnet til 100
personer, og flere steder i kommunen ses stadig spor af de gamle
beskyttelsesrum.
Ejendommens primære matr.nr., litranr., ejerlav, sogn og herred er 3eh af Ordrup
by og sogn, Sokkelund Herred. Grunden, Gudrunsvej 22,
er som tidligere beskrevet oprindeligt udstykket fra Eigaard
(hovedejendommen), der havde matr.nr. 3a af Ordrup by og sogn. De øvrige
gårde, der deltog i lodtrækningen, fik henholdsvis matr.nr. 1a, 2a
osv. Efterhånden som Eigaards marker er blevet
udstykket i mindre og mindre parceller er der blevet benyttet flere og flere
bogstaver i forskellige kombinationer.
Opdelingen af fast ejendom i matrikler blev med
det nuværende system påbegyndt i Danmark i 1844, men allerede i 1662 blev der
lavet et matrikelsystem til opkrævning af skatter.
Benævnelsen Herred er Danmarks ældste
landskabsenhed og var formentlig indtil vikingetiden landets opdeling i
militærdistrikter. Opdelingen benyttes stadig og danner således endnu
grundlaget for de nuværende underretskredse (byretskredse). Man støder første
gang på herreder i Knud den Helliges gavebrev fra 1085, og i Kong Valdemars Jordbog fra omkring 1231 var hele Danmark inddelt i cirka
200 herreder. Men herreder er sikkert meget ældre. I dag lever navnet herred
mest videre i navne på områder som Odsherred, Hornsherred og Han Herred.

Matrikelkort fra
1894 udarbejdet i forbindelse med udstykningen af Eigaard
(matr.nr. 3a).
Bemærk Eigaards placering, vejen over togsporet
og kirkepladsen.
Fra ældgammel tid hørte området til
halvherredet Sokkelund, mens landsbyerne i den snævre
ring om Havn – det senere København – dannede halvherredet Støvnæs. I Valdemar‑tiden
blev de to halvherreder lagt sammen til ét herred, som i de ældste kilder
omtales som Støvnæs herred. Senere slog navnet fra den nordlige del igennem, og
hele herredet kom til at hedde Sokkelund Herred –
opkaldt efter en lille lund syd for Buddinge ved Tinghøj i det nuværende
Gladsaxe, hvor herredets tingsted lå fra cirka 1200-tallet og frem til de
senere reformer i 1600-1700-tallet. Her samledes storbønderne, og her afgjorde
man sager og stemte ved at kaste stokke, som efter traditionen blev skåret i
selve lunden - deraf det oprindelige ”Stokkelund”, som med tiden blev til Sokkelund.
Ud over herrederne var Danmark i
middelalderen også inddelt i større områder kaldet syssler.
Sokkelund Herred hørte til Sjællands Østersyssel, som samlede flere herreder på øen.
Sysselinddelingen mistede efterhånden sin praktiske betydning, og i dag lever
ordet især videre som landsdelsnavnet Vendsyssel i Jylland nord for Limfjorden
og øst for Han Herred.
Først den 20. september 1967 indførte man
postnumre i Danmark.
Omkring århundredeskiftet blev Gudrunsvej
(og Eriksvej) beboet af mange fine godtfolk.
Oprindelig var det kun højre vejside (mod banen) der var delvis bebygget og
dermed nummereret. De ubebyggede grunde og den ubebyggede venstreside var i
mange år kun benævnt med matrikelnumre. Selv flere år efter at der var blevet
opført ejendomme optrådte flere af villaerne unummereret.
Dette selvom nummerering af ejendomme var blevet indført ved lov i 1859. Den
23. maj 1922 påbød Gentofte kommunalbestyrelse at alle ejendomme i kommunen
skulle forsynes med et husnummer. Argumentet var at det var uheldigt, at man
ikke kunne oplyse en præcis adresse i tilfælde af ”ildebrandstilfælde”.
Af godtfolk, der i starten beboede den
dengang private vej, kan med fødselsår nævnes:
Nr. 1: Fabrikant, cand.pharm., forfatter til
bl.a. operetten Molboerne, forlagsleder, udgiver af Illustreret Tidende og
bl.a. direktør for teatrene Panoptikon og Casino Hermann Petersen – tog i 1898
navneforandring til Hermann-Petersen – (12. februar 1862) og husmoder Karen Marie Petersen (2. maj 1862), samt
arkitekt og tømmermester Severin Andreas Jensen (12. september 1845) og husmoder Thalia Wilhelmine Florentine Jensen (26. august
1851).
Nr. 8: Particulier og tidligere restauratør
og værtshusholder Haagen Thulin (27. april 1828) og den unge ægtefælle husmoder Anna Benthine Margrethe Thulin (13. juli 1858).
Nr. 10: Murermester Nicolaj William Petersen
(28. juli 1856) og husmoder Amalie Louise Petersen
(30. juni 1856).
Nr. 12: Grosserer og broderihandler Julius
Adolph Levy (11. marts 1842) og husmoder Henriette
Emilie Levy (28. september 1844).
Nr. 13: Enkemand, pædagog, forfatter,
grosserer, justitsråd og tidligere bestyrer af Grüners Handelsakademi Albert
Kaarup (27. november 1826); samt dr.phil., bestyrer af De Brockske
Handelsskoler (nu Niels Brock) og senere ridder og folketingsmand for højre
Hans Larsen Møller (8. april 1861) og husmoder
Mariane Louise Elisabeth Nieuwenhuis Møller (13.
august 1867).
Nr. 14: Justitsråd og sekretær ved Kong
Frederik den 7. Stiftelse for Pigebørn Lauritz Hans Diderik Lange (21. august
1842) og husmoder Fanny Eugine
Lange (26. oktober 1841).
Nr. 16: Papirhandler Julius Otto Hannibal
Müller (8. juni 1853) og husmoder Georgia Rothine Müller (11. november 1856).
Nr. 18: Tandlæge Adolph Frederik Frithioff Fleischer (1. august 1858) og husmoder
Johanne Mariane Fleischer (27. juli 1855); samt handelsfuldmægtig Hans
Ludvig Emil Steffensen (5. november 1841) og husmoder
Andrea Sophie Christine Steffensen (2. oktober 1842).
Nr. 20: Kontorist og senere
manufakturgrossist Henry Marcus Frederik Tim Olsen (6. maj 1866) og husmoder Ebba Oluffa Olsen (8. juli 1873) – begge tog
senere navneforandring til Timmol.
Nr. 26: Ingeniør Georg Carl Jochumsen (16.
juli 1871) og husmoder Emily Jochumsen (10. april
1872).
Nr. 30: Fuldmægtig i finansministeriet,
cand.jur. Vilhelm Marcel Benzon Bang (1. september 1846) og husmoder
Louise Vieth Bang (8. november 1861).

Udsnit af Hus-Register – Ordrup sogn fra 1898.

Udsnit af Kraks
Vejviser – Ordrup sogn fra 1906.
Oprindelig lejede mange folk sig ind i
villaerne, medens det var de murer- og tømrermestre, der havde opført
ejendommene, der var de juridiske ejere. De velbeslåede københavnere kunne
således - sammen med tyendet og hele deres familie - flytte ud på landet i
primært sommerhalvåret. I folketællingerne er således til tider anført at
adressen er ”ubeboet for vinteren”.
Kravene til plads var mindre end i dag, og
en villa på vejen kunne enkelte gange bebos af 10-11 personer inkl. tyende. På
Gudrunsvej 18 boede for eksempel to forældre, syv børn og to tyende, ligesom
der i nr. 10 boede to forældre, seks børn og to tyende. Rekorden var nok i
1901, hvor der boede 17 personer i den senere Villa Mowgli.
Også Gudrunsvej 22 blev i de første år lejet
ud af murermester Nicolaj William Petersen. De første kendte lejere af
sommervillaen – som opført i byens vejvisere eller i folketællingerne - var
følgende personer:
Pensioneret kaptajn og botaniker, baron
Heinrich Franz Alexander von Eggers og sønnen exam.
pharm., baron Frederik Christian von Eggers i 1900-1901. Viktualiehandler
Gotfred Bertil Conrad Jacobsen i 1901-1903, pensioneret kommandør og
kontreadmiral Carl Adolph Garde i 1905-11. Admiralinde Agnes Marie Garde i
1912. Direktør Olaf Lassen i 1913-1915. Vexelmægler
Carl Frederik Vilhelm Johansen og forhenværende direktrice Julie Marie
Elisabeth Thomsen i 1915-1916. Og godsejer C. Nørgaard i 1916-1917.

Berlingske Politiske
og Avertissementstidende fra 19. maj 1900, hvor Villa Mowgli
og andre af
murermester Nicolaj William Petersens ejendomme udlejes.
Det er ikke muligt at sige præcist hvornår
den ene familie flyttede ind og den næste ud, men nedenfor er en kort
beskrivelse af de forskellige lejere, der boede i Villa Mowgli i perioden, hvor
ejendommen virkede som udlejningsbolig.
Familien Eggers (i
perioden 1900-1901)

Baron H.F.A. von Eggers.
Baron Heinrich Franz Alexander von Eggers
kom til verden i Slesvig den 4. december 1844 som søn af politimester,
rigsfriherre Oluf Friedrich Fritz von Eggers og Anna Magdalene Evers. Heinrich
Franz Alexander von Eggers var rigsfriherre, officer, professionel soldat og
botaniker. Heinrich Franz Alexander von Eggers gik på Odense latinskole i
perioden 1858-62 og deltog som officersaspirant i felttoget i 1864.
Efter krigens slutning, hvor Eggers hjemegn
var tabt, indtrådte den eventyrlystne unge mand i et østrigsk korps af
frivillige der i 1865 ankom til Mexico for at støtte kejser Maximilian. Han
blev fanget ved Oaxaca (hovedstad i den mexicanske
delstat af samme navn) i oktober 1866 og løsladt igen i april 1867, hvorefter
han berejste det sydlige Mexico. Sine oplevelser har han skildret i Erindringer
fra Mexico, der udkom i 1869. I 1868 indtrådte han i den danske hær som
sekondløjtnant og fortsatte i 1869 i den dansk-vestindiske hærstyrke med
garnison på St. Croix og St. Thomas. I 1870 blev han premierløjtnant og i 1878
blev han kaptajn. I 1885 stoppede han i militæret, men på St. Croix havde han
fået interesse for øens rige planteverden.
Han udgav en flora for øen og havde en
mangeårig korrespondance med den kendte danske botaniker og professor ved
Københavns Universitet, Johannes Eugenius Bülow Warming. Warming stimulerede
ham til at udvide det botaniske arbejde og hjalp ham med udgivelsen af hans St.
Croix's Flora, der i 1879
også blev udgivet på engelsk i Washington. Heinrich Franz Alexander von Eggers
var efter sigende en fremragende plantesamler, og fra 1880 solgte han
herbarieplanter til de fleste større botaniske museer – her i blandt også til
Botanisk Have i København. Sit materiale indsamlede han under talrige
ekskursioner til omtrent alle de vestindiske øer i årene 1880-90, hvor bl.a.
Carlsberg Fonden i 1888 støttede hans rejse til St. Domingo, Cuba og
Bahamasøerne. Han var en fremragende kender af Vestindiens planteverden og har
i forskellige tidsskrifter skildret flere af øernes vegetation, ligesom han
publicerede nogle biologiske og systematiske afhandlinger. Fra 1887 bosatte han
sig i Danmark, men i 1891 rejste han igen til Vestindien og Venezuela. I 1893
slog han sig ned i Ecuador, hvor han købte en hacienda, El Recreo,
som han drev til 1897, hvor han flyttede til Gentofte kommune. Heinrich Franz
Alexander von Eggers var en af de internationalt bedst kendte plantesamlere fra
hvem også vores eget botaniske museum har modtaget store samlinger. En
planteslægt opkaldt af den engelske botaniker I.D. Hooker kaldes Eggersia efter Heinrich Franz Alexander von Eggers. I dag
kaldes planten Neea buxifolia.
Heinrich Franz Alexander von Eggers døde den
14. maj 1903 i Leipzig, men nåede i 1900-1901 at bo i Villa Mowgli sammen med
sin hustru, Mathilde Camilla, født Stakemann, med
hvem han var blevet gift på St. Croix den 7. juni 1873. Parret fik syv børn,
hvoraf tre døde i en tidlig alder. I Villa Mowgli boede kun børnene Frederik
Christian (1877), Magda (1881) og Antoinette Marie Mathilde (1884). Prisen for
at leje Villa Mowgli lå på dette tidspunkt på 600 kr. pr. halvår. Inden de
flyttede til kommunen i september 1896, boede de i Vendersgade 3 i København.
Som en lille bonusoplysning kan det nævnes,
at det sidste barn, Olga Antoinette (31. december 1875 – 17. maj 1945), var en
kendt dansk forfatter, journalist, socialdemokrat og kvindesagsforkæmper. Hun
blev i løbet af 1930'erne nazist og overbevist antisemit. Hun døde i Vestre
Fængsel og var blandt de første, der blev interneret af modstandsbevægelsen
efter befrielsen i 1945. Kun fem år gammel var Olga blevet sent hjem fra St.
Thomas på grund af et brækket ben og var kommet i pleje hos slægtninge på Falster.
Resten af livet havde hun kun perifer kontakt til sine biologiske forældre og
søskende. Der er skrevet afhandlinger og bøger om Olga Eggers, men kort fortalt
kan man nok konstatere, at hendes noget forkvaklede liv skyldes en meget streng
far og tante.
Mathilde Camilla Eggers var datter af
viceguvernør, etatsråd Johan August Stakemann (15.
december 1805 – 4. november 1891) og Mary Jane Aarestrup (27. december 1819 -
25. oktober 1874), og blev født på St. Croix den 22. februar 1848 – kun få
måneder før generalguvernør Peter von Scholten (17. maj 1784 – 26. januar 1854)
ophævede slaveriet på De vestindiske øer natten mellem den 3. og 4. juli 1848.
Hendes far, der selv var født på St. Thomas, var i en lang årrække en del af
det retssystem og den administration, der opretholdt og håndhævede lovene på
øerne, herunder love relateret til slaveriet. Mathilde Camilla Eggers døde i
Viborg den 7. januar 1928.
Som det ses ovenfor, var den ældste søn,
Frederik Christian von Eggers, og ikke moderen, nævnt som lejer, hvilket vel
var helt naturligt på den tid.
Frederik Christian von Eggers giftede sig
den 27. april 1907 med Rigmor Schrøder og flyttede senere ind hos svigermoderen
på Lindegårdsvej 44 i Ordrup. Senere flyttede ægteparret til Viborg, hvor han
blev apoteker. Han dør den 28. december 1943 af nyrebækkenbetændelse.
Familien Jacobsen (i
perioden 1901-1903)

Annonce i Vejviser
for Gjentofte-Ordrup, Lyngby og Søllerød Kommuner
1898
Gotfred Bertil Conrad Jacobsen, der boede i
Villa Mowgli i 1901-1903, blev født den 29. maj 1857 i København og var
viktualiehandler på bl.a Jægersborg Alle 24. Butikken
var oprindelig en filialforretning af faderens butik på Gothersgade 48 i
København og hed i starten S. Jacobsens Sønners Viktualier og Delikatesser. Der
lå også en filialforretning i Hellerup. I 1900 blev hele den københavnske
forretning flyttet til Charlottenlund, hvor også en ostebutik blev åbnet.

Gotfred Jacobsen i
midten med sønnerne Christian og Gotfred.
Gotfred var gift med Elise Christine
Adolphine Jacobsen, født Jørgensen den 10. september 1859 i Næsby ved Præstø.
Sammen havde de børnene Jakobine Jacobsen (født 12. oktober 1882), Peter (født
6. januar 1884), Andreas Jacobsen (født 28. juni 1885), Christian Jacobsen
(født 1. juni 1887), Gotfred Jacobsen (født 15. juni 1893), Svend Jacobsen
(født 10. marts 1895) og Inger Marie Jacobsen (født 26. september 1900).
I Den til Forsendelse med de Kongelige
Brevposter privilegerede Berlingske Politiske og Avertissementstidende den 22.
og 23. august 1902 kunne man læse at familien i butikken på Jægersborg Allé
solgte levende ænder, høns, kyllinger og duer, der kom fra Gudrunsvej 22.
Prisen var henholdsvis 150, 125, 60 og 50 øre per styk. Så der var godt gang i
både butik og Villa Mowgli, og i skattelisten fra
oktober 1901 kan man læse at der boede 10 voksne plus syv børn i villaen – ud
over husets herre og hustru, var hustruens enkemor og syv tjenestetyende
registreret. Det var ekspeditricer, en pige, en karl, en kusk og en kommis. Der
må have været mennesker over alt, men til alt held var der kun registreret 13
personer i villaen året efter, hvor kun en karl og tre ekspeditricer – ud over
familien - var registreret.
Den halvårlige leje var uændret 600 kr. pr.
halvår.

Gotfred Jacobsens
viktualieforretning set indefra omkring 1905.
Sønnerne, Christian og Gotfred Jacobsen,
overtog butikken efter faderens død den 4. august 1918.

Billede af Gotfred
Jacobsens viktualiehandel fra cirka 1920 (postkort).
Ovenfor ses det nu nedrevne hus på hjørnet
af Jægersborg Alle og Lindegårdsvej med Gotfred Jacobsens viktualiehandel, som
familien ejede fra 1851 til 1970. Forretningen havde også på et tidspunkt
adresse i ejendommen Johannelund på Jægersborg Allé 26-28 og i ejendommen
Flensborg på Lindegårdsvej 48-52. Ejendomme på hver side af Jægersborg Allé 24.
Familien Garde (i
perioden 1905-1912)

Carl Adolph Garde.
Kontreadmiral
Carl Adolph Garde blev født den 5. august 1834 i København, og var søn af Hans
Georg Garde, kaptajn i Søe Etaten, og Dorothea Garde, født Mecklenborg.
Carl Adolph Garde giftede sig først med Anna Kirstine Simony med hvem han fik
fire børn. Da Anna Kirstine dør den 7. juni 1883, gifter han sig den 6. maj
1885 med Agnes Marie Bech, der den 8. december 1851 var blevet født på
Frederiksberg. Hun var datter af tømmerhandler og kaptajn i Livjægerkorpset
Jørgen Bech og hustru Frederikke Nicoline Mathiesen.
Familien
Garde boede på Østerbrogade 5, 1. i
København, men flytter i 1902 til en halv villa på Prinsesse Alexandrines Allé
10 i Charlottenlund. Da forholdende blev for små i 1905 flyttede de videre til
Villa Mowgli med børnene Elisabeth Gertrud (født 17. december 1871 og af første
ægteskab), Otto Valdemar (født 23. februar 1886), Agnes Henriette (født 13.
februar 1888), Rigmor Frederikke (født 23. marts 1889) og Paula Irine (født 6. juni 1890). I 1906 var frk. Knudine Agnethe
Nielsen tjenestetyende. Hun var født i Herlev den 5. februar 1885. I 1908
flyttede desuden tjenestetyende frk. Karen Marie Jensine Malling ind for at
hjælpe. Hun var født i Skanderup ved Skanderborg den 19. december 1890, bliver
gift med Anders Marius Pedersen og flytter senere til Næstved, hvor hun dør den
4. august 1974.

Admiralinde Agnes Marie Garde.
Carl
Adolph Garde afgår ved døden i Villa Mowgli den 8. juli 1911 efter knap to år med
tuberkulose og begraves den 12. juli 1911 på Holmens Kirkegård, hvorefter enken
overtager lejemålet af Villa Mowgli.
Enkefru
Agnes Marie Garde flytter senere til en lejlighed på Allégade
23 på Frederiksberg, hvor hun dør den 10. september 1938 - 86 år gammel. Hun
begraves ved siden af sin ægtefælle på Holmens Kirkegård fem dage senere.
Carl
Adolph Garde nåede inden sit otium i Villa Mowgli at have en række forskellige
poster indenfor søværnet.
Han
blev således kadet i 1848, og blev i 1849 på sin tur med fregatten Gefion taget
til fange i slaget ved Ekemførde, hvor han blev ført
til Rendsburg. På grund af sin unge alder blev han frigivet og samme år
udkommanderet med linjeskibet Skjold. Han var i 1850 ude at sejle med fregatten
Thetis, og blev sekondløjtnant i 1854. I krigen i 1864 var han
næstkommanderende på krydseren Fylla, der forestod blokaden af Swinemunde og Danzig. Efter
krigen var han i en periode ansat på et postdampskib, og i 1869 blev han
næstkommanderende på Korvetten Thor, der sejlede til Amerika og Vestindien. På
turen døde chefen, hvorfor han overtog chefposten. Han sad i bestyrelsen for
Det Forenede Dampskibsselskab og blev stået til ridder i 1870. Et par år efter
blev han næstkommanderende ved krydstoldvæsenet og i 1873 udnævnt til kaptajn.
I 1874 var han adjudant hos marineministeren, og i 1876 næstkommanderende på
Fregatten Jylland, der førte den danske og græske kongefamilie til Rusland. I
1881-1882 var han chef for briggen Ørnen. Endelig blev han i 1884 chef for
Kongeskibet Dannebrog, hvor han lærte kongen og kronprinsen at kende, og i 1885
udnævnt til kommandør. Han sluttede sin karriere af med at være stabschef hos
viceadmiralen i 1886-89, flagkaptajn i Eskadren i 1886-89 og chef for
Krydserkorvetten Valkyrien i 1888-1890. Han går på pension december 1897 og
udnævnes i den forbindelse til kontreadmiral. Behøver det at nævnes, at han
også var ridder af Dannebrog.
Ovennævnte
kongeskib var ikke det samme som det nuværende, men hjuldamperen, der tjente
kongehuset fra 1879 til 1932, hvor det nye Dannebrog tog over.
Medens
han boede i Ordrup, sad han som næstformand i det lokale menighedsråd, hvor han
bl.a. arbejdede for at Skovshoved skulle have sin egen menighed og præst. ”Ogsaa i økonomisk Henseende gik han i Spidsen
indenfor Menigheden. Han var saaledes bl.a.
Ophavsmanden til den saakaldte 10 Øres Indsamling i
Ordrup, ved hvilken der i de senere Aar er indsamlet
ikke ubetydelige Beløb til kirkeligt Arbejde”, som der stod i hans nekrolog
den 13. juli 1911 i Politikens Distriktsblad. En lang og fin karriere.
Efter
at villaen havde stået tom i 1904, blev den halvårlige leje nedsat til 500 kr. fra
1905 til 1908, men så måtte lejen også stige med 50 kr. om året fra 1909.
Gardes
Allé i Hellerup er opkaldt efter sønnen læge Carl Frederik Garde (15. februar
1868 – 21. januar 1908) fra første ægteskab, der var svigersøn til grosserer Dethlef Albert Heinrich Ohlsen (27. februar 1840 – 18.
september 1913), der i årene 1895 til 1913 ejede landstedet Øregaard, hvorfra
alléen blev udstykket.
Familien Lassen (i
perioden 1913-1915)

Emaljeskiltsreklame for Olaf Lassen.
Direktør
Olaf Lohrens Lassen boede i Villa Mowgli i 1913-1915
sammen med sin hustru Johanne Magdalene Lassen født Møgelgaard,
og deres datter, Lilli Irmelin Lassen, der var født den 21. marts 1911 i
København, samt sønnen, Olaf Lassen, der blev født den 2. august 1912 i
Skovshoved. Den 19. april 1919 kom sønnen Poul Olaf Lassen også til. Olaf Lohrens Lassen blev selv født den 4. august 1879 i St.
Magleby, og var den 1. juni 1910 blevet gift med Johanne i Vor Frue Kirke.
Johanne blev født den 25. november 1878 i Vor Frelser sogn. Hun boede som ung i
Ovengaden Neden Vandet 27, og var søster til Peter
Ludvig Møgelgaard, der var en kendt dansk
postkortkunstner, der til tider benyttede pseudonymerne W. Krogh og Hans Hollberg.

Direktør Olaf Lassen.
Olaf
Lohrens Lassen, der var lægesøn og oprindeligt blev
døbt Lohrens-Lassen, var uddannet kontorist og
dampskibsekspeditør fra Prahl Dampskibs-Expeditionen.
Senere blev han uddannet i Amerika og England. Han var en særdeles aktiv herre
og ejede en række selskaber og agenturer, der alle beskæftigede sig med
udvandring, spedition, toldklarering og pakkeforsendelser til hele verden. Han
var valgt som udvandringsagent for en række lande – bl.a. generalagent for
Canadian l’acifie. Som eksempel på nogle af hans mange
selskaber og agenturer kan nævnes Australian Victoria
Government Agency, America-Canada-Expedition,
Dominion Express Company, Royal Mail S.P. Co., Nelson Line, Dominion Express
Co., Great Eastern Railway, Dampskibsekspedition og Dansk Rejsebureau, Canadian
Pacific, Aktieselskabet Danske Rejsebureau, Engelsk Importhus, Aktieselskabet
Nordisk Rejsebureau og ikke mindst hans hovedselskab Olaf Lassen & Co, hvor
hans bil var registreret (reg.nr. K7058). De fleste selskaber og agenturer
havde til huse i Nyhavn 19, men han havde også afdelinger på Amagertorv 24, i
Esbjerg og i Centralbanegaardens Ankomsthal (i den
nuværende Hovedbanegård i København).
Privat
boede familien i en årrække i Bredgade 68, 2. sal (efter 1932 er husnummeret
ændret til 76), hvor de sikkert mange gange har spist på Cafe Petersborg, der
siden 1700-tallet har ligget i ejendommen. Inden de flyttede til kommunen,
boede de i Peder Skramsgade 12 i København og på Strandvejen 353 i Skovshoved.
I
1913-1915 var lejen steget til 1.300 kr. pr. år.
På
trappestenen til Nyhavn 19 ses stadig hans indridsede reklame.

Trappesten til Nyhavn 19 – C P R (Canadian Pacific Railway) /
Canada-Amerika.
Den
danske udvandring til bl.a. Amerika, Canada og Australien i årtierne omkring
1900 afspejles også i tidens reklamer. Ovenfor ses et af hans emaljeskilte, der
reklamerer for billige billetter til Australien. Udover billetter til Amerika,
Canada og Australien, reklamerede Olaf Lassen med billige billetter til Afrika,
Brasilien, Argentina, Mexico, Kina og Japan. I avisreklamer i den svenske avis
Kalmar ses at han i 1913 også solgte billetter til vort
kære broderfolk, ligesom det i en australsk avis fra Melbourne den 15. maj 1911
er nævnt, at han er udnævnt til agent i forbindelse med at få danske landmænd
til Australien. I Polen havde han kontor på Stadtgraben
8 i Danzig (Gdansk) og i Stettin
på Splittstrasse 2, og i Tyskland havde han kontor på
Alsterdamm 10 i Hamburg og på Fredrichstrasse
86 i Berlin under navnet Olaf Lassen & Company og Reiselassen.
London kontoret lå på Camomile Street nr. 10.

Vejledning for Rejsende til Canada og Amerika.
Ifølge
bogen Vejledning for Rejsende til Canada og Amerika som Olaf Lassen udgav i
1915, kunne de dobbeltskruede dampere Atlanterhavets Dronninger fra Canadian
Pacific gøre turen over selve Atlanten på 3 dage, 18 timer og 45 minutter. Og
det var da forholdsvist hurtigt for en fattig dansker at komme til Canada eller
USA og få noget gratis land. Et eksemplar af Vejledning for Rejsende til Canada
og Amerika findes på Det Kongelige Bibliotek.
Når
det krævede nogle gode reklamer, skal det måske lige nævnes at f.eks.
dampskibet The Royal Mail Ship Empress of Ireland fra
Canadian Pacific den 29. maj 1914 sejlede ind i det norsk dampskib SS Storstand tæt på Quebec og sank på sølle 14 minutter. 1.012
mennesker af i alt 1.477 ombordværende omkommer ved den lejlighed. Og alle
husker nok også Titanic fra rederiet White Star Lines, der sank natten mellem
den 14. og 15. april 1912, og hvor mere end 1.500 mennesker mistede livet. Af
disse var 12 danskere, der havde købt deres billetter af Olaf Lassens
konkurrent, Frederik Joachim Prahl (1857-1936), der var generalagent for White
Star Lines og som havde til huse i Nyhavn 49 og senere i Nyhavn 5. Men i
perioden fra midten af 1800-tallet op til cirka 1915 udvandrede godt 300.000
danskere, svarende til cirka 10% af befolkningen – så der var nok potentielle
kunder at tage af.

Oluf Lassens kontor i Nyhavn 19.
Den
28. juni 1922 afgik Olaf Lohrens Lassen ved døden på
Sankt Josephs Hospital efter en hjerneblødning - kun 42 år gammel. Han blev
allerede begravet på Garnisons Kirkegård den 1. juli 1922, og efterlod sig en
enke og tre børn på henholdsvis 3, 10 og 11 år.

Ifølge
Handelsregisteret fra januar 1923 trådte firmaet Olaf Lassen & Co. herefter
i likvidation og overretssagførerne Peter Valdemar Sandholt (bestyrelsesmedlem)
og Frederik Wolff blev indsat som likvidatorer. En række af de øvrige selskaber
blev videreført og udviklede sig positivt. Bl.a. blev Aktieselskabet Danske Rejsebureau, der var blevet
stiftet i 1918, senere til Samson Transport, der i 1997 blev overtaget af DSV.
Da udvandringen til USA, Canada og Latinamerika ebbede ud efter 1. verdenskrig,
blev der ledig kapacitet på passagerskibene, der i stedet skabte grobund for
vækst i turist- og selskabsrejserne.
Familien
Johansen og Thomsen (i perioden 1915-1916)
Carl
Frederik Vilhelm Johansen var beboer i Villa Mowgli i 1915-1916. Han var
vekselmægler og drev i en årrække firmaet Vekselmægler C. Johansen på Ved
Stranden 6 i København. Han blev født i Helligånds sogn i København den 20.
juli 1860 som søn af urtekræmmer Carl Julius Ferdinand Johansen (22. april 1816
– 21. marts 1861) og klasselotterikollektrice Emma Louise, født Damm, der var
født den 1. februar 1829.

Ifølge
ovenstående avisannonce i Berlingske Politiske og Avertissementstidende den 28.
november 1915 begyndte lejemålet den 1. december 1915. Villaen blev beskrevet
som moderne udstyret med to wc’er, stor have, muret veranda, elektrisk lys og
låge ud til jernbanestien. Den kunne lejes helt eller delvist møbleret. I
folketællingen fra februar 1916 oplyses det, at han var gigtsyg og vekselmægler
uden forretning. Det nævnes også, at “de afdrag og renter han skulle modtage af
overdragede driftsmidler trods løfte ikke blev udbetalt, hvorved meget var
tabt”. Fra 1914 kaldte han sig forhenværende vekselmægler, så han har
formentlig på dette tidspunkt afhændet sin forretning, selv om han fortsat
bevarede sin bestalling. Lejen var 1.400 kr. om året, men udlejer anfører i skattelisten kun at have modtaget 900 kr. i forskud. Carl
Johansens formue blev i 1916 opgjort til 47.000 kr., så han var ikke uden
midler.
Hans
liv var i høj grad præget af retssager og tvister. I 1901 blev han i Højesteret
dømt til at betale 4.655,56 kr. til frk. Sophie Langeland. Allerede den 19.
februar 1900 var han blevet dømt til at betale beløbet af Landsover- samt Hof-
og Stadsretten. Sagen udsprang af et gældsbrev, han
havde udstedt i 1885, som han senere ikke mente at være forpligtet til at
afdrage.
Datidens
aviser beskrev “Vexelmægler Johansen”
som en særdeles veltalende mand med usædvanligt flydende talegaver.
Folketidende skrev den 6. november 1896, at ”han i Højesteret havde holdt et
foredrag, som varede det meste af formiddagen, og som var ved at gøre de høje
dommere fortvivlede med sit skybrud af talstørrelser, obligationspålydender,
rentesummer, gebyrer, udgifter, lån, forskud og så fremdeles”. Sagen
drejede sig om ”enkefru Harboes millionbo”, hvor han
på sin afdøde brors vegne ønskede et forskud til moderen og sig selv. Han mente
endvidere, at kuratorerne i boet havde handlet
svigagtigt. Sagen faldt dog ikke ud til hans fordel, og han og moderen måtte
betale sagens omkostninger på 300 kr., heraf 80 kr. til retten for unødigt at
trætte den. Oveni kom en injuriedom.
Han
førte altid selv sine sager og i datidens aviser blev han omtalt som ”en
kendt københavnsk forretningsmand som i adskillige år havde haft sin gang i
snart Hof- og Stadsretten og snart i Højesteret”.
Ifølge aviserne ”lå han nemlig altid i proces med nogen, tabte altid sine
sager ved Hof- og Stadsretten, appellerer altid til
Højesteret, hvor han altid havde samme skæbne”. I Jyllands-Posten den 7.
november 1900 omtales en af hans mange sager som endnu en ”selvmordssag”,
hvor den eneste spænding i sagen ville blive hvor høje bøden ville blive denne
gang. Han nægtede ofte at betale bøderne og i 1900 måtte Kongens Foged løse
problemet.

Avisannonce fra den 25. april 1908.
Også
medens han boede i Villa Mowgli, havde han travlt i Overretten og Højesteret,
hvor han gentagne gange optræder i retslisterne. Hvis han ikke kunne give møde,
blev sagerne ofte udsat til ugen efter. En del af konflikterne udsprang af den
ovennævnte sag om enkefru Harboes millionbo. Enken,
født Johansen, var død den 21. september 1891, og hun havde flere år før sin
død bestemt, at hendes betydelige formue i kontanter, obligationer og
københavnske ejendomme skulle fordeles blandt slægtninge og velgørende formål.
Arven skulle deles i fem lige portioner mellem hendes søskende og deres børn,
og Carl Johansen og hans bror, bankassistent i Privatbanken
Albert Henrik Pohlmann Johansen (20. oktober 1858 -
20. juli 1896), skulle tilsammen arve omkring 200.000 kr. Enkefru Harboes
rigtige navn var Marianne Juliane Harboe, der var blevet født den 9. marts 1807
i København. Parret havde ingen børn.
Formuen stammede fra den afdøde byggematador,
grosserer og sukkerraffinadør Henrik Pohlmann Harboe (29. januar 1798 - 2. april 1873), der
havde tjent en stor formue på opkøb af jord på Vesterbro i København. I 1865-66
lod han opføre ejendomme til beboelse og erhverv på Enghavevej 10, 12 og 14
samt på Vesterbrogade 107. Han fik desuden den idé at oprette en gade vinkelret
på Vesterbrogade, som han udstykkede og delvis frasolgte, og hvor der blev
opført såkaldte lejekaserner. Denne gade fik i 1858 navnet Dannebrogsgade.
Som eksekutor og bobestyrer havde enkefruen
indsat sin nevø, fuldmægtig og kassekontrollør Alfred Emil Theodor Johansen
(28. januar 1840 - 13. september 1905) fra Overformynderiet, der var fætter til
Albert og Carl Johansen. Ligeledes var overretsprokurator
Richard Bentley Lehmann (13. maj 1831 - 15. oktober 1900) indsat som eksekutor.
Alfred Johansen kom hurtigt til at stå i centrum af konflikten, fordi hans
dispositioner forekom mange arvinger at være mere præget af hensynet til ham
selv end til boet, især i forbindelse med ejendomshandler i Skodsborg og
Dannebrogsgade.
Sagen
verserede gennem 1890’erne, hvor skiftet trak ud, flere arvinger døde
undervejs, og store beløb forblev bundet i kontanter og ejendomme i flere år
uden endelig fordeling.
En
arving, købmand Ludvig August Johansen (17. februar 1848 – 29. februar 1892),
der boede i Brasilien, stod også til at arve omkring 200.000 kr. Han opholdt
sig i Rio de Janeiro, levede under beskedne kår og bad familien i København om
at få at vide, hvor meget han skulle arve, og om de ville sende ham penge til
rejsen hjem. Først efter mange måneder svarede Alfred Johansen på hans
henvendelse med ordene: “Jeg har på dette tidspunkt ingen som helst
oplysning at give” - og han undlod samtidig at sende ham de efterspurgte
rejsepenge. Ludvig kom derfor aldrig afsted, men døde kort efter fattig og
ugift i Rio de Janeiro, blev begravet på det offentliges regning og efterlod
sig endda en ubetalt lægeregning, mens hans betydelige arv stod uberørt og
ventede i København. Efter Ludvigs død verserede der endnu en retssag i
sommeren 1898, hvor nogle af arvingerne uden held søgte at få udbetalt en del
af hans arv fra boet. Hans bo blev først endelig afsluttet i marts 1903.
Som
det kan ses ovenfor døde Albert Johansen også, inden arven blev udbetalt. En
tredje arving, Nicoline Severin Emilie Johansen (30. juni 1819 - 23. december
1894), døde ligeledes og havde til familiens store overraskelse testamenteret
sin femtedel af boet til Alfred Johansens svigermor, hvorefter dette testamente
naturligvis blev draget i tvivl.
Svigermoderen,
Hendrikke Jacobine Baht,
født Johansen (12. maj 1822 - 11. oktober 1905) var i øvrigt allerede arving
til en femtedel af boet, idet hun var søster til enkefru Harboe, og Alfred
Johansen havde giftet sig med sin kusine, Christine Jacobine Baht (7. december 1854 - 15. april 1939). Svigermoderens ægtefælle og kusinens far var pastor Jacob
Emil Baht (2. januar 1822 - 26. april 1859) der inden
sin død havde virket i Helligåndskirken.
Som
nævnt ovenfor skulle en mindre del af arven gå til velgørende formål - nærmere
bestemt 15.000 kr. - og efter testamentets bestemmelse anvendes som et
familielegat for trængende kvindelige medlemmer af familien. Legatet skulle
administreres af Københavns Sygehjem, som efter længere tids besvær med
eksekutorerne meddelte, at de hverken ville eje eller have pengene. En fattig,
ung pige, der gennem flere år havde været syg og svag, og som var nært
beslægtet med familien, søgte om renterne, men fik afslag, fordi Hendrikke Jacobine Baht gjorde
krav på at modtage renterne – hvilket hun også fik, selv om hun jo nu stod til
at arve to gange 200.000 kr. De øvrige arvinger var ifølge datidens aviser
naturligvis stærkt utilfredse med denne beslutning.
Carl
Johansen afbrød i 1893 sit ophold i Paris for personligt at føre en vedvarende
kamp mod fætteren Alfred. Han trådte frem som familiens mest stridbare medlem
og fungerede nærmest som intern anklager. Han skrev stærkt formulerede breve,
rejste en række injurie- og æressager og forsøgte gentagne gange at få Alfred
draget juridisk til ansvar. De mange arvinger var rige på papiret, men kunne
ikke betale deres regninger.

Forsideannonce fra avisen København den 19. september
1896.
Konflikten
udviklede sig til en egentlig skandalesag, hvor både politidirektøren og
justitsministeren blev trukket ind gennem klager, anmodninger om undersøgelse
og krav om kriminel tiltale mod Alfred Johansen som ansvarlig bobestyrer. Den
19. september 1896 indrykkede Carl Johansen en stor annonce på forsiden af
blandt andet avisen København, hvor han meddelte offentligheden, at Alfred
Johansen havde modtaget renter fra boet på sine tredjeprioritetslån, mens han
havde undladt at betale renter på boets realkreditlån. Ifølge Carl Johansen
skete dette for at fremkalde en tvangsauktion, så fætteren kunne erhverve
ejendomme fra boet til en for lav pris. Da overretsprokurator
Lehmann, der også sad i boet, var vidende om dette, burde han efter Carl
Johansens mening straffes. Den 20. december året efter faldt der dom i Hof- og Stadsretten, hvor retten fandt annoncen ærefornærmende, og
Carl Johansen måtte betale en bøde på 400 kr. subsidiært 60 dages simpelt
fængsel.
I
1897 blev Carl Johansen indstævnet for pengeafpresning. Han blev dog frikendt,
selv om retten fandt hans forklaring meget lidt troværdig. Sagen opstod, fordi
en tante, der stod til at arve 200.000 kr. efter den ovennævnte Ludvig
Johansen, af boet var blevet opkrævet et beløb på 3.000 kr., som hun ikke kunne
betale, og som hun mange år tidligere havde lånt af H.P. Harboe. Boet ønskede
ikke at modregne kravet i hendes arv, og derfor skrev Carl Johansen på tantens
vegne til boet, at de havde 24 timer til at trække kravet tilbage. Modsvaret
fra boet blev den ovennævnte anmeldelse om pengeafpresning.
I
oktober 1899 blev Alfred Johansen sammen med Lehmann sagsøgt ved Hof- og Stadsretten, fordi de som bobestyrer skulle have påført
boet et betydeligt tab ved ikke rettidigt at indbetale boafgiften og dermed
udløse ekstra renter og omkostninger, som arvingerne nu krævede erstattet. Også
denne sag tabte de øvrige arvinger. Sagen blev ganske vist videreført i
Højesteret i 1900, men her pålagde retten dem at betale en bøde på 80 kr. til
Vor Frelser Kirke som betingelse for overhovedet at kunne genoptage sagen.
Moderen,
enkefru Emma Johansen, måtte som 73-årig også en tur i Højesteret i 1902, da
hun havde svært ved at betale de sidste 1.920,36 kr. ud af i alt 14.000 kr. som
hun skyldte. Kongens Foged havde fået inddrevet differencen fra sønnen Albert
Johansens dødsbo, hvor hun var enearving. I denne sag måtte Carl Johansen, der
virkede efter fuldmagt fra moderen, betale en bøde på 200 kr. for unødigt at
trætte højesteret. Hertil kom en betaling på 50 kr. til Kjøbenhavns
Fattigvæsens Hovedkasse for usømmelig skrivemåde. Sagen var på mange måder
urimelig, da moderen blot ventede på, at arven efter hendes afdøde søn blev
udbetalt.
Striden
udviklede sig, som man kan se, til en bitter familiekonflikt med gensidige
beskyldninger og langvarige retssager, og samtiden så Harboe‑boet som et
lærestykke i, hvordan en stor formue kan fungere som en forbandelse, der
snarere splitter en familie, end den gavner den.
Det
mest tragiske var måske, at svigermoderen og fætteren, der tilsammen sikrede
sig tre femtedele af den store arv, døde med mindre end en måneds mellemrum få
år efter, at boet var afsluttet. Datteren og ægtefællen, Christine Jacobine
Johansen, kunne dog – som den sidste overlevende i denne familiegren – glæde
sig over arven, indtil hun døde uden arvinge i 1939,
84 år gammel.
Vi
kan så i dag glæde os over, at der i dag findes en velgørende fond ved navn
”Pastor Jacob Emil Baht og Hustru Hendrikke
Jacobine Baht født Johansens Mindelegat”, der bl.a.
yder understøttelse til efterlevende ægtefæller efter præster for menigheder
indenfor den danske folkekirke. Den dag i dag er formuen over 25 mio. kr.
Sagen
medførte også at Carl og Albert Johansen i flere år nægtede at betale
kommuneskat, hvorfor de blev slettet fra de kommunale valglister, og på den
måde fik frataget deres stemmeret. Den 26. juli 1895 skrev avisen København
således ”Hver Gang d’Herrer modtager deres
Skattebillet, påfører de den følgende Bemærkning: Nægter at betale Skat, indtil
der er foretaget offentlig Undersøgelse mod Eksekutorerne i Boet efter Enkefru
Harboe. Og da d’Herrer kan paavise,
at de har ingen anden væsentlig Indtægt end de Laan,
de rejser paa deres Arv, maa
Kommunen lad sig nøje hermed”.
Ved
boets afslutning mange år senere, kunne de overlevende arvinger dog glæde sig
over at formuen i boet var vokset fra oprindeligt 1,0 mio. kr. til 1.2 mio. kr.
På
trods af et skrantende helbred opsiger Carl Johansen lejemålet af Villa Mowgli
og køber i foråret 1916 en villa på Gersonsvej 3 i
Hellerup for den nette sum af 22.000 kr. Desværre afgår Carl Johansen ved døden
allerede den 18. maj 1916 kun 55 år gammel – og endnu inden skødet var blevet
lyst. Han dør af nyrebækkenbetændelse og koldbrand på Gersonsvej,
men når at blive kremeret inden handlen bliver endelig gennemført og ejendommen
ender derfor i hans dødsbo.
Også
efter hans død opstod der juridiske tvister. Knapt en måned inden sin død, den
25. april 1916, nåede han at oprette en kodicil til et testamente fra den 15.
august 1903, hvor arven efter ham — i stedet for at gå til en række velgørende
foreninger — nu skulle tilfalde Klasselotterikollektrice Emma Johansen, født
Dam, og Sønners Legat. Ni velgørende foreninger følte sig snydt og stævnede
uden held hans dødsbo.
Hans
moder, enkefru Emma Johansen, født Damm, boede på dette tidspunkt på Dronnings
Tværgade 29 i København, og overlevede begge sine børn. Hun døde 90 år gammel i
1919, hvorefter hendes ”Herskabelige Indbo” fra den 1. april og en uge
frem ifølge flere store avisannoncer blev bortauktioneret.
Carl
Johansen boede op til sin død til leje i Villa Mowgli sammen med forhenværende
direktrice Julie Marie Elisabeth Thomsen, der ejede Parisiana
og den 18. november 1898 havde etableret aktieselskabet Parisiana.
Han var ugift og hun var fraskilt.

Parisiana
på verdensudstillingen i Paris sommeren 1900.
Parisiana
var en butik på Tordenskjoldsgade 14, 3. sal i København, der bl.a. handlede
med dame konfektionsartikler, kniplinger, kjoler, kostumer og lingeri.
Forretningen var med på verdensudstillingen i Paris i 1900, hvor den modtog en
sølvmedalje i kategorien ”Industries de la confection
et de la couture pour hommes,
femmes et enfants” for
deres ”Beklædningsgjenstande samt vævede og syede Arbeider, og Udvalg af Rober og Kostumer”. Inden
omdannelsen til et aktieselskab lån forretningen på Niels Juelsgade
4, 1.
Aktiekapitalen
i selskabet var fuld indbetalt og på hele 100.000 kr., hvilket har været en
anselig sum i 1898. Aktierne lød på 1.000 kr. pr. styk og kunne noteres på
navn, hvis det blev ønsket. I selskabets
bestyrelse sad Johan Christian Georg Howitz, Carl
Johansen og Julie Marie Elisabeth Thomsen selv. Johan Christian Georg Howitz var cand.polyt. og kendt for sin viden indenfor gas.
Han anlagde således Københavns Kommune første gasværk - Vestre Gasværk - og
blev i 1857 dets første bestyrer.
Julie Marie Elisabeth Thomsen var født Buchardt den 26. juni 1863 på Frederiksberg, hvor faderen, Ferdinand Julius Buchardt, var kreaturkommissær og
indehaver af Julius Buchardt & Søn. De boede med moderen, Thora Emilie, på
Bredgade 8 og flyttede senere til Villa Ypernhus på Jensløvs Tværvej 7 i
Charlottenlund. Julie Marie Elisabeth Thomsen var i 1916 registreret som
nyresyg, så det har i 1915 og foråret 1916 været to sygdomsramte lejere i
50’erne, der havde ophold i Villa Mowgli. De var således begge registreret som
ude i stand til at arbejde på grund af kroniske sygdomme.
Allerede
den 20. august 1886 var Julie Marie Elisabeth Thomsen blevet gift med Frederik
Ove Thomsen. Frederik Ove Thomsen var født den 31. maj 1858 og var en af
Københavns førende modeskabere, manufakturhandler, kongelig hofleverandør og
ejer af modehuset Maison Ove Thomsen A/S i København.

Ebba Ove Thomsen i en af fars rober.
Sammen
fik de to børn. Ebba Ove Thomsen blev født den 3. maj 1887 og Henrik Raabye Ove Thomsen blev født den 8. marts 1890. Ebba var
skuespillerinde under stumfilmens storhedstid, indspillede over 75 film,
opnåede stjernestatus og er nok bedst kendt for sine roller som den elegante
dame, der spillede overfor den - på det tidspunkt - højst betalte danske
stumfilmsstjerne Valdemar Psilander (9. maj 1884 – 6. marts 1917). Som eksempel
kan nævnes stumfilmen Det stjålne ansigt, der blev optaget medens moderen boede
i Villa Mowgli. Her spiller Valdemar Psilander skibsrederens søn George, medens
Ebba Ove Thomsen spiller Georges hustru Mary.
Sønnen
Henrik, dør allerede den 11. august 1917 af skarlagensfeber, men var inden
blevet læge og den 11. november 1915 blevet gift med sangerinden Sylvia Frances
Carl (7. maj 1893 – 13. april 1979), der nedkom med deres datter, Jandje Carrie Thomsen (4. august 1917 – 1. september 2002),
kun syv dagen inden ægtefællens død. I 1919 gifter enken sig igen med Antonio
de Coninck Smith (3. september 1884 – 26. august
1961), der adopterer datteren.
Så
det var også fine folk der kom på visit i Villa Mowgli i 1915-1916.

Annonce fra Berlingske Tidende den 18. maj 1916.
Julie
Marie Elisabeth Thomsen og Frederik Ove Thomsen var som nævnt blevet skilt og
den 29. oktober 1910 afgår Frank Ove Thomsen ved døden på Skodsborg
Badesanatorium kun 52 år gammel. Nyheden om modeskaberens død bringes både i
danske og udenlandske aviser. En selskabskjole i silke fra Maison
Ove Thomsen A/S er udstillet på Norsk Folkemuseum.
I
1909 og 1910 holdt firmaerne Vekselmægler C. Johansen og Parisiana
begge til på Holbergsgade 17, 4., i 1911 delte de erhvervslejemål på Howitzvej 52, 1. på Frederiksberg og i 1912-1915 på
Mariendalsvej 80 også på Frederiksberg. Privat boede parret i 1913-1915 på Georgesvej 1 i Charlottenlund. Georgesvej
findes ikke mere og er nu en del af Gyldenlundsvej. Ejendommen ligger overfor
Villa Mowgli på den anden side af banen ved den nu nedlagte jernbaneovergang.
Så de har kunne sidde og kigge over på Villa Mowgli inden de underskrev
lejeaftalen. Senere flyttede Julie Marie Elisabeth Thomsen til Vigerslev Allé
32 i Valby, hvor hun boede til sin død.
På
trods af sygdom levede Julie Marie Elisabeth Thomsen til hun blev 83 år og døde
først den 12. oktober 1946 på Bispebjerg Hospital.
Familien Nørgaard (i perioden 1916-1917)

P. C. Nørgaard som departementschef.
Godsejer
C. Nørgaard – eller retter - Peter Christopher Nørgaard, der lejede Villa
Mowgli i 1916-1917 for nu 1.500 kr. i leje pr. år, blev født den 3. november
1835 i Osted som søn af sognepræst Poul Moth Thestrup Nørgaard (1802-1889) og
Margrethe Johanne Sødring (1808-1885).
Peter
Christopher Nørgaard var også en særdeles aktiv herre og blev bl.a. gehejmeetatsråd i 1901 og fik tildelt storkorset af
Dannebrogordenen i 1913. Han var bl.a. generaldirektør for De Danske Statsbaner
og for Telegrafvæsenet, departementschef i Ministeriet for Offentlige Arbejder
(Trafikministeriet) og kvæstor for Carlsbergfondets
kvæstur, der var blevet oprettet i 1888. Han blev oprindelig student fra Sorø
Akademi i 1855 og blev juridisk kandidat i 1861.

Geheimeetatsraadinde Charlotte Cecilie Nørgaard.
I
1865 giftede Peter Christopher Nørgaard sig med
Charlotte Cecilie Marcher, der var blevet født på Trudeholm
den 9. maj 1838. Hun var datter af forpagter Eiler Christian Marcher
(1794-1871) og Mette Kirstine Petersen (1810-1894).
Medens
Peter Christopher Nørgaard havde stor succes i erhvervslivet, var han mere
uheldig da han opholdt sig i Ordrup. Fredag den 20. juli 1906 blev Peter
Christopher Nørgaard således udsat for et røveriforsøg på første klasse i
Klampenborgtoget. Store dele af landets aviser kunne med overskrifter som ”Rovmordsforsøg,
Planlagt Rovmord og Revolver-Mand i Klampenborgtoget”
berette hvordan en ung tysk rigmandssøn, Hans Hardelstein,
havde afgivet flere skud mod ”Gehejmeetatsraad Nørgaard og Statsråd
Lyngbye”, da de var på vej hjem med 4-toget fra København. Røveriet var ”forøvet
efter de bedste udenlandske mønstre” og skete mellem Hellerup og
Charlottenlund station, hvor den unge mand på kun 16 år truende havde skreget ”Crown
Crown”. Inden de to herrer havde besindet sig,
affyrede den unge mand fem 7mm revolverskud mod dem, ”hvorved en
revolverkugle borede sig ind i Gehejmeetatsraad
Nørgaards skulder, hvorfra blodet lystigt piblede ud”. Statsråd Lyngbye
slap mere nådigt.
Efterfølgende
kastede tyskeren revolveren fra sig og sprang af toget ud for Bregnegaard for derefter at løbe mod restaurant Over
Stalden. Her stod ”et Par Betjente, der straks anede Uråd, da de så den barhovede Mand, hvis Ansigt var præget af Ophidselse”.
Efter lidt tumult, hvor den unge forbryder bl.a. sprang i fæstningsgraven ved
Charlottenlund Fort og betjent Nielsen måtte svømme ud for at få en forsvarlig
klo i ham, blev han anholdt. Gehejmeetatsraad
Nørgaard måtte efterfølgende have fjernet kuglen af huslæge Meyer.
Fredag
den 21. juni 1912 var 77-årige Peter Christopher Nørgaard også udsat for ”et
alvorligt ulykkestilfælde, da han ved færdsel på banelinjen i Charlottenlund
blev ramt af et lokomotiv, så hans ene fod måtte sættes af”. Her havde han
ifølge landets aviser, gået fra Norasvej mod
Charlottenlund, hvor han hver dag kl. 10:19 plejede at tage toget fra stationen
til København. Han gik som altid ”langs Banelinien
for at spare en Omvej”. ”Stationspersonalet havde ofte advaret ham
derimod, men han havde altid slaaet det hen med, at
han nok skude passe paa, og som kongelig Kommissarius
havde han jo Ret til at færdes paa Linien”.
”I
morges var Gehejmeetatsraaden kommet temmelig sent
hjemmefra, og han skyndte sig derfor afsted langs med Skinnerne. Kort før han naaede Stationen hørte han Toget komme brusende bagved sig,
og Sporet var da imellem ham og Perronen. I Stedet for nu at vente, til Toget
var kørt ind og så gaa bagom det, vilde
han hurtigt springe over Sporet foran det. I samme Øjeblik gav Lokomotivføreren
et Advarselsfløjt. Nørgaard vendte sig om for at se, hvor langt Toget var
borte, men snublede over et Sporskifte og faldt så uheldigt, at hans højre
ankel blev liggende over Skinnen. Lokomotivføreren bremsede af al kraft, men
det var for sent. Lokomotivets forreste Hjul gled over Benet og klippede Foden
af”.
Ifølge
Berlingske Tidende gennemgik ”den gamle mand de hårde lidelser og det lange
sygeleje med en sjælden tålmodighed og standhaftighed”. Ifølge
Nationaltidende ”ventede ingen at den gamle herre skulle stå det igennem,
men ikke alene kom han sig, men drev det til i flere år at gå spadsereture på
indtil en mil med sit kunstige ben”.
Han
sad sammen med sin kone i bestyrelsen for Skovshoved Asyl, der skulle sikre at
”Børn fra to til syv Aar tidlig vænnes til Flid og
Orden i Stedet for at drive om paa Gaden eller ligge
ørkesløse Hjemme i Forældrenes Huse, overladt til dem selv, medens disse er paa Arbejde”. Der var cirka en asylmoder per 50 børn.
Fra omkring år 1900 blev asylerne i kommunen ændret til børnehaver med et mere
pædagogisk indhold, og fra 1920’erne var børnehaverne ikke længere forbeholdt
ubemidlede.
At
Peter Christopher Nørgaard kaldte sig godsejer da han lejede Villa Mowgli i
1916-1917, er nok lidt af en tilsnigelse, idet det var sønnen, Henrik Valdemar
Nørgaard, hvis hustru Anna Dorthea Suhr, der bragte en større formue med ind i
deres ægteskab, der blev godsejer, da han i 1902 købte Rye Nørskov Gods i
Jylland. Henrik Valdemar Nørgaard ejede også flere ejendomme på Ordrupvej og
Strandvejen.
Peter
Christopher Nørgaard døde den 20. februar 1917, hvorfor det må være begrænset
hvad han fik ud af sit lejemål i 1917. Charlotte Cecilie Nørgaard døde et par
år senere den 11. marts 1919 på Frederiksberg. De er begge begravet på Vestre
Kirkegård i København.
Villa Mowgli har måske også været udlejet i
de perioder, hvor det ikke har været muligt at finde nogle registrerede lejere,
men disse eventuelt manglende lejeres identitet er desværre ikke bevaret for
eftertiden. Udlejningsepoken slutter i sommeren 1917, hvor Christoffer Frode
Müller, der havde købt ejendommen 11. december 1916, selv flyttede ind.
Det fortælles dog, at Kong Frederik VIII’s
elskerinde – eller dame til venstre hånd – var indlogeret i villaen i perioden
inden kongens død i 1912. Om hun boede der i de år, hvor der ikke var nogle
lejere registreret, eller om kontreadmiral C.A. Garde og frue i årene 1906
- 1912 var de hjælpsomme sjæle, der lagde hus og tyende til, vides ikke. Men
kongen og C.A. Garde kendte i hvert fald hinanden rigtig godt fra kongeskibet
Dannebrog, og lejemålet varede i samme periode som Frederik VIII var konge og
havde sommerresidens på Charlottenlund Slot, hvis slotspark - via jernbanestien
- kun lå få hundrede meter fra villaen.
Man kan vel antage, at den ærbare konge –
som senere tragisk blev fundet død foran et glædeshus i Hamborg – nøjedes med diskret
og uforstyrret at drikke te sammen med en unge kvinde i altanstuen på 1. sal.
En anden mulighed er naturligvis, at kongen blot opvartede enkefru og
admiralinde Garde efter ægtefællens død.
Historien om kongens elskerinde stammer helt
tilbage fra Christoffer Frode Müller og da kongehuset endnu ikke har
offentliggjort Kong Frederik VIII’s private arkiver, må vi nøjes med at stole
på fortællingen.
Området har altid været kendt for sine smukke
haver, og Gudrunsvej 22 stod ikke tilbage for andre haver. Efter at Villa
Mowgli var blevet bygget i 1898/99 blev den omkringliggende have smukt anlagt
med plæne, stier og blomsterbede. Havearkitekten var uddannet på Danmarks
første havebrugsskole, Vilvorde Havebrugshøjskole i
Charlottenlund, der var blevet oprettet i 1875. Vilvorde
var oprindelig et lille stråtækt traktørsted der hed Skovlyst, men i 1873 blev
hovedbygningen og cirka 20 td. land erhvervet af gartner Stephan Peter Nyeland
(12. september 1845 – 11. december 1922), der omdannede det lille traktørsted
til en havebrugsskole. I 1875 blev navnet ændret til Vilvorde
efter en belgisk by, hvis havebrugsskole Stephan Peter Nyeland besøgte flere
gange.

Stephan Peter
Nyeland.
Senere udviklede og til dels passede
Danmarks første kvindelige havearkitekt, Anka Helene Elisabeth Rasmussen (13.
januar 1893 – 27. juni 1977), haven. Hendes bygherrer var ofte kendte personer
som tegneren og forfatteren Robert Storm Petersen og skuespilleren Betty
Nansen, eller betydende og indflydelsesrige folk med titler som admiralinde,
vekselerer, direktør, grosserer eller højesteretssagfører.
Over alt i haven findes stadig rester af de
oprindelige små gangstier og bænke, der kunne benyttes når man skulle nyde den
smukke og frodige have. Som det kan ses på et gammelt billede fra april 1964,
var der helt op i 1960'erne et fuglebad, en flagstang og et solur i baghaven.

Flagrejsning i
baghaven omkring 1970, da Villa Mowgli var et studenterkollegium.
Der har gennem tiderne været flere terrasser
i haven. Den stadig eksisterende terrasse med bord og bænke af sten er den
ældste, men blev dog rykket længere tilbage i haven i 2006. Der har også ligget
en terrasse på plænen udfor væksthuset mod banen, men gennem tiderne var den
vokset til med græs to gange inden den i 1995 blev fjernet, og fliserne brugt
som gulv i Det hemmelige rum i kælderen.
Der var oprindelig perlegrus på
indgangsstien i forhaven og rundt om grunden var et flot 60 centimeter højt grå-grønt træstakit med en lille låge i det sydlige hjørne
ud mod stien langs banen. Stakittet langs de to offentlige stier holdt i næsten
100 år og blev først i 1997 erstattet af et trådhegn og en hæk af
Laurbærkirsebær. Rester af perlegruset blev fundet, da fliserne i forhaven blev
udskiftet med brosten i 1996. I bunden af fliserne var der aftryk af Politiken
og Villabyerne fra 1938, hvorfor perlegruset formentlig er blevet overdækket
omkring dette tidspunkt.
Brændeskuret
blev bygget sommeren 2001.
I maj 2006 blev et stort lærketræ, der stod i
hjørnet af grunden ud mod stierne, fældet. Ligeledes blev fældet seks Ahorn og
birketræer ud mod banen. Af årringene kunne man se at de på det tidspunkt var
godt 85 år gamle, og derfor plantet i Christoffer Frode Müllers tid. Der var
brænde til og med 2009.
I juni-august 2006 blev der rejst et 50
meter langt støjhegn mod bane. Da det skulle være 2,7 meter højt, blev det p.g.a. hegnsloven opsat 90 cm fra skellet. Der blev
benyttet 50 + 75 mm Rockwool terræn batt Industri.
Der medgik knap 3 tons stål (H-jern, U-jern og armeringsnet), samt 17
kubikmeter Rockwool og 3 kubikmeter beton. En overlægger vejer 86 kg og det
hele er svejset sammen med mulighed for at give sig ved kulde og
varmepåvirkning. Da hegnet blev opsat indenfor skovbyggelinien
blev der givet dispensation til rejsningen fra Skov- og Naturstyrelsens regler
af kommunalbestyrelsen i Gentofte.
”Albertslund”, der var et lille skovområde
opkaldt efter husets søn, blev sløjfet, jorden renset og planeret, Ølandsfliser
og møllehjulet flyttet ned i hjørnet, et stenbed anrettet og to bænke lavet af
et af de fældede træer. I forhaven blev en tres år gamle buske fjernet for at
give mere luft.
Det var en kæmpe anlægsopgave og vi var så
heldige at vor au pair piges forældre kom fra Rumænien
og hjalp. Der blev opgravet en kubikmeter gamle fliser og sten. Flere af
fliserne lå 15 cm under jordoverfladen og havde udgjort et smukt stisystem
etableret godt 100 år før – inden løv år efter år havde dækket dem.

Baghaven efter at
”Albertslund” blev nedlagt og et støjhegn rejst i 2006.
Det nuværende stakit mod Gudrunsvej blev
rejst i 1970'erne og erstattede et højt metalhegn, medens raftehegnet mellem
Gudrunsvej 22A og 22B først blev rejst i sommeren 1995, efter at de to haver,
siden opdelingen i 1963, nærmest havde fungeret som ét fællesareal. Dette på
trods af at de var en betingelse i skødet i 1963, at der skulle rejses et hegn.
I april 1968 blev det oprindelige hegn rundt om gårdhaven udskiftet med et nyt
bræddehegn, der igen blev erstattet med et raftehegn i sommeren 1995.
Skellet mod de offentlige stier blev
allerede fra starten beplantet med træer - bl.a. en række elmetræer, der alle fik elmesyge og måtte
fældes i 1994/95. En Thuja-busk i forhaven, der
stod mellem garagen og selve villaen var i vores ejertid blevet dobbelt så høj
og var vokset over tagrenden. Den blev fældet i 2023, og var da godt 50 år
gammel. Et enebærtræ i baghaven hører til den oprindelige beplantning. Ud over
det eksisterende enebærtræ stod der oprindelig også et enebærtræ midt på
græsplænen mellem dagligstuen og banen. Et skud fra et elmetræ blev reddet og
fik lov til at leve en beskyttet tilværelse i en urtepotte i fem år og blev
derefter genplantet ved stien mod Gudrunsvej 24, da villaens datter blev født i
år 2000. Træet blev dog ramt af elmesyge igen i 2024. Egetræet blev plantet da
villaens søn blev født i 1997, og hængebirken blev plantet da Villa Mowgli blev
købt i 1993.
Omkring 1913 blev der plantet et fyrre- og
et birketræ i forhaven syd for indgangsstien og i 1921 et japansk ahorntræ ved
terrassens trappe. Da træerne blev fældet i 1993, var de alle vokset et
betydeligt stykke over huset. På den nordlige side af indgangstien
- under kastanjetræet - blev i 1970'erne etableret et højbed, der blev delvist
ryddet igen i 1996.
Der har altid været mange frugttræer i
haven, og efter at nabogrunden var blevet købt i 1936, blev der plantet
yderligere blomme-, kirsebær- og andre frugttræer der. På grund af rustangreb
måtte et pæretræ fældes i 1994 og et blommetræ i 1995. Træerne var på det
tidspunkt begge cirka 60 år gamle og efter at de havde prydet haven i mange år blev de ophugget, kløvet og brugt
til brænde. Mange andre træer måtte lade livet allerede da nabohuset
skulle opføres. Senest blev et gammelt æbletræ sygt. Det blev gravet op i 2014
og var da knap 100 år gammelt. En tvilling til træet blev fældet i 2020 og
havde da rundet 100 år.
I det sydvestlige hjørne af gårdhaven var
fra starten – som tidligere beskrevet - placeret et gammeldags rødt lokumsskur
med et pænt udskåret hjerte i døren. Lokummet tjente som ejendommens eneste
toilet helt op til 1913, men blev først fjernet i 1960'erne.

Glaseret klinke af ukendt oprindelse indmuret i Villa
Mowgli. Forestiller Jomfru
Maria og Jesusbarnet (Madonna med Barn). Kronerne
skulle fremhæve
deres hellige status, medens teksten skulle betyde
”Guds Moder”.
Christoffer Frode Müllers anden kone, Sofie Cathrine
Hall, var selv gartner og havde en stor del af æren for havens udseende. Sofie
Cathrine Hall anlagde, der hvor nabohuset nu ligger, en stor køkkenhave med
mange forskellige grønsager, og det fortælles, at Sofie Cathrine Halls tre
steddrenge skulle benytte lokummet i gårdhaven for at skaffe gødning til
køkkenhaven.
Fra omkring 1918 lå der et hønsehus og et
kaninbur, der hvor naboen nu har sin carport, og ud mod vejen opsatte
Christoffer Frode Müller en stor støbejernslåge fra Dano. På lågen stod "Hunden
bider", men da lågen blev fjernet i 1970'erne, var der ingen hund, der
bed længere.

Billede af baghaven
fra 2021.
Togbanen er - og har altid været - Villa
Mowgli’s nabo.
Det Sjællandske Jernbaneselskab anlagde som
koncessionshaver, togbanen mellem Klampenborg og København over Hellerup og
Charlottenlund, længe før Villa Mowgli blev bygget. Arbejdet blev påbegyndt
allerede i maj 1862, og den 21. juli 1863 kørtes indvielsesturen, hvorefter
Klampenborgbanen endeligt blev åbnet dagen efter, den 22. juli 1863.
Den 26. juli 1863 var den første søndag i
Klampenborgbanens historie. Allerede fra morgenstunden blev togene bestormet af
københavnere, der ville benytte den nye bane til en sommerudflugt på landet.
Der blev denne første søndag afsendt i alt 34 tog fra København med mere end
16.000 passagerer. Turene fra København forløb uden problemer.
Da passagererne skulle hjem igen, opstod der
imidlertid store problemer, idet ikke blot de passagerer, der havde taget toget
ud om morgenen og om formiddagen ville hjem, men også de københavnere, der med
dampskib, hestesporvogn eller hyrevogn var taget fra København til Klampenborg
eller Charlottenlund.

Kongefamilien på anløbsbroen ved Bellevue.
Der opstod en voldsom trængsel på de to
stationer og ved billetlugerne, der igen medførte, at der opstod slagsmål
mellem flere af mændene da man prøvede at komme ind i togene gennem både døre
og vinduer. Samtidig hylede kvinder og børn i vilden sky.
Stationens personale sled hårdt i det, men på
trods af at der fra kl. 20:00 hver halve time blev afsendt overfyldte tog mod
København, kom de sidste skovgæster først hjem ved firetiden næste morgen.
Stort set alle ruderne i de to nye stationer i Charlottenlund og Klampenborg
var da blevet smadret. Aviserne berettede at billetteuren
(datidens billetsælger) var blevet slået halvt fordærvet, at mange den aften
måtte gå hjem fra Charlottenlund eller Klampenborg til København, samt at den
nye togstrækning tegnede til at blive en glimrende forretning. Få dage efter
måtte direktionen i Klampenborgbanen bede politidirektøren om at udstede en
offentlig bekendtgørelse om, at man ikke måtte færdes langs jernbanestrækningen
– men mon ikke det havde været den korteste vej hjem.
Allerede i 1862 havde løjtnant C.F. Garde
fået koncession på en hestesporvej fra Skt. Annæ Plads til Tårbæk, men den
gennemførtes aldrig længere end til Slukefter i
Hellerup. Dampskibene fra Dampskibsselskabet Øresund havde dengang en anløbsbro
ved Charlottenlund i det område der dengang blev kaldt Ny Ordrup lige syd for
Skovshoved Hotel. Dampskibet sejlede i kystfart mellem København,
Charlottenlund, Taarbæk og Bellevue.
Prisen for en billet fra Nordbanegaarden
i København til Charlottenlund eller Klampenborg var dengang 12 skilling. Til
sammenligning tog en kaperkusk 24 skilling og dampbådene
18 skilling for befordringen til Bellevue.

Damplokomotivet Odin
på Klampenborg Station i 1866.
I sommerhalvåret var der i starten seks
daglige damptog i hver retning, medens der i vinterhalvåret kun var tre ture.
For at kompensere for dette afsendtes hver vintermorgen en hestetrukket
personvogn fra Klampenborg til Hellerup, hvor vognen blev tilkoblet et damptog
fra Lyngbybanen, der var blevet åbnet den 1. oktober 1863 under mere
stilfærdige forhold. Når personvognen vendte tilbage fra København om aftenen,
red stationskarlen i Klampenborg til Hellerup og hentede den.
Da
man var usikker på interessen for den nye togbane, havde man forsigtigt kun
anlagt et enkeltspor mellem Hellerup og Klampenborg. Passagertallet steg dog
stødt, og i 1870'erne havde man nået grænsen for den enkeltsporede banes
kapacitet trods indsættelsen af to-etagersvogne. Man
anlagde derfor det andet hovedspor mellem Hellerup og Klampenborg, der blev
taget i brug den 1. april 1877. Det nye spor blev anlagt på østsiden af det
eksisterende spor, og igen måtte grundejerne holde for og afgive jord. I 1897 indviedes
Kystbanen, der mellem Hellerup og Klampenborg delte spor med Klampenborgbanen.
Stationsforstanderen på Charlottenlund
Jernbanestation hed fra 1866 Niels Høvring Grosche
(20. december 1827 – 22. august 1909), og han virkede fra 1877 tillige både som
postekspeditør (fra 1902 udnævnt til postmester) og telegrafbestyrer i byen.
Han styrede stationen, og det var ham, der fra perronen personligt gav alle
togene afgangstilladelse, når han var sikker på, at alle togets stampassagerer havde indtaget deres pladser.
Etatsraard og klædefabrikant
Jacob Heinrich Moresco (2. maj 1828 – 29. oktober
1906) fra landstedet Villa Adelaide (opkaldt efter moderen - haven er nu Ordrup
Park ved Morescovej), grosserer Christopher Rudolph
Puggaard (7. januar 1818 – 9. december 1885) fra Krathuset og Skovserkonerne,
der skulle til København med fisk, var faste passagerer med morgentoget. Hvis
nogen kom lidt for sent, holdt han toget tilbage, hvilket ofte kunne give
forsinkelser. Ikke noget under at han blev både Ridder og udnævnt til Dannebrogsmand.
Han var også kaptajn og fratrådte som stationsforstander i 1896 og som
postmester i 1906.
Fra 1909 hed postmesteren Einar Holbøll (20.
december 1865 – 23. februar 1927). Det var ham der opfandt julemærket, der
finansierede rekonvalescenthjem for børn (julemærkehjemmene). Der står et
monument af ham på stationspladsen.

Frimærker med Villa
Mowgli som motiv.
Villa Mowgli skulle naturligvis ikke stå
tilbage for Einar Holbølls julemærker, hvorfor der i midten 1990’erne blev
lavet frimærker med et motiv af villaen. Frimærkerne havde i lighed med
julemærkerne ingen portoværdi, men blev lavet som en joke i forbindelse med at
Ordrup ville have 2925 som sit eget postnummer. Der blev opsat et banner tværs
over Ordrupvej, hvor man opfordrede til at skifte postnummeret. Postvæsnet
kunne ikke se det sjove i joken, hvorfor Ordrup stadig hører under
Charlottenlund-postnummeret.
Charlottenlund Jernbanestation havde i de
gode gamle dage ventesale til både de kongelige, til 1. klasse og til almindelige
rejsende. Fra 1937 var der kun et fælles venteværelse, og i dag må man nøjes
med et lille afluk, hvis døren da ikke er aflåst.
I 1898 bestod stationens personale - ud over
stationsforstanderen - af to assistenter, en elev og fire portører. I dag er
der vist ingen ansatte til stede.

Niels Høvring Grosche i 1906.
Ud for Villa Mowgli lå Banevogterhus nr. 30
(eller ledvogterhytte). Det var beboet af baneformand Rasmus Olsen, hans kone
og tre børn. Rasmus Olsen sikrede fra 1876 at bommene gik op og ned når et tog
passerede. Banevogterhuset, der var ejet af Statsbanerne, havde adresse på det
der dengang hed Eigaardsgade (nu Ejgårdsvej), men var
dog ikke nummereret.

Banevogterhus nr. 30
ved jernbaneoverskæringen i forlængelsen af Ejgårdsvej/stien
set fra Villa Mowgli i 1900. I baggrunden ses
ledvogterhuset.
På det tidspunkt gik Eigaardsgade
helt ned til Ordrup Jagtvej. Senere blev vejen forbi Villa Mowgli mellem
Gudrunsvej 22B og 24 omdannet til en sti og Gudrunsvej 24 fik tillagt 487 kvm
grund til haven. Gangstien/gaden var allerede blevet tinglyst på stykket via
matr.nr. 3a Ordrup den 14. november 1855.

Matr.nr. 3iz
af Ordrup der blev tillagt Gudrunsvej 24.
Efter at Klampenborgbanen var blevet taget i
brug, begyndte villaer at skyde op omkring og langs togbanen. Banen forvandlede
Charlottenlund, Ordrup og Klampenborg fra landliggeridyl til populære
udflugtsmål for københavnerne.

På kort fra 1899 ses
banevogterhuset, de ubebyggede områder øst
for banen og vejen
fra Villa Mowgli til Ordrup Jagtvej.
Af nedenstående togplan fra 1898 ses,
hvorledes togene kørte i året, da Villa Mowgli blev bygget. Toghyppigheden var
nu kommet op på 11 ture i hver retning på vinterhalvårets hverdage og cirka det
dobbelte på sommerhalvårets søn- og helligdage.
Togstrækningen var desuden blevet forlænget
helt til Rungsted, med holdt i Springforbi, Skodsborg og Vedbæk. Ved
Springforbi skete der dog kun togstandsninger i sommerhalvåret, og kun hvis der
var rejsende at optage eller afsætte.

Ordrup Station blev indviet i 1924, det
tredje og fjerde togspor forbi Villa Mowgli blev anlagt af Statsbanerne op til
1928, og indviet den 15. maj 1928. Det blev Danmarks første 4-sporet
banestrækning. I forbindelse med udvidelsen fik nogle husejere på østsiden af
de to eksisterende spor beskåret deres grunde ligesom banevogterhuset på
billedet ovenfor beliggende ved jernbaneoverskæringen i forlængelsen af
Ejgårdsvej/stien måtte lade livet. Herefter var det slut med at krydse banen
for at komme til Gyldenlundsvej, og man måtte i stedet benytte det nye
viaduktanlæg ved Fredens Plads.

Berlingske Politiske
og Avertissementstidende fra den 11. august 1921.
Allerede i 1923 var en viadukt over banen
blevet etableret ved Jægersborg Allé. Ifølge Dansk Jernbaneblad var den nye
viadukt et stort sikkerhedsmæssigt fremskridt, idet overkørslen året inden
viadukten var blevet taget i brug, blev benyttet af 375.000 køretøjer, 730.000
cykler og 2.060.000 fodgængere. Endvidere nævnes i
bladet at 200 daglige klokkeringninger for togene kunne spares med den nye
viadukt. At det kunne være farligt at krydse en togoverkørsel, understreges
også af, at en skoledreng et par år inden var blevet påkørt af et tog ved
overgangen ved Bregnegårdsvej og var afgået ved døden.
I forhold til omkring 1898 er der i dag
flest togafgange på hverdagene, medens togdriften omvendt i dag er nedsat på
søn- og helligdage.
Den
3. april 1934 åbnedes strækningen Frederiksberg - Hellerup - Klampenborg for
Danmarks første elektrificerede tog.
I modsætning til på indvielsesdagen giver
banen ingen større problemer i dag. Kun én gang inden for de seneste mange år
har banen givet anledning til ballade på Gudrunsvej. En sommermorgen i 1965
blev der ved stien ned til banen langs Villa Mowgli’s grund opstillet et stort S-togskilt. Vejens beboere undrede sig og mente, at
én station i henholdsvis Charlottenlund og Ordrup måtte være rigeligt.
Gemytterne faldt dog til ro igen, da de
konstaterede, at S-togskiltet blot skulle fungere som baggrundskulisse i Saga
Studios nye film En ven i bolignøden, hvor en gruppe beboere samledes til kamp,
idet deres hus skulle nedrives til fordel for en P-plads. Huset, der i filmen
skulle rives ned, er ejendommen Ejgårdsvej 36 lige overfor Villa Mowgli. I
filmen er Ejgårdsvej udskiftet med navnet Fredhvilevej. Med lidt god vilje kan Villa Mowgli ses som
baggrundskulisse. I filmen medvirker bl.a. Birgit Sadolin, Morten Grunwald,
Sigrid Horne-Rasmussen, Ove Sprogøe og Karl Stegger. Saga Studio lå dengang på
Annettevej, der hvor Sagaparken ligger i dag, og hvor Familien Lars Emil Bruun
tidligere havde deres landsted og park.

Billede fra En ven i
bolignøden med S-togskiltet og stien fra 1965.
Det var omkring 1898 fint at eje en villa
tæt ved jernbanen. I dag må man nøjes med at nyde synet af de gamle veterantog
med de lange røgfaner, der med jævne mellemrum bruser forbi med forskellige
damptogsentusiaster.

Charlottenlund
Jernbanestation i starten af 1900-tallet efter
udvidelsen af den
gamle station i 1898 (postkort).
Gennem tiderne har Villa Mowgli gennemgået
flere ændringer og udvidelser. Udvidelserne blev til sidst så omfangsrige, at
der måtte søges om tilladelse til at overskride byggeprocenten. Nedenfor er de
væsentligste ændringer og udvidelser gennemgået.
Oprindeligt var der ikke
vand, toilet og bad i huset.
Frem til 1900 bestod
vandforsyningen i Ordrup og Charlottenlund af gadebrønde eller brønde på
gårdspladserne, hvorfor der af gode grunde ikke var indlagt vand i Villa
Mowgli, da villaen blev opført. Den nærmest vandpost var formentlig den der
stod ud for den gamle politistation i Ordrup på hjørnet af Ordrupvej og
Morescosvej. På grund af nedsivning fra latriner og møddinger, blev
vandkvaliteten efterhånden dårligere og dårligere og det blev nødvendigt med en
anden løsning. Man indviede derfor Gentofte Kommunes første vandværk -
Bregnegårdsværket på Mantziusvej - den 1. juli 1900. Vandet kom fra seks
boringer nær vandværket samt fra Kildeskoven, blev ledt til en samlebrønd,
herfra videre til et stort sandfilter og herfra igen videre til det nye
vandtårn på H. A. Clausensvej på det høje terræn nær Gentofte Kirke. Det var
herefter muligt at forsyne bl.a. Ordrups beboelsesejendommene med rent vand med
et passende vandtryk. Senere fik kommunen flere vandværker og vandtårne, der
kunne honorere den voksende befolknings vandforbrug. Det er nærliggende at tro
at der blev indlagt vand i Villa Mowgli i årene umiddelbart efter 1900.
Brønden på hjørnet af
Ordrupvej og Morescosvej lå der hvor byens gadekær oprindelig lå. Gadekæret
tjente som byens branddam. Gadekæret fik til sidst tilnavnet Bropølen fordi
gadekærets renlighedstilstand ikke var den bedst tænkelige. Efter en del debat
blev det besluttet at den borger der fyldte gadekæret op og erstattede kæret
med en brønd, ville få skøde på det opfyldte areal. Det blev forpagteren på
Ordrup Kro, der i 1853 fik skøde på arealet. Desværre var vandstanden i den nye
brønd meget ringe, og i tilfælde af en brand ville brønden være komplet
værdiløs. Forskellige brøndgravere blev uden held og ved politimesterens
mellemkomst sat til at forbedre kapaciteten. Det viste sig imidlertid umuligt
at komme ned i den ønskede dybde fordi der under hele Ordrup ligger et par
meter tykt flyvesand, som det dengang var umuligt at grave sig igennem uden at
der konstant kom nyt sand til. Brønden med den ønskede kapacitet blev derfor
aldrig til noget, og i stedet blev rejst en træpumpe samme sted, der fungerede
indtil starten af 1900-tallet, hvor ovennævnte vandforsyning tog over.
Lokummet var som tidligere
beskrevet oprindelig placeret udenfor i hjørnet af gårdhaven. De første
toiletter med træk og slip blev etableret i marts 1913, i henholdsvis det der
indtil da var pigeværelset på 1. sal og bag trappen i kælderen. Toiletterne er
stadig beliggende samme steder, men der er dog sket flere ændringer gennem
tiderne.

Fra ansøgningen fra 1913 om
tilladelse til installation af toiletter.
Det oprindelige toilet i kælderen var ifølge
overleveringerne både blåt og ulækkert. Når man var på besøg, ville man helst
benytte det ”fine” toilet på 1. sal.
I midten af 1970’erne blev toilettet i
kælderen imidlertid istandsat og fik hvid kumme og håndvask, med hvidt og blåt
mosaik kakkel gulv.
Efter ansøgning fra byens blikkenslager, G. Strømann, gav kommunen i 1921 tilladelse til at etablere et
afløb via faldstammen til en håndvask på 1. sal. Toilettet blev indrettet med
en flot dobbelt porcelænshåndvask fra Johnson
Fireclay Co. Ltd fra byen Stoke-on-Trent i England, og med messingvandhaner,
træk og slip og med et stort badekar på løvefødder. Det varme vand til
badekarret kom fra en stor kobberbrændeovn med en vandkedel, der var stor nok
til at levere vand til flere bade. På væggene var der hvide Villeroy
& Boch fliser til skulderhøjde og i loftet stuk. Gulvet var støbt i
gammeldags terrazzo med hvide, sorte og brune sten.
Afløbet fra en gammel håndvask var indtil da
sket gennem et rør i ydervæggen, der førte vandet ud til afløbet i gårdhaven.
Også toilettet på 1. sal blev ændret i
midten af 1970’erne. Badekarret blev udskiftet med et miljørigtigt brusebad på
halvanden kvadratmeter, og der blev opmuret vægge omkring toiletkummen, så man
kunne sidde ugeneret for andre i rummet. Omkring toiletkummen og i bruserummet,
der lå i hjørnet op mod den ene væg til toiletkummen, blev lagt hvid/brune
mosaik kakler.
Endelig blev en stor støbejernsradiator, der
var blevet installeret, efter at kobberkedlen var revet ned, udskiftet med en
mindre og nyere model, ligesom afløbet gennem ydervæggen blev ændret til et
almindeligt afløb gennem en faldstamme.
I april 1995 blev toilettet på 1. sal
totalrenoveret, hvor den gamle dobbelte porcelænshåndvask som det eneste blev
bibeholdt. Toilettet blev indrettet med et indbygget hjørnebadekar omgivet af
et trappetrin og piller med italienske søjler af marmorbeton.
Terrazzogulvet, der efterhånden var påvirket
af tidens tand, blev belagt med rustikke grålige klinker, medens de gamle hvide
fliser blev dækket med nye.
Som der oprindelig havde været på toilettet
fra 1913, blev der igen installeret messinghaner i badekarret og i håndvasken,
ligesom stukken blev renset, repareret og bibeholdt.
Først i 2008 blev den nuværende messing håndklædetørre
opsat, idet rørføring i forbindelse med det nye køkken blev muligt gennem den
nedlagte skorsten.
I 1918 blev der etableret en veranda i
forbindelse med spisestuen, og ovenpå blev bygget en terrasse. Endvidere blev de to indbyggede garderobeværelser på 1. sal
sløjfet og arealet benyttet som gang ud til den allerede eksisterende altan,
idet den gamle dør fra altanstuen blev sløjfet. På gangen, hvor mærker efter de
oprindelige garderobeværelser stadig ses i loftet, blev opført det skab, der nu
står i hjørneværelset.
Det ene vindue i altanstuen blev blændet og
døren til den nye terrasse blev etableret, ligesom der blev indsat et vindue i
det ene værelse ud til den gamle altan.
Stueetagen og 1.
sal
Tilbygningen bestod oprindeligt kun af en
mindre grundmuret veranda med en dør ind til spisestuen og med fire vinduer ud
mod haven. Ejeren af Gudrunsvej 20, Georg Holm, måtte alligevel skriftligt
godkende opførelsen af verandaen og terrassen, idet byggeriet kun skete 1,8
meter fra skellet. Kommunen godkendte
projektet, idet afstanden til nærmeste bebyggelse var 30 meter. Den ubebyggede nabogrund blev senere
erhvervet af Christoffer Frode Müller.
Under tilbygningen blev etableret en
krybekælder med adgang fra haven gennem to låger, og således at udsigten fra
rullerummet i kælderen blev blændet.

Arkitekt W. Olsens
tegning af tilbygningen set fra øst og syd.
Efter ombygningen blev altanstuen benyttet
som soveværelse for Cathrine og Christoffer Frode Müller. Christoffer Müller
gjorde herefter dagligt morgengymnastik på altanen efter broderens anvisninger
til stor moro for områdets beboere.
Allerede i 1921 skete den næste ombygning,
idet den oprindelige veranda blev nedlagt til fordel for en udvidelse af dagligstuen.
Desuden blev den gamle altan på 1. sal ombygget til et nyt værelse, således at altanen blev løftet til 2. sal. Udfor to store
nye stuedøre blev opmuret den nuværende terrasse med nedgang til haven, og
endelig blev hovedtrappen formentlig ændret til den nuværende.
Før
og efter.
På terrassen var oprindeligt lagt fliser i
rød/hvide tern, men disse blev i midten af 1990’erne udskiftet med klinker, der
igen i 2021 blev udskiftet med de nuværende fliser, der var til overs fra
etableringen af poolen.
På 1. sal blev væggen mellem midterværelset og det nye endeværelse
flyttet cirka 0,5 meter ind i midterværelset, således at det nye værelse fik en rimelig størrelse.
Konsekvensen blev, at midterværelset nu ikke er helt
symmetrisk, medens endeværelset har et lille indhak.
I indhakket blev bygget en treetages køjeseng til ejendommens tre drenge.
Før
og efter.
Det nye værelse fik to vinduer, hvor man
mange år efter i karmen kunne finde gamle aviser fra 1. verdenskrig. Aviserne
var blevet benyttet som isoleringsmateriale.
Først i 2006 blev muslingeskaller og skjolde
opsat over terrassedørene og vinduerne i lighed med over husets øvrige vinduer.
Forme blev lavet af en stukkatør ud fra skaller og skjolde fra tvillingehuset
på Ejgårdsvej, hvor de var nedtaget pga. renovering.
Byggeaffald fra ombygningen og nedrivningen
af verandaen blev smidt i den oprindelige udekælder, hvor affaldet blev
indmuret og således lå urørt indtil 1996. I 1996 blev der – drevet af
nysgerrighed – brudt et hul i væggen indtil rummet. Til ejernes store
fortrydelse indeholdt rummet ingen hemmelige skatte, men kun - udover mursten
og mørtel - gammelt stuk, en ølprop, en gammel
sikring, en tom parfumeflaske fra Roger & Gallet
i Paris, fire lag gammelt tapet, samt to tændstikæsker og en tom æske Fin
Kentucky skraatobak efterladt af håndværkerne. Rummet
blev med håndkraft tømt for cirka 10 tons byggeaffald og fungerer nu som
krybekælder til lager. Efter tømningen blev murene pudset og malet, og gulvet
blev belagt med havefliser, der var blev fundet under
græsset mellem væksthuset og banen i 1995, hvor fliserne tidligere havde
fungeret som terrasse. Indgangen blev muret op som en buet adgangslem med
en trælåge.
Før ombygningen i
1921 var der adgang til Det hemmelige rum fra haven. Under
ombygningen blev
rummet fyldt helt op med byggeaffald og muret til.
Det
var arkitekt Peter Henrik Ludvig Jensen (født 7. februar 1883), der forestod
udformningen af tilbygningen. Ludvig Jensen, som han kaldte sig, voksede op i
en villa på Tagensvej 39, hvor faderen var handelsgartner, men drev i 1921 sin
arkitektforretning fra Tagensvej 44 i København.
I januar 1923 blev der af G. Strømann indlagt centralvarme i hele huset, og alle
brændeovnene blev fjernet. Varmekilden var en original tysk Strebelkedel,
der oprindelig blev fyret med koks, men som senere blev ombygget med en
oliebrænder. Den gamle Strebelkedel blev benyttet i
ejendommen indtil 2012.
Ifølge de oprindelige fyringsanvisninger var
kedlen ”Bedst til gode Gaskoks i Stykker af en Størrelse fra 50 til 80 mm”.
Asken skulle ifølge anvisningen ”sigtes gennem et Staaltraadssold
med cirka 15 mm Maskevidde, hvorved det blive muligt let af de tilbageblevne
større Stykker at udskille det ikke udbrændte”. Anvisningen huskede ejeren
på ”at henlede tjenestefolkenes opmærksomhed på dette”, da det ville være i
hans interesse”.
I nødstilfælde kunne kedlen også benyttes
med brunkulsbriketter, tørv eller træaffald.
For at undgå kalk i systemet blev det
tilrådet, at der kun blev fyldt regnvand på kedlen. I nødstilfælde kunne man
blot koge vandet inden på- eller efterfyldning. For at der ikke skulle ske
skader på anlægget måtte der ”aldrig tappes Vand af Kedlen til rengøring
eller andet Brug”.
Sikkerhedskravene var mere lemfældige i
1923, idet utætheder – ifølge anvisningen - blot kunne tætnes med asbest.

Brugsanvisningen til den oprindelige kokskedel.
At fyre med koks krævede meget rengøring og
rensning, og der var meget arbejde med at vedligeholde brændslet. Men alligevel
har det formentlig været en lettelse i forhold til at passe husets tidligere ni
brændeovne.

Den gamle kedel med en oliebrænder fra 1950’erne.
Senere blev det endnu lettere, idet der fra
1957 blot blev fyret med olie. Som det ses på billedet, bestod ombygningen i,
at man monterede en oliebrænder på den eksisterende kedel, så den kunne
forstøve og brænde olie i stedet for fast brændsel. En gammel oliemåler, der hang i kælderen indtil 2012, blev dog
afbrudt, da den gamle olietank på 4.000 liter fra september 1957 - efter de
lovpligtige 20 år - blev udskiftet med en ståltank med glasfiberarmeret
polyester i september 1977, hvorfor man indtil 2012 måtte ulejlige sig ud i
haven med en målepind for at måle oliestanden.

Den gamle olietank
blev opgravet i 2012.
Brændeovnen i stuen blev retableret i
september 1979, medens ovnen på 2. sal blev retableret i 1963 og igen i
november 1995.
I juni 1936 blev den veranda og terrasse,
der var blevet opført i 1918 udvidet, og der blev opført et væksthus, hvor
Cathrine Hald kunne fornøje sig med sine blomster og kaktus.
De fire vinduer i verandaen blev sløjfet og
i stedet blev disse erstattet af ét stort 15-delt vindue ud mod haven. Døren ud
til verandaen blev fjernet, idet hele væggen mellem verandaen og spisestuen
blev nedrevet, samtidig med at den gamle tilbygning blev udvidet i begge sider.
Efter ombygningen fremstod den gamle spisestue, verandaen og den nye tilbygning
som en stor ny spisestue med et nylagt egetræs parketgulv. Under den nye
tilbygning blev lavet endnu en udekælder, og en trappe blev bygget, så man kunne
komme fra den nye spisestue direkte ned til det nyopførte væksthus. Oprindeligt
var det planen at isætte nye kældervinduer under det nye spisestuevindue, men
det blev i stedet besluttet at isætte tre låger og etablere en udekælder.
Vinduerne i kælderrummet under spisestuen vender således ud mod udekælderen,
hvorfor kælderrummet kaldes Det Mørke Rum. I den nye udekælder kan kanten af
den første tilbygning stadig ses.

Villa Mowgli i 1938 med det nye væksthus og den nye
terrasse.
I spisestuen blev indrettet et vitrineskab
med hylder, og væggene i tilbygningen blev beklædt med ”brunt cigarkassetræ”,
der var lavet af krydsfiner med finer af eg. Under det store nye vindue blev
ophængt blomsterkasser af kobber, der senere blev udskiftet med en stor
støbejernsradiator.
Selve væksthuset blev på godt 15 m2
med 2,70 meter til loftet. Rundt i kanten blev opsat 8 mm eternitplader som
borde og på gulvet blev lagt 3 cm perlegrus. For at der ikke skulle komme
vinterfrost i væksthuset blev der installeret et cirka 10 cm rundt varmeapparat
hele vejen langs vinduerne. Varmeapparatet blev afbrudt i 1980’erne og fjernet
helt i 1993.
Mellem væksthuset og den gamle terrasse fra
1921 blev støbt et plateau med en lille trappe ud til haven.
Det var arkitekt Aage Rafn, der forestod
arbejdet, og det samlede tilbud på tilbygningen og væksthuset blev på i alt 8.538
kr. Men så skulle eksisterende jerndragere også genbruges og fabrikant Müller
måtte selv levere de øvrige jerndragere til projektet.
Som beskrevet ovenfor var Aage Rafn
eksponent for nyklassicismen, og som det kan se var tilbygningen også præget af
enkelthed, rene former, lige linjer og en harmonisk opbygning, som var
kendetegnende for denne stil.


Den gamle
tilbygning…
og den nye.
Siden 1936 har tilbygningen stort set kun
fungeret som væksthus. En undtagelse er dog i perioden fra sidst i 1960’erne
til starten af 1968, hvor væksthuset var indrettet og fungerede som ”udekøkken”
for kollektivet. Det ”ulovligt installerede køkken i verandaen” kunne
kommunen dog ikke acceptere, hvorfor det blev fjernet.
Der var allerede efter ansøgning af Nicolaj
William Petersen den 22. december 1913 og den 11. februar 1914 blevet anlagt et
"Automobilskur", men i 1941 ansøgte Christoffer Müller om at
opføre en garage. For at måtte opføre garagen skulle Christoffer Müller den 22.
september 1941 tiltræde en deklaration om, at kommunen altid måtte kræve, at
den blev nedrevet igen, uden at kommunen i den anledning kunne afkræves
erstatning. Deklarationen blev tinglyst og er stadig lyst som servitut på
ejendommen.
Garagen blev opført af 30 cm hulmur i mursten med ståltrådsbindere med
pudsede facader, søjler med 4 cm fremspring og sort glaseret tegl ligesom
hovedejendommen.
Facade mod nord og syd.
Selv om det under krigen i 1941 må have
været særdeles dyrt at købe brændsel til opvarmning af ejendommen, blev garagen
alligevel bygget med indlagt centralvarme.
Centralvarmen er nu fjernet, men ellers står
garagen, som da den blev opført, dog med den eneste ændring at den har fået
indlagt el og i 2012 fik nye spær og tegl, samt en elektrisk port med
fjernbetjening. Kanalen til centralvarmerørene ses stadig som et hul i gulvet.
Garagen er tegnet af arkitekt Helmer Peter Remark født Jensen (15. maj 1913 – 26. november 1994), og
holder sig meget til stilen for Villa Mowgli. Helmer Peter Remark
blev senere en meget anset arkitekt og mest kendt for at tegne børnehaver og
ungdomsinstitutioner, der blev opført adskillige af landet over. Helmer Peter Remark var gift med Laura Benedicte Wulff Møller (4.
oktober 1919 - 2004), hvis mor, Laura Petra Ellen Marie Jacobsen (11. april
1875 – 7. april 1948) havde en søster, der hed Cecilie Julie Adeline Jacobsen
(14. november 1873 – 17. juni 1946), der var gift med ovennævnte Poul Simon
Valdemar Müller, der igen var bror til Christoffer Frode Müller. Verden er
lille og Helmer Peter Remark skulle være blevet valgt
til opgaven på grund af denne relation. Igen viste Christoffer Frode Müller at
han gerne ville hjælpe unge mennesker i gang.

Uddrag fra
Villabyernes Blad den 27. maj 1920.
Allerede i 1920 var automobiler begyndt at
blive et problem på Gudrunsvej - som ovenstående læserbrev fra Villabyernes
Blad viser, hvor der klages over en automobilcentral og dens automobilskur på
Gudrunsvej 10. Desværre fik læserbrevsskribenten ret, og der opstod den
følgende september en brand i carporten, da ejeren skulle fylde benzin på sin
automobil medens et brændende lys stod i nærheden. Benzindampene antændes og
fremkaldte en eksplosion, der antændte tre biler og et lager af gummivarer.
Skaderne løb op i 18.000 kr., hvor kun 12.000 kr. var forsikret. Brandvæsnet
fra Hellerup forhindrede at branden spredte sig til ejendommen.
Den 7. oktober 1920 forsvarer kommunens
bygningsinspektør sig og udtalte til avisen, at ”Det aabne
Halvtagsskur, hvorom sagen drejer sig, og som benyttes til Reparationsværksted,
er opført i Overensstemmelse med Bygningsreglementet og Brandvæsnets fastsatte
Bestemmelser”. Ejeren af Gudrunsvej 8, svarede at det var en skandale, at
kommunen tillod noget så brandfarligt i et villakvarter, og ejeren af
Gudrunsvej 10 fik et påbud om at bygge en brandsikker mur ind mod naboen. I
Automobilejernes Bog fra 1919, der var en registreringsnummerfortegnelse over
samtlige indregistrerede biler i Danmark, fremgår det, at der var seks
automobiler tilknyttet adressen.
Ejeren af Gudrunsvej 10 – den dengang kendte
travsportsmand, grosserer, fabrikant og vognmand Robert C. Madsen - gjorde sig
også bemærket en måned senere, hvor B.T. den 25. november 1920 kunne berette at
politiet natten inden havde stormet hans villa og fundet en spillebule. Man
beslaglagde 4.000 kr. og rouletten, og anholdte 11 spillere, hvoraf mange
ifølge avisen var kendte københavnere. Den 9. december 1920 kunne Ekstra Bladet
supplere med at spillebulen var af ældre dato og at Robert C. Madsen endda
havde fået trykt reklamekort for sit foretagende med teksten ”Selskabelig
Sammenkomst fra kl. 4-11”. Det var med sådan et kort i hånden at
politiassistent Rudolf Nielsen om natten trængte ind i villaen med sine
betjente og overrumplede det celebre selskab, medens han ifølge avis skulle
have sagt ”Undskyld at jeg kommer så sent, men jeg kommer måske endda
tidsnok”. Danmarks Venstresocialistiske Parti døbte villaen Charlottenlunds
Monte Carlo, og senere kom det frem at ”hazardbulen”
havde eksisteret i et års tid og at der ofte blev spillet for op til 60.000 kr.
Men så faldt der også bøder på mellem 60 kr. og 400 kr. til de anholdte. De 2.000
kr., der havde ligget i kasinobanken ”blev beslaglagt til fordel for de
politifolk der havde deltaget i kup’et”. Man
havde længe undret sig over, at Robert C. Madsen kunne føre et så flot liv med
automobiler og travstald. Nu var det endelig opklaret.

Familien Timmols bil ud for Gudrunsvej 20 med Villa
Mowgli i baggrunden fra den 28. august 1932.
Den første arkitekttegning af ændringen af 2.
sal blev af arkitekt Martin Svendsen fra Ordrup allerede udarbejdet den 18.
november 1917 eller knap et år efter at Chr. Frode Müller havde erhvervet
ejendommen. Ansøgningen til kommunen er dateret 30. marts 1918. Tegningerne
førte i 1918 til, at der blev bygget en zinkbeklædt kvist mod vejen, og der
blev etableret et pigeværelse på cirka 10 kvadratmeter mellem det nye vindue i
kvisten og de eksisterende skorstene. Barnepigen kunne således gå direkte
gennem tørrerummet på loftet og ned ad trappen, der gennem et skab endte i
børneværelset på 1. sal.

Tegning fra 1917 af
ombygningen.
Næste
store ombygning af loftsetagen skete først 44 år senere i 1962/63.
I bladet
Bo Bedre var der i februar 1964 en større artikel – med flotte billeder - om
Villa Mowgli. Artiklen, der inkl. forsiden var fordelt på 19 sider, hed Der er
masser af plads oppe på loftet. Artiklen beskrev hvorledes et ungt ægtepar – i
bolignødens tid – havde fået lov til at indrette bolig på 2. salen i 1962/63.

Forsiden af Bo Bedre fra februar 1964.
I artiklen kunne bl.a. læses om, hvordan de
to unge mennesker havde cyklet rundt i kvarteret for at finde et sted at bo, og
om hvordan de var faldet i snak med Christoffer Frode Müller, der gik og
ordnede haven. Snakken endte med, at de to unge mennesker fik lov til at
indrette bolig på 2. salen, hvor der på det tidspunkt kun var indrettet
pulterrum samt det beskedne pigeværelse i forbindelse med kvisten.
At den ene af de unge mennesker var
Christoffer Frode Müllers barnebarn, meldte historien ikke noget om.
Omdannelsen fra pulterrum til 80m2
husrum kostede ifølge artiklen knap 16.000 kr. plus de unge menneskers egen
arbejdskraft. De unge mennesker skulle selv betale for ombygningen, mod at de
til gengæld kunne bo gratis i de tre første år.
Inden ombygningen kunne begynde, skulle 2.
salen ryddes for de gamle kister, lamper, smukke gamle kakkelovne m.v., der var
opmagasineret i rummet. Under dette arbejde blev hovedtrappen lettere
beskadiget, og et trin knækkede, idet en stor dragkiste styrtede ned midt under
nedhejsningen fra kvistvinduet.
Allerede i Bo Bedre fra november 1963 var
der en tre-siders illustreret artikel omhandlende hvordan en af disse
kakkelovne fra loftet blev ombygget til en åben pejs, hvor den midterste del af
pejsen kunne drejes, så den kunne vendes mod den møbelgruppe man ønskede.

Skitse fra Bo Bedre
1963, der viser forvandlingen.
Ombygningen fra gammel kakkelovn til vendbar
pejs kostede 150 kr. Den ombyggede kakkelovn kan ses i bladet og på forsiden af
Bo Bedre fra februar 1964 ovenfor. Pejsen blev senere fjernet og en ny mere
tidssvarende brændeovn blev installeret i 1995.

Billede fra Bo Bedre
af trappen op til 2. sal.
Ved ombygningen blev 2. salen stort set
indrettet, som den fremstår i dag. Trappen fik det nuværende knæk ved at dreje
de øverste 6 trin, hvilket var nødvendigt, for at man kunne gå oprejst hele
vejen op. Alkoven blev indrettet med underliggende skuffer, pejsen, der som
nævnt var en ombygget kakkelovn, der blev fundet i pulterrummet, blev
tilsluttet, og tekøkkenet med køleskab, rindende vand og afløb blev bygget. I
bunden af trappen blev det gamle skab opdelt i to, og der blev opsat en dør, så
der var en rimelig opdeling mellem 2. salen og den øvrige ejendom. Gulvet i
alkoven blev efter japansk skik – og i overensstemmelse med datidens mode –
beklædt med Tat ami-måtter af vævet strå. Måtterne eksisterer endnu.

Billede fra Bo Bedre af trappen ud til terrassen.
For at komme ud på terrassen, der dengang
skulle fungere som brandudgang og derfor kun havde en 15 centimeter kant,
skulle man fire trin op og tre trin ned gennem et lille vindue. Da loftet var
indrettet, opsatte man dog et rækværk af træ rundt om terrassen. På grund af
den megen hamren om aftenen, medens de byggede
rækværket og et gulv af træ, fik huset – i al godmodighed – øgenavnet
Hammershus i kvarteret.

Den gamle trappe ned til terrassen på 2. sal.
Pigeværelset ved kvisten blev revet ned, og
det storblomstrede tapet, der hang på væggen, blev i kvisten erstattet af
rockwool og beklædt med profilbrædder. Det øvrige loftsrum blev ligeledes
isoleret med 5 cm rockwool og derefter beklædt med hvidtede
træbetonplader.
Før ombygningen var der kun én radiator på
2. sal, men for at sikre varme nok til det store rum blev radiatoren i det
tidligere pigeværelse ved kvisten suppleret med en radiator på den sydlige væg.
Huset var oprindelig forsynet med to
skorstene, men under ombygningen blev den del af den ene skorsten, der gik
igennem loftsrummet, fjernet. Nedrivningen foregik ved, at man fra oven af smed
de løsnede mursten ned i skorsten - og de fjernede mursten skulle efter sigende
alle kunne have været i det resterende stykke skorsten.
Nedenfor er gengivet en skitse over
indretningen som den så ud i 1964. Som det ses, var der taget hensyn til, at
man ikke kunne færdes oprejst på det yderste stykke gulv, hvorfor ganglinjerne
var lagt inde midt på loftet, medens møbler og reoler var placeret langs
væggene, hvor siddehøjden lige passede.

Skitse over 2. sal,
der viser indretningen i 1964.
Bemærk flyglet på skitsen ovenfor. Først nummer
to flyttefirma indvilgede i at flytte flyglet op ad den snoede trappe. Der
måtte fire flyttemænd til, men alligevel kostede flytningen kun 75 kr. plus 8
pilsnere.
.

Billede fra Bo Bedre
af flygel og kvist.
I forbindelse med indretningen af 2. salen
til boligformål havde man ansøgt kommunen om tilladelse til at lave en
tegnestue, hvilken da også blev givet den 31. august 1962. At det ikke lige var
en tegnestue men en lejlighed, man indrettede, tog man ikke så tungt. Problemet
opstod først senere, da kommunen i Bo Bedre læste om den nye indretning. Dette bevirkede, at
kommunen den 27. august 1964 fremsendte et brev til beboerne, hvori der blev
gjort opmærksom på, at der i artiklen var fundet en række bygge- og indretningsforhold,
der ikke var godkendt.
Efter byggetilladelse af 12. juni 1991 blev
den lille trappe, der førte gennem vinduet ud på tagterrassen på 2. salen,
nedtaget og erstattet med en ny karnap med en dør direkte ud. I forbindelse med
opførelsen af den nye karnap ville byggeprocenten overskrides, hvorfor der,
ligeledes den 12. juni 1991, blev givet tilladelse til at overskride
byggeprocenten fra 25,8 til 25,99.
Endelig blev rækværket og bræddegulvet
udskiftet på tagterrassen, ligesom der blev lagt et nyt bølgeeternittag over
det gamle skiffertag.
Nedenfor ses en tegning af den nye karnap.
Tegninger fra ombygningen i 1991, svarende
til Villa Mowgli’s udseende i dag.
I 1993 blev 2. salen igen ombygget og
istandsat. De skrå lofter, der var beklædt med træbeton, blev for at give en
bedre varme- og lydisolering, beklædt med rockwool og to lag gipsplader. Hvor
eksisterende bjælker blev dækket med gipspladerne, blev der opsat pyntebjælker.
Gulvet blev afhøvlet, ligesom der blev installeret lydtermoruder i alle
vinduerne. I hjørnet blev bygget et lille rum, hvori der blev monteret et
toilet på den eksisterende faldstamme. For at komme ind i rummet må man benytte
de sidste fire trin af den trappe, der i gamle dage førte op til 2. salen, og
som i 1963 var blevet drejet på det sidste stykke.
Brændeovnen var blevet nedtaget, hvorfor en
anden brændeovn blev installeret i november 1995.
Endelig blev rækværket af træ på tagterrassen
taget ned og i 1996 ombyttet med en grundmuret balustrade i marmorbeton, der
blev erstattet med den nuværende i 2004.
Som beskrevet senere blev karnappen mod
vejen i 2012 udvidet, ligesom antallet af ovenlysvinduer blev forøget fra tre
til seks.
Som tidligere beskrevet var huset i en
forfærdelig stand ved overtagelsen i 1993. Dels havde Villa Mowgli lidt under, at
det havde stået tomt i et par år, dels havde huset i en periode – gennem Dansk
Flygtningehjælp - været udlejet til en afghansk dommerfamilie, der havde måtte
flygte fra deres hjemland. Vaner og traditioner havde sat sit præg, og som
eksempel kan nævnes, at gaskomfuret var forsøgt fyret op ved at tænde bål i
ovnen, ligesom ejendommens kvinder, for at undgå at forlade huset, havde måtte
benytte gårdhaven som skraldespand ved at kaste affald ud af køkkenvinduet.
Det første, der blev sat i stand, var 2.
salen, hvilket er beskrevet i foranstående afsnit.
Det næste, der blev sat i stand, var de tre
stuer. Her bestod arbejdet primært i at male lofter og vægge. I spisestuen blev
det gamle cigarkassetræ fra ombygningen i 1918 fuldspartlet og malet, medens
der blev opsat gipsplader over brune træfinerplader i tilbygningens loft.
Parketgulvene blev afhøvlet og lakeret.
Ud over termoruderne på 2. sal var alle
vinduer i huset stort set af enkeltlags glas, hvorfor disse alle løbende blev
udskiftet til lydtermoruder. En undtagelse var dog i nogle af stuevinduerne,
hvor der var opsat forsatsvinduer. I de oprindelige vinduer i stuen ses stadig
de luftbobler og ujævnheder i glasset, der stammer fra den gamle
produktionsteknik.
Udskiftningen bestod dels af
totaludskiftning af karme og rammer, dels af udskiftninger udelukkende af
rammer. Nutidens træ er af en dårligere kvalitet end det oprindelige træ – så
mon ikke de oprindelige karme overlever de nye rammer. Under udskiftningerne af
karmene blev der fundet talrige gamle aviser trykt i de år, da vinduerne var
blevet isat.
Efter at ejendommen i næsten 100 år havde
haft enkeltglas i vinduerne, er det nu blevet muligt at spare lidt på
varmeregningen.
Efter stuerne blev værelserne på 1. sal samt
gangene istandsat. Gulve blev afhøvlet, stuk renset, tapet afrevet og opsat,
paneler retableret, mure pudset, huller spartlet, vægge, lofter og træværk
malet, bræddevægge gipsplade-dækket, tæpper lagt, telefonboksen retableret og
så videre og så videre…
Udenfor blev der opsat raftehegn ind mod
Gudrunsvej 22A i 1995 og trådhegn med buske af Laurbærkirsebær i 1997.
Balustraden på 2. sal blev opsat i 1996. Udvendigt blev huset i 1994 renset,
pudset og malet, ligesom vinduer og træværk blev det. Terrassen blev
klinkebelagt, væksthuset malet, kælderdøren, der var af brædder, udskiftet og
så videre og så videre…
Toilettet på 1. sal blev – som beskrevet
tidligere i afsnittet - totalt istandsat med nye klinker og fliser og med et
nyt hjørnebadekar, medens vaskekælderen fik klinkegulv, afløb og pudsede vægge.
I slutningen af 1996 påbegyndtes første
renovering af fyrkælder og kældergang. Området var aldrig blevet istandsat,
hvorfor det så meget forfaldent ud. Der var en jernplade over fyret, der var
fyldt med en centimeter gammelt støv. I støvet lå en æske tændstikker samt et
stykke af Berlingske Tidende med husannoncer fra 3. februar 1944. Træbjælkerne
i loftet blev renset for puds og siv, og vægge, lofter og gulve blev pudset og
malet. Det hemmelige rum blev som tidligere beskrevet udgravet i 1996.
Efterfølgende, i 1997, blev den gamle
vin- og viktualiekælder, der allerede var blevet ombygget i 1962/63, sat i
stand så den igen kunne benyttes som opholdsrum.
Hoveddørslampen over hoveddøren stammer fra
ejendommen Ejgårdsvej 36, hvor ejeren i 1995 ville smide den ud. Efter at den
er blevet malet og har fået nye glas, fremstår den næsten som ny.
Meget er sket og blevet renoveret og
istandsat efter de første 100 år af villaens levetid – så hvorfor ikke blot
remse op i flæng:
I vinteren 1998 blev kældervinduer
udskiftet, i foråret 1999 blev toilet i kælder sat i stand, ny havelåge i
sommeren 1999, i vinteren 1999 blev jerndrager over vindue i spisestue
behandlet og ydervæggen pudset op. Ligeledes blev tredje trin på hovedtrappen
repareret efter at dragkisten var faldet ned i 1963. Nyt stort vindue i
spisestue i marts 2000. I sommer/efterår 2000 blev loft i ende-værelset
udskiftet på grund af råd og svamp og værelset blev sat i stand. Ny zink
tagrende på garage i januar 2001 samt inddækning på terrasse på 2. sal
(midlertidigt). Garagetag blev understrøget maj 2001. Klinker i vaskekælder ved
bruser i efteråret 2001. I forår 2002 blev opsat klinker under og ved
kældertrappen. I foråret 2003 blev der isoleret under spisestuen ved udekælderen.
I sommeren 2003 kom der nyt gulv på terrasse på 1. sal og i foråret 2004 blev
el fræset ind i væggene i dagligstuen og stuen blev sat i stand. Ny inddækning,
balustrade og stål på terrassen på 2. sal i sommeren 2004. I maj 2005 blev
ekspansionsbeholder på 2. sal nedlagt og ny opsat i kælder sammen med en ny
varmtvandsbeholder og nye rør. Den gamle vandbeholder vejede 441 kg og der
måtte hjælp til fra de stærke lokale smede for at den kunne blive båret ud.
Vandrør blev skiftet og klinker repareret på toilettet i kælderen i juni 2005.
I sommeren 2005 blev opsat klinker på ydervæg i fyrrum og facaden mod 22A blev
malet igen. I foråret/sommeren/efteråret 2005 blev gangen på 1. sal og i stuen
samt trappen sat i stand. Vandrør og el blev fræset ind i væggene, der blev
opsat nyt stuk på gangen på 1. sal, resterende stuk blev renset og vægge blev
pudset m.v.. På grund af mangel på håndværkere tog
processen fra før påske til den 19. oktober – dagen hvor Villa Mowgli fyldte
107 år – eller mere end 7 måneder. Linoleum i gangen var lagt sommeren 1951,
idet der nedenunder var en avis dateret torsdag den 9. august 1951. Nyt
parketgulv blev lagt sommeren 2005 (Hørning Parket) og lakeret med oliebaseret
lak.
I
juli 2006 blev muslingeskaller opsat over terrassedørene, og skjolde over
vinduerne i endeværelset blev opsat i august 2006 (så
havde de også manglet siden tilbygningen blev opført i 1921). Forme blev lavet
af en stukkatør ud fra skaller og skjolde fra tvillingehuset på Ejgårdsvej,
hvor de var nedtaget for renovering efter branden. Terrassen blev renoveret,
fritlagt for beplantning, pudset op og malet. Endelig blev hovedtrappen
nødtørftigt opmuret på den ene side og facaden mod vejen malet i juli 2006.
I
september 2006 blev opsat glasfilt i spisestuen og den blev malet på ny,
ligesom gulve i spisestue og dagligstue blev slebet og lakeret med vandbaseret
lak. I december 2006 fik vi nyt vindue på toilet på 1. sal samt ny hoveddør.
Døren skulle laves af en snedker fordi ingen almindelige dørfabrikker ville
producere så høje døre på grund af deres garantiforpligtelser. Træ er ikke hvad
det har været. I marts 2007 fik vi lavet en radiatorskjuler i spisestuen under
vinduet mod 22A.
I
april 2007 måtte vi fælde vores store bambus nordøst for terrassen. Den
tilhørte den sorte sort og går i blomst cirka hvert hundrede år. Den blomstrede
og efterlod en masse frø inden den døde.

Villa Mowgli i 2006 – lige før bambussen blomstrede og
gik ud – og med antenne.
Efter at
ejendommens børn havde delt midterværelset i hele
deres liv fik de i april 2007 deres eget værelse. Albert fik hjørneværelset og
Leonora endeværelset. Midterværelset
blev til gæste-, stryge- og påklædningsværelse. Det kan blive knapt for enhver.
Senere flyttede Albert op på 2. sal, så Leonora kunne få to værelser, og da
Albert flyttede i 2019, var det Leonoras tur til at bo på 2. sal.
I april 2008 blev
huset malet på nordsiden mod stigen. Det tog kun to dage med en mand, stige og
pensel. I maj blev siden mod banen malet – fuld fart, så det tog kun en mand en
dag. Så var hele huset blevet malet på fire år (2005, 2006 og 2008).
I maj 2008
påbegyndes nedrivning og opførsel af nyt køkken. På gulvet under en af soklerne
stod skrevet initialerne ”EJ 11/11 1964”, hvilket kunne tyde på at det
er opførelsesdatoen for det gamle Vordingborg køkken. Dette stemmer også
overens med at Vordingborg Køkkenet blev stiftet i 1963. Skorstenen blev
fjernet så der ikke længere var et hak i hjørnet. Skorstenen var fyldt med
murbrokker fra nedrivningen af skorstenen på 2. sal. Den del at skorstenen der
ikke skulle udgøre hjørnet i køkkenet benyttes til at trække centralvarmerør
til soveværelse, toilet på 1. sal og den ene radiator på 2. sal. Øvrige rør
blev fjernet og nye rør gemt langs faldstamme, i gulvet og over det forsænkede
loft. Det ene varmtvandsrør til bruseren på 1. sal gik hele vejen rundt i
køkkenloftet uden ophæng. Efter udskiftningen blev vandet hurtigere varmt og en
mærkelig brummet når man åbner for vandet forsvandt næsten. Faldstamme fra
håndvask på 2. sal blev skiftet.
Der lå en fin
lille pakke med snøre under gulvbrædderne og spændingen var stor, men det var
”kun” en halv side fra en udateret Berlingske Tidende, hvor der bland andet var
en artikel fra et motorcykelløb på Ordrupbanen, hvor en motorcykel var brændt.
Avissiden var fra efter 1913, idet Svømmebadeanstalten Helgoland var beskrevet.
Avissiden var måske fra 1923-26 da der stod at man planlagde at bygge George
Washington Broen. Vi fandt endvidere en stump avis fra
22. januar 1932.
Ildsted i køkkenet
var fjernet i november 1962, hvilket fremgik af en avis der var brugt som
udfyldning til et gammelt skorstensrør. Under gulvbrædderne lå et ton ler der
blev udskiftet med rockwool inden der blev støbt nyt gulv med gulvvarme.
Heldigvis var kommunen og Dong ved at nedlægge luftledningerne i jorden,
hvorfor de meget belejligt havde stillet en container til jord lige udenfor
huset. Radiator på toilettet på 1. sal blev fjernet og erstattet med en
håndklædetørre, hjørnet blev muret pænt op og der blev påsat termostater i
soveværelset og på 2. sal. Gasmåleren blev fjernet, gastilførslen plomberet og
el blev indlagt i vægge.
Hele udskiftningen
af køkkenet tog 7 måneder. Leverandøren af det nye køkken var Multiform, der
evnede at lave alle de fejl man har fantasi til at forestille sig. Tegningerne
var forkerte så to låger ikke kunne åbnes, skuffen under vasken var så stor at der
ikke var plads til afløb og hængsler måtte skiftes to gange før de kunne bære,
skabene var skæve og skulle skiftes, og soklerne kunne ikke tåle vand, låger
beskadiget, halvdelen af leverancerne var forsinkede og nye leverancer
fejlbehæftede. Bordpladerne kom fra Spekva, der måtte
omlevere to af pladerne fordi de ikke havde lavet dem
i de rigtige mål og de to andre plader måtte de komme og slibe til. Handel på
Internettet viste sin styrke og alle hårde hvidevarer og bordpladerne kunne i
forhold til Multiform Designcenter i København købes med en gennemsnitlig rabat
på 35% gennem en internetbutik.
Den 7. november
2008 kom Multiforms egen mand for at udbedre de sidste ting og kl. 11:20 var vort køkken endelig færdigt. Totalpris 346.000 kr. plus en
masse egne timer og besvær.
Vor lejer på 2. sal, Rikke Svendsen, var efter knap fire
år flyttet tilbage til Jylland efter endt uddannelse på Politiskolen og vi
kunne heldigvis benytte køkkenet på 2. sal i hele perioden.
Primo april 2009
var det soveværelsets tur til at blive sat i stand. Vi snød og undlod at rense
stuk, opsætte glasvæv og fræse ledninger ind i væggene. Til gengæld kunne vi
klare det på tre dage. De sidste træstammer mod banen blev også fældet og der
blev plantet fem nye Laurbær-kirsebær buske i hullerne.
På grund af stigende
arbejdsløshed kunne man i maj 2009 igen søge om offentlige tilskud til
renoveringsopgaver. Vi fik tilbudt 12.985 kr. i tilskud til udskiftning af de
to ydre terrassedøre i stuen samt vinduet mod haven i spisestuen. Disse blev
udskiftet i oktober 2009. Totalprisen blev 53.513 kr. Endvidere
satte vi en ny dør i garagen – pris 17.458 kr. inkl. messing greb og fugning af
de nye døre og vindue. Termoruden i spisestuen var fra 1976 og var endnu ikke
punkteret – dengang kunne man lave termoruder der holdt.
Den 25. juli 2009
kl. 04:20 var der et indbrudsforsøg i Villa Mowgli. Døren til udestuen blev
brækket op. Døren var lukket med en sikkerhedshaspe, men døren blev vredet så
meget at toppen af dør blev revet af og to ruder gik itu. Næste dør videre ind
til spisestuen var heldigvis låst og støjen fra de to ruder der smadrede,
gjorde at politiet hurtigt kunne alarmeres. Politiet kom med tre patruljevogne
i løbet af et par minutter. Tyvene nåede ikke at stjæle noget og der skete kun
skade på døren. Det var dejligt at opleve politiets hurtighed og
professionalisme. Indtil den første patruljevogn ankom blev vi i telefonen
løbende orienteret om patruljevognenes position samt orienteret om hvordan vi
skulle reagere hvis vi kom i nærkontakt med tyvene. Indbrudstyve er
tilsyneladende ligeglade med om der er nogen hjemme nu om dage, men vi slap med
skrækken. Et stykke tid efter fik vi at vide at politiet havde fanget en
rumænsk bande der havde specialiseret sig i at lave røverier medens folk lå og
sov. Banden tog altid det første morgentog ”hjem”, hvilket videoovervågningen
fangede. De blev overvåget og skygget til deres opholdslejlighed i København,
hvor alle tyvekoster blev fundet.

Den iturevne dør til vinterhaven
efter indbruddet i 2009.
Den 4. november
2024 var den gal igen. Her luskede en rumæner rundt om huset og blev fanget på
et overvågningskamera. Vi var igen hjemme og kunne hurtigt sende et godt
billede til politiet, der straks tog ud og runderede i området. Han blev
pågrebet, men havde desværre i mellemtiden nået at begå et indbrud i en anden
villa i området. På overvågningsvideoen kan man se at han stopper sit
forehavende, da han opdager at motoren til emhætten kører – så var der nok
nogle hjemme. Den slags gav et års fængsel og udvisning i fem år.
I juli 2009 blev
hjørnebedet fjernet i vinterhaven og den grå kant blev malet og i juli 2010 fik
vi gennemrenoveret hovedtrappen med opmuring af sider og nyt trin øverst og nyt
plateau. Herefter blev trappen malet og terrassen i haven fik også en ”overhaling”.
I oktober 2011
blev der installeret kabel-tv og kabel blev skudt fra vej indtil en ny stikdåse
med plads til otte fjernsyn.
Året 2011 blev
også året hvor det blev besluttet at udskifte taget på huset og på garagen til
sortglaseret mat tegl samt at blive ”miljørigtige”. I 1993 kostede en liter
olie 4,13 kr. pr. liter, el kostede 97,08 øre pr. KWh og vand kostede 14,39 kr.
pr. m3. I 2012 kostede olien 12 kr. pr. liter (en stigning på 190%), el kostede
209 øre pr. KWh (en stigning på 115%) og vand kostede 46,70 kr. pr. m3 (en
stigning på 225%) efter at det var sat ned i pris igen efter en periode med en
endnu højere pris. Ejendommen var – ud over ejendomsskatterne - blevet rigtig
dyr i drift.
Taget på huset var
lagt i starten af 1990’erne, men var allerede i en meget dårlig stand, idet den
lagte bølgeeternit var fra perioden lige efter at asbesten var blevet forbudt
og man endnu ikke havde udviklet en ordentlig erstatning. I tre omgange var dele
at taget blæst af under storme og det der ikke var udskiftet var ved at smuldre
væk - og så passede bølgeeternit måske ikke lige til et gammelt hus med
mansardtag. Pierre Duus blev kontaktet for at installere jord- og solvarme, og
tømrermester Martin Hastedt skulle renovere, isolere
og udskifte tagene. På det tidspunkt var der siden 1993 købt olie for 983.000 kr.
beregnet på baggrund af 2011-priser og ved næste tankning ville købet runde en
million kroner. Der var brugt knap 94.000 liter olie og priserne bare steg og
steg.
Efter at kommunens
godkendelser til udskiftning af tag og etablering af jordvarme og solpaneler
var på plads kunne arbejdet påbegyndes ved årsskiftet 2011/2012. Da ejendommen
var blevet erklæret bevaringsværdig, skulle de nye tegl og solpanelerne passe sammen
og godkendes af kommunen. Valget faldt på tegltagsten Linea, hvor Komproment havde fremstillet en solfangerløsning der
passede til. Projektet var berammet til 10 uger, men tog ”naturligvis” meget
længere tid. Efter 22 uger var arbejdet næsten færdigt.
I forbindelse med
udskiftning af taget blev karnappen mod vejen isoleret og gjort dobbelt så bred
så den nu sidder symmetrisk på huset, der blev installeret yderligere tre Velux
vinduer og skorstenen blev udskiftet. Da det gamle tag blev fjernet, kunne man
konstatere at isoleringstykkelsen ikke helt levede op til det der stod i BBR
registeret. Der lå kun 40 mm Rockwool plus 20 mm Rockwool, der lå løst mellem
de indvendige gipsplader og noget træbeton. Alt blev fjernet så kun
gipspladerne var tilbage, spærene forhøjet og godt 300 mm nyt Super FlexiBatt Rockwool, svarende til 324 mm almindelige Flexibatt Rockwool blev indlagt.
På grund af den
mere energirigtige isolering og forhøjelsen af spærene blev terrassen på 2. sal
lidt mindre, hvorfor en baluster i hver ende af balustraden måtte fjernes. Det
miljørigtige havde sin pris.
Da det
eksisterende garagetag skulle udskiftes, blev det konstateret at alle spærene
var rådne nede i murværket. Hvis ikke det var blevet opdaget var hele taget
faldet sammen nogle år efter. Tryg Forsikring måtte finansiere nogle nye spær,
men slap så formentlig for at erstatte en bil nogle år efter. Der blev
indrettet et fint lagerrum under taget.
Jordvarmeboringerne
skete efter et forholdsvist nyt princip, hvor man gravede en brønd på cirka en
m3, hvorfra man borede huller skråt ned til alle sidder. På den måde undgår man
at få gravet hele haven op eller at få en kæmpe entreprenørmaskine ind i haven
for at lave lodrette boringer. Det nye jordvarmeanlæg skulle bestå af 12 huller
af 40 meter plus slanger til og fra huset, men det endt med 13 huller af cirka
38 meter da der ligger et meget hårdt kalklag på 38 meters dybte.
Brinevæsken løber frem og tilbage i indvendige og
udvendige slanger i hullerne, så den samlede slangelængde udgør knap en
kilometer. Der blev opboret og opgravet 4m3
jord, så hullet efter den 4m3 gamle olietank fra 1977, der også blev
gravet op, netop kunne fyldes med overskudsjord.
På taget blev
placeret seks sol paneler og det hele blev i kælderen forbundet til en stor ny
varmtvandsbeholder og en Viessmann Vitocal 350 varmepumpe.
I kælderen blev
den gamle oliekedel fra 1950’erne, grisen, varmtvandsbeholderen og en masse
gamle rørføringer fjernet, og fyrkælderen pænt istandsat, ligesom der blev
installeret fire nye radiatorer i kælderen og sat termostater på de sidste
radiatorer.

Det nye anlæg med varmtvandsbeholder, varmepumpe og teknikken der styrer det hele.
Det blev en samlet
investering på knap 1,4 mio. kr. fordelt med cirka halvdelen på nye tage og
cirka halvdelen på energiforbedringer. Ved en uændret oliepris skulle
besparelsen udgøre netto 43.000 kr. pr. år som følge af at den sparede olie
koster mere end elforbrug til jordvarmepumpen. Tilbagebetalingstiden blev
beregnet til 10,4 år - hvis man holdt olieprisen konstant, medregner at det
gamle oliefyr og olietanken alligevel skulle udskiftes og at man fik 63.000 kr.
i offentlige tilskud. Og så er der jo rabat på el når ens hus nu i princippet
er el-opvarmet. Den rigtige tilbagebetalingstid endte dog på 13,5 år.

Villa Mowgli med nyt tag og
jordboremaskinen i haven i 2012.
I forbindelse med
boringerne kunne man få et indblik jordlagenes beskaffenhed under Villa Mowgli
og i området. Den første cirka halve meter er muld, hvorefter der kommer 11
meter fint smeltevandssand, 1,5 meter stenet smeltevandsler, 11 meter fint
smeltevandssand, 4,5 meter kalkholdigt og stenet smeltevandsler, 8 meter kalk
og kridt og endelig – knap 40 meter nede - hård Danienkalk.
Danienkalk er en samlebetegnelse for de kalklag, der
blev aflejret i Danmark for cirka 60-65 mio. år siden. Kalken er dannet ved
ophobning af skaller af dyr og planter på datidens havbund.
I 2016 og 2017 var
det igen muligt at får offentlige tilskud til forbedringer, hvorfor terrassedøren
på 1. sal og døren ud til gårdhaven blev udskiftet. Jubilæet for tilbygningen
af spisestuen blev i 2018 fejret med udskiftning af de et-hundrede år gamle
låger til udekælderen. De nye låger vil næppe holde 100 år.

Havebruser med tøndesaunaen placeret diskret i baggrunden i 2021.
I perioden
juli-oktober 2020 blev igen gennemført et større projekt. I en årrække havde
der stået et 22m3 blå-gult plastik svømmebassin i haven. Nu skulle
haven have et løft igen. Der blev bygget en 6-personers tøndesauna i hjørnet
mod stien og Gudrunsvej 22A og nedgravet en 48m3 svømmepool. En
kæmpe anlægsopgave, hvor der blev flyttet rigtig mange tons jord, sand, fliser,
stål og beton.

Så er der gjort klar til at støbe
bunden inden siderne kunne bygges.
Rør- og kabler
blev gravet ned og poolen blev tilsluttet pumpe, filter og solvarmen via
kælderen. Under gravearbejdet blev der opgravet flere gamle drænrør af brændt
tegl fra tiden da området var en mark.
Til sidst blev
græsplænen hævet og planeret, og der blev omkring den nye pool anlagt en 100m2
stor terrasse af sorte sandstensfliser fra Indien. Den nye terrasse blev
tilpasset så den gamle terrasse af bornholmsk granit og ølandsfliser kunne
bibeholdes - og overskudsfliser kunne meget belejligt lægges på den
eksisterende terrasse ud for dagligstuen.

Den færdige pool i 2021.
I 2023 – 125 år
efter opførelsen - skulle Villa Mowgli selvfølgelig have et særligt løft,
hvorfor alle fire ydersider blev malet igen. November 2024 kom der nye
tagrender fra RheinZink på vinterhaven. Så havde de
gamle PVC tagrender holdt mindst 32 år.
Cirka 30 års hårdt
arbejde fylder her et nogle få sider, men for at give indtryk af arbejdets
omfang kan nævnes, at der med årene er medgået over 1.000 liter maling og mere
end 3,2 mio. kr. er huset nu blevet renoveret for siden 1993 – plus en rigtig
masse egne timer.
Den gamle Müller havde i den sidste periode
af sit liv flere studerende boende med gratis logi. Sønnen, Mogens Müller,
fortsatte disse sociale bestræbelser, da han overtog ejendommen i 1963, men da
han ikke selv boede i ejendommen, og da den leje, han kunne opkræve, ikke stod
mål med de omkostninger der var forbundet med at eje og passe en ejendom,
ønskede han til sidst at afhænde villaen, hvilket også skete cirka 10 år
senere. På det tidspunkt boede han og ægtefællen i Tågerup ved Roskilde.
Allerede i efteråret 1959 flyttede Torben Runo Johansen
ind og boede i starten i herreværelset i stueetagen. Torben Johansen var på det
tidspunkt 17 år og kendte dels familien gennem faderen, der arbejdede på
Christoffer Müllers fabrik, Dano, dels gennem sit forhold til Christoffer
Müllers barnebarn, Mette Spangenberg (datter af Eva
Birkman, tidligere Spangenberg).
Christoffer Müller, der var blevet syg på sine gamle
dage, lå i en hospitalsseng i spisestuen, hvor han kunne ligge og kigge ud på
sin have, og blev samtidig - meget belejligt - tilset af Torben Runo Johansen.
I starten af 1960’erne boede arkitektstuderende Aksel
Emil Kaalund Olsen til leje i Villa Mowgli. Som studerende vandt han en
andenpræmie på en idé om, at man anbragte sin bil og trailer, hvor man ønskede
at bo, tilsluttede sig installationsnettet, og i forbindelse med traileren
skummede man sit hus op til den størrelse, man havde brug for. Vi har endnu til
gode at se idéen ført ud i virkeligheden, men som studerende skal man jo være
kreativ. Senere skrev han en række bøger om trafik og illustrerede også en
række publikationer.
Fra 1961/62 boede Helge Schandorff
i kælderen. Han havde forinden omdannet viktualierummet og vinkælderen til ét
stort beboelsesrum med Rockwool og træbeklædning på ydervæggene, hessian på
indervæggene og laminat på gulvet. Døren ind til vinkælderen blev fjernet og
væggen opmuret. Den gamle dør blev omdannet til et bord i det mørke rum. Bordet
bliver stadig benyttet som et arbejdsbord, hvor den oprindelige grønne maling
stadig kan anes. Som betaling for istandsættelsen fik Helge Schandorff lov til
at bo gratis.
Helge Schandorff etablerede fremkalderrum i
vaskekælderen, men han var nok mest kendt for, at han ofte reparerede biler ude
på vejen. Så sent som i 1993 blev resterne af en af hans gamle
røde Messerschmidt biler fundet under terrassen. Til at hjælpe med
bilerne havde han mekaniker Torben Daniels Hansen, der boede i Villa Mowgli i
perioden 1964-68 og som var lærerstuderende. Helge Schandorff blev senere
kørelærer, medens Torben Daniels Hansen dimitterede fra Jonstrup Seminarium i
1969.
Arkitekt Ove Steen-Andersen og Marianne Steen-Andersen
(datter af Agnete og Mogens Müller, og i 1962 gift med Ove), der havde ombygget
2. salen til en lejlighed, boede i denne, fra den var færdig i 1962/63 indtil
august 1964, hvor Torben Runo Johansen flyttede ind sammen med Mette
Spangenberg. Huslejen løb på dette tidspunkt op i den fyrstelige sum af 300 kr.
pr. måned.

Ove Steen-Andersen og Marianne
Steen-Andersen
på trappen på Gudrunsvej 16 i år
1959.
Allerede inden Torben Johansen og Mette Spangenberg var
flyttet op på 2. sal, var der begyndt at flytte flere unge mennesker ind i
huset. Specielt musikstuderende var der flere af, og om sommeren spillede de
unge mennesker ude i haven til glæde for områdets beboere.
I perioden 1963-66 boede Christoffer
Müllers barnebarn, Kirsten Steen-Andersen (datter af Agnete
og Mogens Müller og i 1966 gift med Jørgen Steen-Andersen, der var lillebror
til Ove Steen-Andersen) til leje i henholdsvis midterværelset
og herreværelset, medens stud.med. Ester Lunddahl boede i endeværelset
på 1. sal. En dag kom Ester Lunddahl til at smække sig ude af hendes værelse
inden hun havde fået tøj på. Døren kunne kun lukkes indefra med en krog,
hvilket gjorde det hele meget mystisk. Hun måtte have hjælp til at få åbnet
døren ved at Helge Schandorff kravlede ind gennem hendes vindue, og episoden
var baggrund for en historie om at det var den onde stedmor (Christoffer Frode
Müllers anden ægtefælle), der gik igen og havde smækket døren i. Hun har dog ikke
vist sig siden, men måske passer hun på os alle i smug.
Episoden er også gengivet i novellesamlingen
Natten er før og efter dagen fra 2020, der i novellen Det mærkelige, gamle,
store hus beskriver livet i Villa Mowgli på den tid. Forfatteren – der i
virkeligheden er Marianne Müller (barnebarn af Christoffer Frode Müller)
skriver under pseudonymet Mai Germelin, men det kan
vel godt røbes at forfatteren og de personer der indgår i novellen med andre
navne, har boet i huset. En anden novelle i samlingen hedder Nattens dronning.
Her er vi tilbage til Christoffer Frode Müllers sidste tid, og historien om et
nyforelsket par. Villa Mowgli kaldes Villa Marius og det forelskede par – der
igen har fået andre navne - har også boet i huset.
Et lille uddrag af novellen ”Natten er før
og efter dagen” lyder: ”Han gyser stadig ved tanken om dengang og
konstaterer samtidig, at vinduerne er lukkede og hængslede! Som sædvanlig. På
sin vej før trappen og ned til køkkenet (der er foran hans lejede stue) hører
Martin lyden af svag klage og undertrykt gråd. Mon så det var hjørnestuen på hjørnet af Vinkel Mørke Gangen? Han banker
på. Dér sidder Hellen Sofie halvt bøjet over sin cello. Buen holder hun sammen
med et lommetørklæde i højre hånd”.
I hjørneværelset over herreværelset boede
Klara Helene Friis, der spillede på cello og var datter af kunstmaler Grethe
Friis Bache. Klara Helene Friis var glad for fugle og en sommer lykkes det
hende at tæmme en vild Allike som sad på hendes skulder når hun gik rundt i
byen. Fuglen blev døbt Dodo inden den om efteråret tog på træk. Klara Helene
Friis spillede blandt andet cello med Henrik Böcher
(1944), der siden spillede mange år i Radiounderholdningsorkestret.

Klara Helene Friis, ukendt og Henrik Böcher i Budapest
hvor de som studerende gav koncert i 1963.
I 1966 fraflyttede Torben Johansen og Mette Spangenberg
lejligheden på 2. sal, idet der i mellemtiden var blevet indført et sæt
husregler, der bl.a. sagde, at der af hensyn til de unge musikstuderende ikke
måtte bo småbørn i ejendommen. Året efter nedkom Mette Spangenberg med en
datter.
Efter Christoffer Müllers død udviklede Villa Mowgli sig
til at være et egentligt studenterkollegium med mange lejere, og med fælles
badeværelse, toilet, vaskerum og køkken. Der var liv og glade dage,
hjemmebrænderi og store fester. Desværre for husets beboere kom kommunen i
april 1967 på besigtigelse og konstaterede at Villa Mowgli ikke var godkendt
til ”udlejningsvirksomhed”, og Gentofte Kommune kunne derfor ikke
acceptere, at ejendommen skiftede status fra familievilla til kollegium. I en
lang periode var der en del brevvekslinger og møder om lovliggørelse af
beboelsen mellem kommunen og borgmester Børge Sieverts på den ene side og
beboerne på den anden side. Til sidst slap kommunens tålmodighed med de unge
mennesker op, og den 28. april 1967 førte de unges ”ulydighed” til, at
kommunen meldte dem allesammen til politiet i Gentofte, og Mogens Rode Thorkild
Müller blev af politimesteren sigtet for overtrædelse af lejeloven. Som
julegave gav kommunen den 21. december 1967 beboerne
det endelige afslag på at omdanne ejendommen til et lovligt studenterkollegium.
Ejendommen bestod på dette tidspunkt af 7
lejemål med i alt 8 kollegianere. Det var stud.mag. Lars Runo Johansen (født 1946 og bror til Torben Runo Johansen), Gurli
Lefevre Andersen (1945-2015), der spillede klaver, Jan Andersen, Birthe
Andersen, lærerstuderende Helge Schandorff (født 1939), Hanne Bjerg Larsen
(født 1953), stud.mag. Ebbe Pramming (1938-2016) samt
arkitektstuderende Nanna Friis Løvendahl (født 1948), der i perioden 1966-69
boede i midterværelset, hvor Clara Helene så flyttede
videre til et andet værelse. I 1969 var desuden en stud.mag
T. Helleskov registreret på ejendommen, og i 1970 boede arkitektstuderende
Nanna Sloth Møller (1945), kaldet Nanna Bananna, også
i ejendommen.
Sagen fortsatte det næste godt et år, og den
20. juli 1969 skrev de nærmeste naboer under på, at de unge mennesker hverken
støjede eller generede omgivelserne. Underskriverne var Grosserer H. Timmol fra nr. 20, buntmager Aage Leidersdorff
fra nr. 24, studerende Samuel Lecker fra 22A og
endelig sekretær Frederik Raben-Levetzau fra Ejgårdsvej 36. Bl.a. denne
skrivelse overbeviste til sidst kommunen om, at det nok ikke stod så slemt til,
og den 3. september 1969 blev Villa Mowgli alligevel godkendt til at kunne
blive omdannet til en selvejende kollegieinstitution med syv lejemål. Der måtte
dog kun bo maksimalt ni kollegianer ad gangen i huset og godkendelsen
forudsatte, at justitsministeriets hotelbekendtgørelse og kommunalbestyrelsens
bestemmelser vedrørende indretning af udlejningsvirksomhed blev overholdt.

Mogens Müller på besøg i 1967.
Huslejen lå på dette tidspunkt på mellem 130
kr. og 400 kr. pr. måned pr. lejemål - alt afhængigt af lejemålets størrelse og
placering. I alt var den samlede lejeindtægt, som Mogens Müller modtog, kun på 1.655
kr. pr. måned, hvilket ikke var nok til at passe og vedligeholde en ejendom som
Villa Mowgli. Huslejerne var naturligvis godkendt af Huslejenævnet ifølge brev
til politimesteren i Gentofte af den 22. marts 1967. En gang om ugen kom Mogens
Müller forbi og inspicerede og kontrollerede om toilettet var rengjort. Hvis
ikke, vankede der bøder og Mogens Müller måtte så selv foretage rengøringen.

Nytårsfest 1968 i
det nuværende soveværelse. Nanna og gæsten lægestuderende
Bo Johannessøn Fink
(1946) fra Egmont Kollegiet.
På trods af de mange års kamp mod kommunen,
og på trods af sejren og Mogens Müllers vilje til at sælge ejendommen til en
gunstig pris, lykkedes det aldrig beboerne at skaffe kapital nok – 257.000 kr. -
til selv at kunne overtage Villa Mowgli, hvorfor Mogens Müller i 1973 solgte
ejendommen til Susanne og Frank Pedersen.
De cirka ti år som studenterkollegium havde
sat sit præg på ejendommen.
Der var i perioden altid liv i Villa Mowgli,
og hoveddøren stod altid ulåst, så fremmede kunne komme og gå som det passede
dem. For at få en passende opdeling af lejemålene var dørene mellem stuerne
enten blevet fjernet eller blevet lukket med masonitplader, ligesom der i
soveværelset var opført en væg, så alle havde ugenert adgang til altanen,
hvilket var en brandkrav fra kommunen.
Det meste træværk i huset var blevet
dekoreret i datidens festlige farver, og loftet i midterværelset
var malet kulsort. Da vinduer og karme blev malet i 1994, blev der fundet flere
lag maling i bl.a. "kommune grøn", orange og lilla. Den ”kommune
grønne” farve stammede fra gamle fabrikant Müller, der malede alt træværk grønt
med maling, han havde købt billigt af kommunen.
For at kunne kommunikere med omverdenen blev
den telefonboks, som i dag stadig eksisterer på 1. sal, etableret. Dengang var
telefonen forsynet med et rigtigt møntindkast fra KTAS. Inden telefonboksen
kom, benyttede beboerne en fælles telefon, som var opsat på en brunmalet hylde
udenfor Helge Schandorffs værelse i kælderen.

Ebbe Bramming og
siddende hans ægtefælle Birgit, Torben Runo Johansen
og han ægtefælle
Mette, Helge Schandorff, Torben Daniels Hansen,
Gurli Lefevre
Andersen samt en gæst (1967).
Lars
Runo Johansen boede i Villa Mowgli i perioden 1962 til 1968 og berettede i 2020
følgende om sit ophold:
”Jeg
flyttede ind i Villa Mowgli da jeg gik i 1. G på Virum Statsskole efter at have
boet på værelser i Virum og Lyngby. Min bror, Torben Runo Johansen, havde boet
i Villa Mowgli siden begyndelsen af 1960’erne og var flyttet sammen med sin
kæreste Mette Spangenberg Birkmand i den næsten nybyggede 2. sals
loftslejlighed. Jeg fik et fint værelse på 1. sal, lige ved siden af
“telefonboksen”. Sengen var bygget på ølkasser, en spånplade og en madras af
skumgummi. Skrivebordet var en gammel dør og bogreoler opbygget af mursten og
brædder. Og så havde jeg Mette og Torben tæt på til at hjælpe mig. Mette læste
til ergoterapeut og var god udi kunsthåndværk og dejlig mad. Torben var under
uddannelse inden for handel, læste på Niels Brock og blev ansat i Dansk Almennyttigt
Boligselskab. Jeg stod i kø for ham, når der var udsalg i de bedre
herreforretninger i København, for han skulle være iført habit, skjorte og
slips på arbejde.
På
1. sal boede Nanna ved siden af mig. Hun læste på Handelshøjskolen og var en
livlig mørkhåret pige i begyndelsen af 20’erne. Overfor hende boede Gurli
Lefevre, der studerede harpe og klaverspil på Det Kgl. Danske
Musikkonservatorium. Det kunne høres. Hun var også i begyndelsen af 20’erne med
langt rødt hår. Gurli boede senere med sin mand i Flensborg, og underviste
bl.a. på Musikskolen i Tønder.
Jeg
var husets Benjamin, 16 år da jeg flyttede ind, og Nanna og Gurli var som et
par gode storesøstre for mig. Nede ad gangen boede Torben Daniels, uddannet
bilmekaniker og lærerstuderende. Han spillede også guitar og var god til at
hjælpe, da jeg som 18-årig anskaffede først en scooter, senere ligesom Gurli
gjorde, en rigtig Messerschmidt kabinescooter. Da Torben Daniels blev færdig
som lærer fra Jonstrup Statsseminarium fik han lærerbolig ved sin
ansættelsesskole og flyttede. Da jeg flyttede i 1968, flyttede Klara Helene
Friis ind. Hun spillede cello. Min kæreste Janne og jeg fik lejlighed på Søborg
Torv efter at vi - noget uden for reglementet - stort set havde boet sammen på
mit værelse siden vi mødte hinanden i sommeren 1965. I stueetagen boede Helge i
det gamle herreværelse lige inden for hoveddøren. Helge var husets altmuligmand
og praktiker. Udover at være kørelærer, var han også lærerstuderende. Ved siden
af Helge i den store lejlighed med udgang til haven og vinterudestue boede Ebbe
Pramming, der var historiestuderende og hans kone
Birgit, der var tandlægestuderende. Et hyggeligt og meget forskelligt par.
Senere boede der en Jon, der læste teologi og hans kone. Det var menageriet i
mine år i Villa Mowgli.
Villa
Mowgli var dengang ejet af Mogens Muller, der ønskede at hjælpe studerende
særlig inden for musik. Huslejen var lav og friheden stor og huslejen kunne
næppe dække udgifterne til skatter, afgifter og vedligehold. Gentofte Kommune
var efter ham for de mente vist, at det var et skråplan at få sådanne
ungdomsboliger, der lignede et kollektiv, til den pæne kommune. Jeg skrev en
række indlæg i Villabyerne om manglen på boliger for unge og sagen døde hen.
Min
kæreste Janne begyndte i 1966 som møbelsnedkerlærling, gik på Københavns
Tekniske skole og kom i lære på et snedkerværksted i Pilestræde i København. I
Villa Mowgli’s kælder snedkererede hun 14 sektioner bogkasser fra de rå
brædder, som vi bragte hjem i Helges bil, til fint sammenlimede, høvlede og
pudsede og samlede efter alle kunstens snedkerregler. De har fulgt os i vores
forskellige hjem i Søborg, Helsingør og nu i Esbjerg. Janne arbejdede i
weekender og ferier som vikar på plejehjem og senere i ungdomsklubber som
pædagogmedhjælper for at tjene penge. Senere fulgte Kunsthåndværkerskolen og
hun blev arkitekt.
Helge
var jo kørelærer og han sørgede for, at jeg fik bilkørekort billigt. Når vi
skulle i biografen i Vangede eller Holte eller ud at handle satte han
køreskoleskiltet på bilen, en Morris Marina, og så kørte jeg og han sad ved
siden af. Indimellem var bilen fyldt op og så skulle dem på bagsædet dukke sig,
hvis vi så en politibil. Helt lovligt var det vist ikke. Så fik jeg et par
timer hos en anden kørelærer, som Helge kendte, og bestod køreprøven i hvad jeg
husker som de værste ikke lysregulerede gadekryds på Vesterbro.
Jeg
læste på Københavns Universitet. Først sammenlignende litteratur og efter et år
dermed statskundskab og historie. Jeg tjente selv til studierne ved at arbejde.
Som morgenavisuddeler i Hellerup, som postbud og i en par år som kontrollør på
Bakkens Hvile og opvasker på Pølsekroen på Dyrehavsbakken, hvilket nogle gange
gav problemer med at møde til tiden og få tid til eksamensforberedelser, da jeg
gik gymnasiet. For arbejdet på Dyrehavsbakken, som jeg jo kunne cykle til -
ligesom jeg også cyklede til gymnasiet i Virum - varede fra åbningen sidst i
april til bakken vinterlukkede sidst i september. Senere fik jeg arbejde i Rødovre som
pædagogmedhjælper og i Værebro Park i Bagsværd, da jeg begyndte på
Universitetet. I de sidste år på Institut for Statskundskab arbejdede jeg først
som lærer inden for Forsvarets Civilundervisning og senere som
undervisningsassistent på Instituttet. Jeg blev cand.mag. i
statskundskab/samfundsfag og historie i 1972 og straks ansat på Københavns Dag-
og Aften Seminarium i Skovlunde, senere som studielektor i
Undervisningsministeriet og i 1986 flyttede familien til Esbjerg fra vores
gamle hus i Helsingør, da jeg var blevet udpeget som rektor for Esbjerg
Lærerseminarium.
Pengene
i de år var få og selvom det ikke var et rigtigt kollektiv, hjalp vi hinanden
ganske godt. Helge havde nogle gode forbindelser til nogle slagtere nede i
Charlottenlund og her fik han rester i form af pålæg, kød og salater. Så blev
der spist rester og lavet store portioner spaghetti med kødsovs og rigeligt med
tomatketchup. Og lige i nærheden havde vi et ismejeri, hvor man gav kredit på
havregryn, ost og mælk. Det levede jeg højt på og det er stadig mine
yndlingsspiser. Der blev brygget og drukket the i store mængder og jeg husker
ikke, at vi nogensinde drak øl eller vin undtagen til fester, og dem var der
ikke mange af. Dog prøvede vi selv at fremstille både vin i store boblende
glasballoner – mindre vellykket – og at fremstille spiritus ved at rense
almindelig kogesprit ved hjælp af aktivt kul for derefter at tilsætte essenser.
Det smagte ikke særlig godt og det gav nogle alvorlige tømmermænd. Tiden var
for os ikke til euforiserende stoffer.
Årene
i Villa Mowgli var gode år. Der var ikke tid eller plads til de store
udskejelser og jeg oplevede også de andre beboere som meget arbejdsomme. Der
skulle tjenes penge for SU eksisterede ikke dengang, hverken i gymnasietiden
eller i studietiden på Universitetet. Og så skulle der laves lektier, skrives
opgaver og gås til skriftlige og mundtlige eksaminer og alt det andet gymnasie-
og universitetsarbejde. Under universitetsstudierne var jeg samtidig ret aktiv
i studienævn og i Studentersamfundet. De musikstuderende øvede fra morgen til
sen aften, når de ikke var på Konservatoriet. Samtidig var Virum Statsskole
ikke just vant til elever af min type, så de var ret opmærksomme på, om jeg
mødte til tiden, afleverede stile til tiden, var lektieforberedt m.v. Men der
var mange gode lærere, der var til stor hjælp bl.a. når jeg søgte private
legater.
Så
alt i alt blev Villa Mowgli min trygge base fra 1962 til 1968. Det er år jeg
mindes med taknemmelighed, år jeg aldrig vil glemme ligesom de mennesker jeg
boede sammen med for altid, står præget i mit sind”.

Den unge Lars Runo
Johansen på sit værelse.
De efterfølgende ejere af Villa Mowgli har
alle fremlejet værelser i deres ejertid. Således lejede Susanne og Frank
Pedersen 2. sal og halvdelen af 1. sal ud til bl.a. cand.mag. og salgskonsulent
Ebbe Rostorp i 1977-82, børnehavepædagog Elisabeth Keil i 1982, Bente Haarbo i
1983 og lærer Jette Bachhausen i 1977-1979, medens
Ewa-Dorota Eskelund og Knud Erik Andersen – ud over udlejningen til Dansk
Flygtningehjælp – havde L. Sørensen boende i kælderen i 1982-84, Martin R. Tefler i 1984 og Mikael Sterup-Hansen i 1985. Den månedlige
husleje var nu steget til 1.200 kr. pr. måned.
Også efter 1993 har der boet lejere i Villa
Mowgli. I 1993 var det miljøsekretær i Socialistisk Folkeparti Per Henriksen, i
1994 til 1996 var det fysioterapeut Bodil Jensen og fra 1996 cand.jur. og
fuldmægtig Marie Leer Jørgensen. Fra 1999 til 2003 boede Line Heilberg til leje efterfulgt af Marie Bornhøft Kirkegaard i
2003, fysioterapeut Tina Jensen i 2003 til 2004, politielev Rikke Jensen fra
2004 til 2008, farmaceut Ieva Imbrasaite fra Litauen
fra 2008 til ultimo 2010, Heidi Elisabeth Rasmussen i 2011 og Maria Mänty fra Finland fra september 2011 til oktober 2014.

Udsnit fra værelset på 2. sal fra 1995.
Da Christoffer Müllers ejede Villa Mowgli
var der i en lang periode tre tjenestefolk i huset, hvor der til sidst kun var
husassistent Christiane Marie Nielsen tilbage. Før denne periode var der som
oftest også kun ét tjenestetyende registreret ad gangen i enten
folketællingerne eller skattelisterne. Maria Anna
Jensen var registreret i 1901, Christiane Agnes Nielsen i 1906, Hanne Marie
Mikkelsen i 1909, Karen Marie Jensen i 1910, Olga Bergliot Hansen og Karen
Marie Malling i 1911, svenskeren Clara Sofie Pettersson og Agnes Hansen i 1914,
tyskeren Marie Pflug i 1915, Oda Fernanda Petersen i 1917, Olga Sørensen i
1918-1919 og Kristine Sørensen i 1921. Som det ses nedenfor, var det ikke
ualmindeligt at unge piger – ud over den ene der var registreret - ikke havde
bopæl hvor de tjente, og ofte gjorde de unge piger sig heller ikke fortjent til
at få deres navn nævnt i registrene, men måtte nøjes med blot at blive nævnt
som et antal tjenestetyende.

Fra Villabyernes
Blad den 13. maj 1926.
Også nu om dage må ejerne nøjes med én au
pair-pige ad gangen. Fra oktober 1997 til juli 1998 ”tjente” Sanita Gutmane fra
Letland således i huset, medens Yevgenia Zherebyatyeva fra Estland ”tjente” i huset fra august 1998.
Efterfølgende fulgte Nanna fra Varde, Natasha fra Rusland, Miroslava fra
Bulgarien, Clara fra Rumænien, Sofie fra Samsø og Charlote,
Diane, Keyneth, Kristylee, Facie og Cristine
alle fra Filippinerne. I 2018 satte lovgivningen en stopper for au pair-piger i
Villa Mowgli, idet familiens yngste barn fyldte 18 år.

Tidligere beboere på besøg i 2020. Yevgenia
Zherebyatyeva
(Genia Jensen),
Aksel Emil Kaalund Olsen, Kirsten Steen-
Andersen og Klara Helene Preben-Hansen.

Villa Mowgli i jubilæumsåret 2023
|
Diverse |
|
Stormænd, Esrum Kloster, Absalon, Henneke
Moltke, Roskilde bispestol, Kirken, Kong Hans og Kronen |
|
1681 |
|
Kong Christian V (opretter en fasangård). |
|
13. juli 1761 2. juli 1764 |
|
Udenrigsminister Johan Hartvig Ernst, Greve af Bernstorff
(ved Donations- og Concessions-Brev) |
|
1. september 1765 |
|
Anders Olsen og Anne Jacobsdatter
(søster til Ole Jacobsen fra Skjoldgaard) erhverver
brugsretten til den senere ”Eigaard” ved
lodtrækningen. |
|
1. oktober 1767 |
|
Arvefæsteskøde på 65½ tdr. land til Anders Olsen. |
|
13. juli 1795 |
|
Jacob "Eigaard" Andersen (søn af Anders Olsen). Fra 1797 gift med Ane Sørensdatter fra Teglgaard, der er ejer fra ægtefællens død i 1813. |
|
14. juli 1847 |
|
Birthe Marie Eigaard (datter af Jacob Eigaard
Andersen), ugift. |
|
2. april 1880 |
|
Fhv. rådmand Frederik Christoffer Bülow. Og efter
dennes død i 1890, boet og efterlevende hustru Helene Anna Cathrine Bülow. |
|
11 juli 1891 |
|
Højesteretssagfører Peter Adler Alberti. Udparcellerede grunden (matr.nr. 3eh
af Ordrup by og sogn) fra Eigaard (matr.nr. 3a
Ordrup by og sogn) den 5. december 1894. |
|
4. juli 1896 |
|
Overretssagfører Carl Theobald Valdemar Friis. |
|
6. april 1898 |
|
Murermester Nicolaj William Petersen (køber grunden og
opfører Villa Mowgli efter ansøgning af 29. september 1898 og godkendelse af
19. oktober 1898). |
|
11. december 1916 |
|
Fabrikant, ingeniør Christoffer Frode Müller. |
|
7. november 1963 |
|
Ingeniør Mogens Frode Thorkild Müller (arveudlægsskøde). |
|
4. juli 1973 |
|
Cand.mag. Susanne Pedersen og cand.mag. Frank Gerdner Pedersen. |
|
21. april 1982 |
|
Sygehjælper Ewa-Dorota Eskelund. |
|
28. maj 1991 |
|
Arkivar Knud Erik Andersen. |
|
1. juli 1993 |
|
Cand.merc. Helle Birk Krogsgaard, HD og finanschef
Jens Kristian Kjær Krogsgaard, HD. |
Nedenfor er gengivet en graf, der viser
udviklingen i Villa Mowgli’s offentlige vurderinger (venstre akse) gennem cirka
125 år. Som bekendt har den offentlige vurdering aldrig været et præcist mål
for en ejendoms reelle handelspris, og gennem tiderne er Villa Mowgli da også
handlet til priser der afveg væsentligt fra den offentlige vurdering, der var
gældende på handelstidspunktet. Grafen giver dog alligevel et ganske godt
billede af udviklingen i de forløbne cirka 125 år. Det skal bemærkes, at i
perioden 2014-2021 og i 2022 er benyttet henholdsvis Bolighedens
og DingEstimats computerskabte ejendomsvurderinger,
idet SKAT i perioden har suspenderet de offentlige vurderinger.
Ejendommen
er på i alt godt 427 etagekvadratmeter, men heldigvis omregner skattevæsnet det
til 282 vægtede boligkvadratmeter.

Når der som her er tale om et aktiv, der løbende bliver
mere og mere værd, vil en graf, der viser den samlede værdi, altid blive
ekspotentiel. For derfor at korrigere for dette ”synsbedrag” er på højre akse
gengivet den procentvise ændring af vurderingerne per år. Som det ses, har
disse svinget mellem minus 28,8% (2009) og plus 100% (1920) i perioden. De
største procentvise udsving skete i 1980’erne, hvor ejendommen blev vurderet
til 750.000 kr. som laveste værdi og til 2.050.000 kr. som højeste værdi.
Ejendomsvurderingerne fortsatte med at stige i det nye
årtusinde. I perioder tjente boligejere i nogle dele af landet mere på
værdistigninger på deres huse end hvad de kunne tjene ved at arbejde. Dette var
naturligvis ikke holdbart og boligboblen sprang da også i 2007-2008. Inden da
havde den offentlige vurdering - efter alle de nedslag som fantasien kunne
overbevise skattevæsnet om, var rigtige – smagt på knap 10 mio. kr. Da boblen
sprang, faldt vurderingen med knap 3 mio. kr. eller knap 30%. Efterfølgende er
vurderingerne igen kun steget og steget på grund af de forholdsvis lave renter
og nye låneformer.
Set over husets levetid svarer stigningerne i
vurderinger til godt 6,5% per år - sammenlignet med en gennemsnitlig årlig
stigning i forbrugerprisindekset på 3,8% i samme periode. Det bliver til en
stor forskel på 125 år.

Ovenikøbet
har de offentlige vurderinger i en årrække haltet efter de reelle
handelspriser, hvorfor der ikke er tvivl om at det over tid er en bedre
forretning at være boligejer end lejer – hvis der for et kort øjeblik ses bort
fra ejendomsskatterne. Og ejendomsskatterne betyder naturligvis noget i den
virkelige verden. Hvis man tager den forventede salgspris, og fradrager vores
købspris og forbedringsomkostninger, og omregner dette og alle de betalte
skatter til en nutidsværdi, svarer det i øjeblikket til at avancen vil være
beskattet med 26,5%.
Da
priserne næsten toppede i 2021, kom en venlig ejendomsmægler forbi og mente at
Villa Mowgli kunne sælges for cirka 22,8 mio. kr., hvis villaen blev udbudt til
26 mio. kr., men som bekendt kendes prisen på et aktiv ikke før der er en der
vil købe og betale prisen. Og mon ikke priserne i en periode er lidt på vej ned
igen.
I
september 2023 offentliggjorde SKAT de foreløbige ejendomsvurderinger for 2022.
Det var ikke muligt at se beregningerne bag resultatet, men dommen lød på 18,2
mio. kr., hvoraf 8,4 mio. kr. var grundværdien. I december 2024 kom den
endelige vurdering for 2020. Ejendomsværdien lød her på knap 13,2 mio. kr.,
hvoraf grundværdien udgjorde godt 7,1 mio. kr. Fantastisk som vurderingerne
hopper op og ned. I december 2025 kom så den endelige vurdering for 2022. Den
lød på 19.7 mio. kr., hvoraf 8,3 mio. kr. var grundværdien. En endelig
vurdering for 2022 i den lave ende i forhold til ejendomsmæglerens vurdering,
men så kan SKAT sikre sig, at den nominelle skatterabat, der nu tildeles, er så
lav som muligt, så skatten hurtigt kan komme til at stige igen.
Når
man sidder med spejlet og ser tilbage i tiden, virker en købspris på cirka 1,3
mio. kr. som den rene foræring. Men sådan er inflationens matematik. Den gang
mente vores familier at en så høj pris var galimatias. De havde glemt at de
selv havde givet en tiendedel for deres egne ejendomme, og at deres forældre
havde givet en hundrededel. Men sådan er det. Vi sidder nu og kigger på nye
boligkøbere, og forstår ikke at man i Charlottenlund betaler så meget for en
ejendom i dag. Men vi er bare ikke klogere end vores forfædre.
Nedenfor
er gengivet udvalgte “Avertissementer” eller annoncer fra den lokale
vejviser fra 1898.
Prøv
selv at studere Avertissementerne. Her er alt fra reparation af kunstige tænder
på 2-3 timer, til Karen Wulffs bekendte Kiks, Bisquits
og Konfiturer.
Endvidere
kunne der lejes bøger i Caroline Rønnows Bog- Papir- og Musikhandel på hjørnet
af Lindegårdsvej og Jægersborg Allé, ligesom der kunne lejes elegante Landauere
og drosker i Hellerup eller møbler til landstedet i Kjøbenhavn.
Endelig
var én krone vel ikke for meget at betale for en flaske Courenne
Cognac.




Tak til:
Agnete Müller, Jyllinge
Eva og Pia Birkman, Samsø
Kirsten Steen Andersen, Ordrup
Susanne og Frank Pedersen, Ordrup
Torben Runo Johansen, Toelt
Lars
Runo Johansen, Esbjerg
Clara
Helene Preben-Hansen, Charlottenlund
Nanna
Friis Løvendahl, Søborg
Helge
Richter-Friis
Nanna
Sloth Møller, Stege
Mogens
Müller (yngste søn af Johannes Müller)
der blandt flere alle velvilligt har givet oplysninger om livet i
Villa Mowgli gennem tiderne.

Berlingske Politiske og
Avertissementstidende fra den 23. maj 1906.
Desuden tak til:
Lokalhistorisk Samling (nu Gentofte Lokalarkiv)
Gentofte Lokalhistoriske Forening
Gentofte Ret
Nationalmuseet
Gentofte Kommune, Teknisk Forvaltning
Landsarkivet, København,
der velvilligt har hjulpet med research.
Som øvrige kilder er bl.a. benyttet:
Forsidebillede fra cirka 1900 taget af Alfred Theodor Collin,
Collin Foto, Lyngby.
Fra istid til nutid I, L. Gotfredsen.
Gentofte fra Tuborg til Bellevue II, L. Gotfredsen.
Fra Søholm til Ermelunden III, L.
Gotfredsen.
Veje i Gentofte, L. Gotfredsen.
Fra de gode gamle dage i Gentofte Kommune, diverse.
Der var engang et sommerland, Halvor Pedersen.
Gentofte-bogen 1976-1978 og 1982-1983, diverse.
Fra Sommerland til villaby, Steffen Linvald.
Danmarks Historie, Vagn Dybdahl.
Fra det nu forsvundne Charlottenlund, Edouard Ree
Fra det nu forsvundne Gentofte Kommune, Susanne Krogh Bender.
Omkring Jægersborg Allé – dengang og nu, Hans Jørgen Poulsen.
Ordrup – et bysamfund i fortid og nutid, Hans Jørgen Poulsen.
Lademanns Leksikon, diverse.
Vejviseren for Gentofte Kommune (1896-1998), Familien Jantzen.
Månedsmagasinet Bo Bedre november 1963, Ove Steen- Andersen.
Månedsmagasinet Bo Bedre februar 1964, Ove Steen-Andersen.
Danske énfamiliehuse gennem 100 år, Erik Nygaard.
Vejviseren for Gentofte gennem 100 år, Mostrup.
Villabyernes Blad, diverse årgange.
En række forskellige danske og udenlandske aviser.
Margrethe Timmol Larsen
Diverse korrespondance, foto, postkort og tegninger.
Kirkebøger, skattelister og
folketællinger.
Wikipidia.
Og mange flere ….

Tegning af Villa Mowgli fra Bo Bedre februar 1964.

Første tegning af Villa Mowgli skabt af kunstig
intelligens (AI) i 2025.